查看完整案例


收藏

下载
致力于有趣味性的城市空间生活美学,追求建筑与自然的平衡。改造前。
改造后 After transformation
客厅不再是客厅,本案甲方希望打破常摆放形式,用自由组合的方式将其改为会客休闲模式,既分散又聚合,而每个角落都抒写着对生活的极简态度。
The living room is no longer a living room. In this case, Party A hopes to break the conventional living room form and change it into a reception and leisure mode in a free combination, which is both scattered and aggregated, and each corner expresses its minimalist attitude towards life.
两位业主都是 90 后,热爱健身热爱生活,在满足其功能的基础上,希望空间温馨、自由、干净明快,除了解决空间的优化补充,更多的是要用空间的视觉、触觉实现业主本身的精神诉求。Both owners are post-90s, who love fitness and life. On the basis of meeting their functions, they hope that the space is warm, free, clean and lively. In addition to solving the optimization and supplement of space, they need to use the vision and touch of space to realize the spiritual requirements of the owners themselves.少和温度 Less and temperature
结构的解决,主要体现在生活刚需的储物增加,生活空间的动线变化,模糊空间的具体需求,力求空间的多样性。在空间的重塑方向上,自由才是整体设计的核心。
The solution of structure is mainly reflected in the increase of storage just needed for life, the dynamic line change of living space, blurring the specific needs of space, and striving for the diversity of space. In the direction of space reconstruction, freedom is the core of the overall design.
而年轻业主更多的体现在自我的包容性上,在这一点上留给了我们充足的发挥空间。在形态上更多的利用建筑体感去表达实际应用,让空间更具调性。
Young owners are more self inclusive, which leaves us enough room to play. In terms of form, more use of architectural sense to express practical application, so as to make the space more tonal.
大面积的奶油色墙面,干净的肌理与白色的饰面,圆润的家具,烘托出宁静、平稳的氛围。在此基础上,木色的介入,暖且明快,既不落入俗套又不失温度。
A large area of cream colored walls, clean texture, white finish and round furniture set off a rather dead and stable atmosphere. On this basis, the intervention of wood color is warm and lively, which does not fall into the stereotypes and temperature.
灵动与舒适
Flexibility and comfort
非刻意的堆砌,赋予空间新的体验,暂离喧嚣,回归初心。
Unintentional stacking gives the space a new experience, temporarily leaving the noise and returning to the original heart.
空间的组成无需处处堆叠到咄咄逼人,无大面积常规饰面大理石等俗套的装点,简单而实在。硬包床头靠背在柠檬黄的加持下既灵力也舒适。
The composition of the space does not need to be aggressive everywhere, and there is no conventional decoration such as large-area decorative marble. It is simple and practical. The bedside backrest is flexible and comfortable under the blessing of lemon yellow.
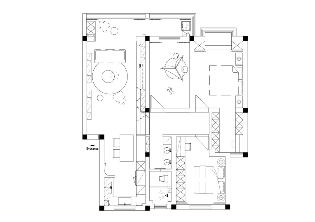
▲平面方案
Project Name | 项目名称:淮海花园 Y 宅
Location | 项目地址:江苏淮安
Area | 项目面积:133㎡
Design Company | 设计公司:辰夏空间规划
Chief Designer | 主创设计师:夏兆民 孙曼丽
Completion time丨完工时间:2021.10
Photography | 摄影师:RICCI 楼诺
OTHER
致力于有趣味性的城市空间生活美学,追求建筑与自然的平衡。
2018 年:
- 艾特奖公寓设计优秀奖
- 芒果奖中国人文设计大赛住宅公寓类创意奖
2019 年:
- 中国红棉奖室内优秀设计奖
- 中国红棉奖最美艺术空间优秀设计奖
- 金蝴蝶奖“2019 创意生活设计”银蝴蝶奖(公寓类)
2020 年:
- 40UNDER40 中国(江苏)淮安设计杰出青年奖
- 中国红棉奖极简艺术空间优秀设计奖
- 中国红棉奖极简艺术空间优秀设计奖
- 2020“酷+创造营”年度先锋设计师 Top300
- 金蝴蝶奖“2020 创意生活设计”金蝴蝶奖(别墅类)
ADD:江苏省淮安市清江浦区深圳路 28 号维科格兰花园 B19-2 室
客服
消息
收藏
下载
最近





























