查看完整案例


收藏

下载
「院居」
COURTYARD HOUSE
院的记忆
memory
of courtyard
院的记忆
在北京,院子其实是个熟悉又陌生的场所。说它熟悉是因为记忆里,胡同的院儿总是伴随着居住和成长。说它陌生,是因为当代大都市化的高速建设背景下,院子已然很少有条件出现。在北京城市更新改造中,老破小依然是关乎普通人基本居住需求体面的问题。本案就是一户带有内院的一层老破小,我们通过设计改造使其更加适宜当代人们的居住生活。
前期分析
场地位于西城区塔院小区内,一栋六层板楼的首层西侧把边儿,紧邻三面街道,是一个交通便利且非常醒目的位置,悠闲健身的大爷大妈们偶尔路过,看到我们的改造总会热议一番。
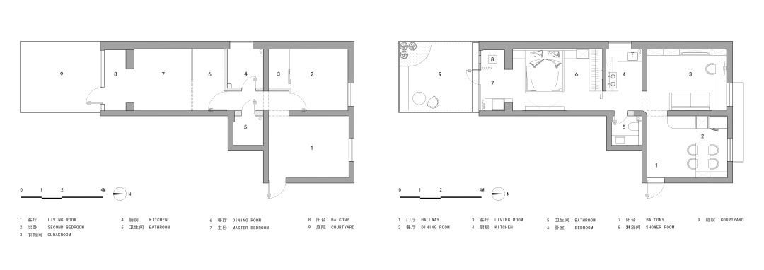
原始户型为南北朝向,像一个手枪房,内部格局非常零碎且狭小,南侧临阳台有一个小的内院。业主是个老北京,独自居住,从原始居住环境可以看出来,几乎没有收纳能力和收纳条件。
▼ 区域调研分析
▼场地概况
空间关系角度,本次项目任务由两个主要部分组成:室内空间的释放和室外院落的重构。空间内部以中心走廊区域作为起点,向四个开口方向延伸,释放各空间出入口,最大限度拓展空间。室外部分,通过增设的门廊和凉亭使院落内向围合,建立室内与室外的空间联系。
▼ 空间分析
▼平面前后对比
▼叙事轴测图
院落
门廊界定了院子与室内空间的边界。顶部挑檐,四周围合,形成一个凸出于建筑外立面的矩形框。深灰色的水泥漆与建筑白色的外墙漆形成了新旧对比,充满了科幻的不真实感。
院落南侧布置了一个可以坐下休息的小凉亭,周围通过软性植物围挡,让院落更加的内向化,并且形成了植物覆盖的借景效果。
▼凸出的矩形门头框出室内一景
▼院落植物映衬的借景效果
▼夜幕降临时分的院景
▼院落俯视图的秋景,可以看到院与周边环境的互动性
餐厅
业主平日叫外卖用餐的频率较高,为了方便拿取,入口即是餐厅,并设计了下沉式玄关落尘区。
餐桌设计为一个较大的吧台形式,另一侧设计了水吧台和电器一体柜,包括冰箱、酒柜、直饮水机等设备集合一处。
▼从入户玄关望向客厅入口
▼吧台形式餐桌
▼西厨水吧台
▼从走廊望向餐厅一角,粗糙的水泥漆质感,搭配金属玻璃显得格外精致
客厅
客厅区作为业主游戏娱乐和工作的房间,整体调子依然是灰色水泥漆,地面选用白色的树脂材料。
▼客厅入口视角
▼客厅与工作区的功能叠加,电视屏幕与电脑可以相互连接使用。
▼沙发选用麻布材质,整体朴素简约
▼黑白灰的单色调凸显微水泥墙面的肌理与质感
厨房
为了让狭小的操作空间更加舒适,厨房改为了开放式,并嵌入了烤箱、洗碗机等现代厨房电器。家电的大小也做了考量,使得这块区域功能齐全。
▼白色的一体橱柜与微水泥的墙地面形成质感与色彩上的对比
卫生间
因为卫生间较小,所以干湿分离将淋浴区单独设置在了阳台,与庭院景观发生互动关系。
卫生间将淋浴功能移位后,形成了足够舒适干净的卫生环境。因为属于暗卫,选用了易来照明的“青空灯”,为狭小的空间开了一扇天窗,使原本幽暗的房间变得明亮。
卧室
进入卧室区域设计了 L 形的衣帽区,为业主提供了充分的收纳空间。卧室地面和背景墙采用的胡桃木地板湿贴工艺,整体自然而沉稳。
▼L 型衣帽区
▼胡桃木背景墙
阳台
阳台成为了连接室内外的灰空间,也是一个洗衣家政区。推开门,可以走入自家的小院落中去。
阳台的右侧布设为淋浴房,侧部墙体做了一个巧妙的开口设计。淋浴时,一方面人可以从洞内观察洞外的风景,另一方面,开口的设计能更好的引入自然光源,为淋浴这件事增添了几分暧昧。
▼落地窗模糊了室内外边界
▼充满自然采光的淋浴房
▼圆形窗洞引入自然采光
▼圆洞外的秋景正合时宜,一天的疲惫也在此处消解
▼原始平面
▼改造后平面
▼剖立面图
项目名称:院居
项目类型:住宅公寓
项目地址:北京市海淀区塔院路
建筑面积:56㎡
设计公司:戏构建筑设计工作室 XIGOSTUDIO
方案主创:刘阳
方案深化:王丹
设计时间:2020 年 11 月-2021 年 3 月
竣工时间:2021 年 12 月
撰文排版:刘阳、于水骄
摄影版权:立明
家具定制:观隅家居
主要材料:高钡特树脂、水泥艺术漆、胡桃木地板
合
作
微
信
:
x
i
g
o
s
t
u
d
i
o
李
女
士
联
系
邮
箱
:
x
i
g
o
_
s
t
u
d
i
o
@
1
2
6.
c
o
m
END
客服
消息
收藏
下载
最近

































