查看完整案例


收藏

下载
洛阳罗曼罗兰文化传播旗下媒体:洛阳《建筑装饰》杂志、AD 建筑装饰微平台
©存在建筑-建筑摄影
· 漂浮的乐园
2019 年,建筑师收到一份委托,需要为武汉市汉口唐家墩设计一所标准的 6 班幼儿园。建筑师童年曾在武汉生活,于是在设计之初回访了曾经的幼儿园,却发现其远没有记忆中的宽阔——空间尺度被孩童的记忆做了矫正性的放大。于是建筑师设想根据这段会将空间变形放大的记忆出发,建立一种独特的空间尺度感,让孩子们的世界被放大,让周边的城市变小。这些属于孩子们的小房子将以一种微缩城市的状态出现在地面、在空中、在阳光与树影里,成为漂浮着的一系列小世界。
©存在建筑-建筑摄影
△概念草图 ©一树建筑
©张超
然而幼儿园功能只是这个设计任务的一半,摆在建筑师面前的另一个设计命题是要求这座建筑同时满足在建成后 1~2 年作为售楼处展厅使用的功能和形象要求。当售楼处功能结束之后将转换为正常的幼儿园使用。
©存在建筑-建筑摄影
通常地产开发项目将会建设一座临时销售中心并在后续进行拆除。然而本项目希望通过一座建筑适应两种用途的方式,来节约建造一座临时销售中心的部分成本并避免后续拆除临时建筑所带来的环境干扰。
©存在建筑-建筑摄影
因此,如何以同一座空间架构在不同时段适应售楼处和幼儿园两个完全不同的功能主题和规范要求是本设计项目的一大挑战。通过研究,设计团队发现这个单体建筑任务被分解为一系列可以被售楼处功能和幼儿园功能置换使用的单元式空间,比如幼儿园设计规范要求的 120 平米以上的幼儿园班级面积与销售需求的 120~140 平米的样板间面积即可以进行转换,而部分公共活动教室和公共展厅也具有相似尺度可以置换使用。综合一系列具体的功能要求研究,建筑师确信这个属于孩子们的漂浮着的微缩城市,同时也可以构成一系列令人们对未来家园充满期许的住宅原型展厅。
△展开立面©一树建筑
△功能置换研究©一树建筑
©张超
· 空间向外部折叠
最终实现的建筑呈现为连成一片的“空”,这些连续展开的内部空间经过折叠而呈现在外部立面与屋顶形态上,使得这建筑立面成为一系列高矮胖瘦各不相同的小空间之集合,它们朝向不同的方位,将在不同的时间迎来不同的光线与阴影。建筑师期待着这些尖顶、平顶或是倒置屋顶的房间可以赋予孩子们对于空间形状的趣味认知、并结合着光线与外部植物的状态形成每一个班级独特的归属感,并鼓励孩子们在这样互相连接的微型城市中成长、漫游、探索。
©张超
©存在建筑-建筑摄影
而对于售楼处展厅的空间,建筑师希望打破传统售楼处室内空间被过度装饰并严密包裹在建筑内部的状态,设想其以更开放的姿态衔接周边城市环境,让内部空间与流线透亮地呈现在建筑外部,使得错落的空间结构取代立面装饰成为建筑独特的标志。这个内部连续的“空”,将形成一条以时间为线索的参观序列:将过去(城市记忆展厅与沙盘)——现在(楼盘样板间展示)——未来(生态花园、智能健康等展示区)串连在一起。
©存在建筑-建筑摄影
△内部空间©张超;存在建筑-建筑摄影
©张超
建筑的结构、立面与内部空间高度统一。钢筋混凝土结构顺应建筑内部体块空间逻辑,而立面使用白色花岗岩石材与玻璃幕墙则表现折叠而出的内部空间和它们的整体骨架。当售楼处使用结束后,户外景观将被更新为更开阔自由的幼儿园游乐空间。而结构方面也预设了几处小的调整策略,可以局部增加售楼处一些高大展厅处的楼板数量以转换为更紧凑的儿童教学空间。在立面上也预设了局部调整玻璃幕墙的转换措施来实现幼儿园立面的开窗要求。
△建筑功能置换 ©存在建筑-建筑摄影,一树建筑
△教室单元的功能转换 ©存在建筑-建筑摄影,一树建筑
· 穿越疫情的建造
项目坐落于武汉汉口唐家墩,距离最初爆发疫情的华南海鲜市场仅 1 公里之遥。整个项目自 2019 年 10 月构思方案开始,原本计划 2020 年就完工使用,但后来随着武汉疫情的爆发而一度暂缓了。然而项目团队坚韧不懈,项目计划并未中止,在武汉解封之后顽强地恢复了项目建设进度,并在 2021 年 8 月建成并面向社会开放。
©存在建筑-建筑摄影
横跨疫情期间,建筑中的展厅主题也进行了调整,从汉口城市记忆变为了健康生活相关的主题,希望这座建筑能在担当售楼处之余,以展题内容向后疫情阶段的当地居民传递健康生活的知识、技术与展望未来的信念。
©存在建筑-建筑摄影
©张超
©存在建筑-建筑摄影
技术图纸
△场地分析 ©一树建筑
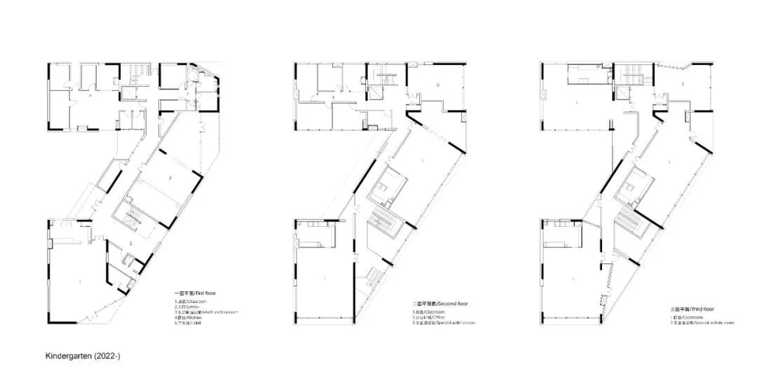
△幼儿园平面 ©一树建筑
△售楼处平面©一树建筑
△售楼处轴侧结构©一树建筑
项目信息
项目名称:折叠乐园-汉口万科城市展厅及幼儿园
建成时间:2021.8
建筑面积:1940㎡
项目地址:湖北省武汉市汉口唐家墩
项目委托方:武汉市万科房地产有限公司
建筑设计:一树建筑工作室
主持建筑师:陈曦
设计团队:田笛、朱珠、林子雅、黄家杰、徐志维、翁策楷
施工图设计:武汉天华建筑设计有限公司
示范区景观设计:重庆尚源建筑景观设计有限公司
示范区精装设计:PONE 普利策设计
幕墙顾问:弗思特建筑科技有限公司
泛光设计:湖北高明特环境工程有限公司
摄影师:存在建筑-建筑摄影, 张超
设计主创
陈曦
一树建筑工作室
主持建筑师
往期推荐
凡本空间设计事务所作品|隐匿于闹市的白色小院
首发|T.Y 堂樾空间设计:张公馆•海鲜和牛火锅店
报奖|40U40 杰出青年
金住奖
锋建筑节
WYDF100 杰出青年
中意设计奖
老宅新生奖
新商业空间奖
家装设计百强
色彩空间设计奖
视频号:@建筑装饰杂志
AD 建筑装饰
客服
消息
收藏
下载
最近


































