查看完整案例


收藏

下载
wType |项目类型:全案设计
Location |项目位置:贵阳 观山湖区 天麓壹号
Area |项目面积:200㎡
Design |设计单位:上海半间设计贵阳分公司
Team |设计团队:梁东
◆ 设计灵感
design inspiration
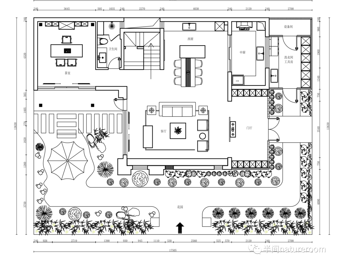
一层平面图
firstfloor plan
◆ 效果呈现
The effect appears
穿过花团锦簇的花园进入室内,中式花格屏风映入眼帘,一方景致内外叠影,风动意动,呼应感官的深度沟通和无穷想象。
Entering the room through the garden of flowers and flowers, The Chinese trellized screen comes into view, a scene inside and outside overlapping shadows, wind moving meaning moving, echoing the deep communication and endless imagination of the senses.
穿过玄关,走入会客厅,古色古香的家具和装饰让人忍不住沉醉其间,别具一格的背景墙中间树影壁画搭配上两侧的格栅,形成内外共景,同时模糊空间界限,让人心境开阔,给人气定神闲的感受。目光穿过半透半隐的屏风投向大门,是一整面水晶转堆砌成的外墙体,它在这个古韵的空间之中,渲染出灵动之美。
Pass through porch, take meeting room, antique furniture and adornment let a person cannot help but be intoxicated meantime, the grille on both sides of mural collocation of tree shadow among the setting wall of having a unique style, form inside and outside altogether scene, fuzzy dimensional boundary at the same time, let a person’s state of mind is open, give a person the feeling of calm. The vision passes through the screen that half shows half hidden to cast toward the door, it is the outer wall wall that whole crystal turns pile by laying stones or laying stones becomes, he is in this space of ancient rhyme, apply colours to a drawing gives clever beauty.
内外开阔的空间,满目自然,一方古雅,四季皆正恰好,搭配精巧雅致的器物、摆饰,东方古典的韵味就在那方寸之间蕴染开来,传递人文艺术的当代创新与美。
The open space inside and outside is natural, ancient and elegant, and the four seasons are just right. With exquisite and elegant utensils and ornaments, the Oriental classical charm is dyed from between the square inches, delivering the contemporary innovation and beauty of humanities and arts.
茶室也是中式文化中必不可少的空间,木质斜顶为主体,其象征着东方温良的一种精神所在,深邃的色彩纹理、纯粹细腻的质感和沧桑坚韧的气质,成为设计里一种兼具功能性和艺术性的载体。
The teahouse is also an indispensable space in Chinese culture, with the wooden sloping roof as the main body, symbolizing the spirit of Oriental gentleness. The profound color texture, pure and delicate texture and tough temperament of vicissitudes have become a carrier of both functionality and artistry in the design.
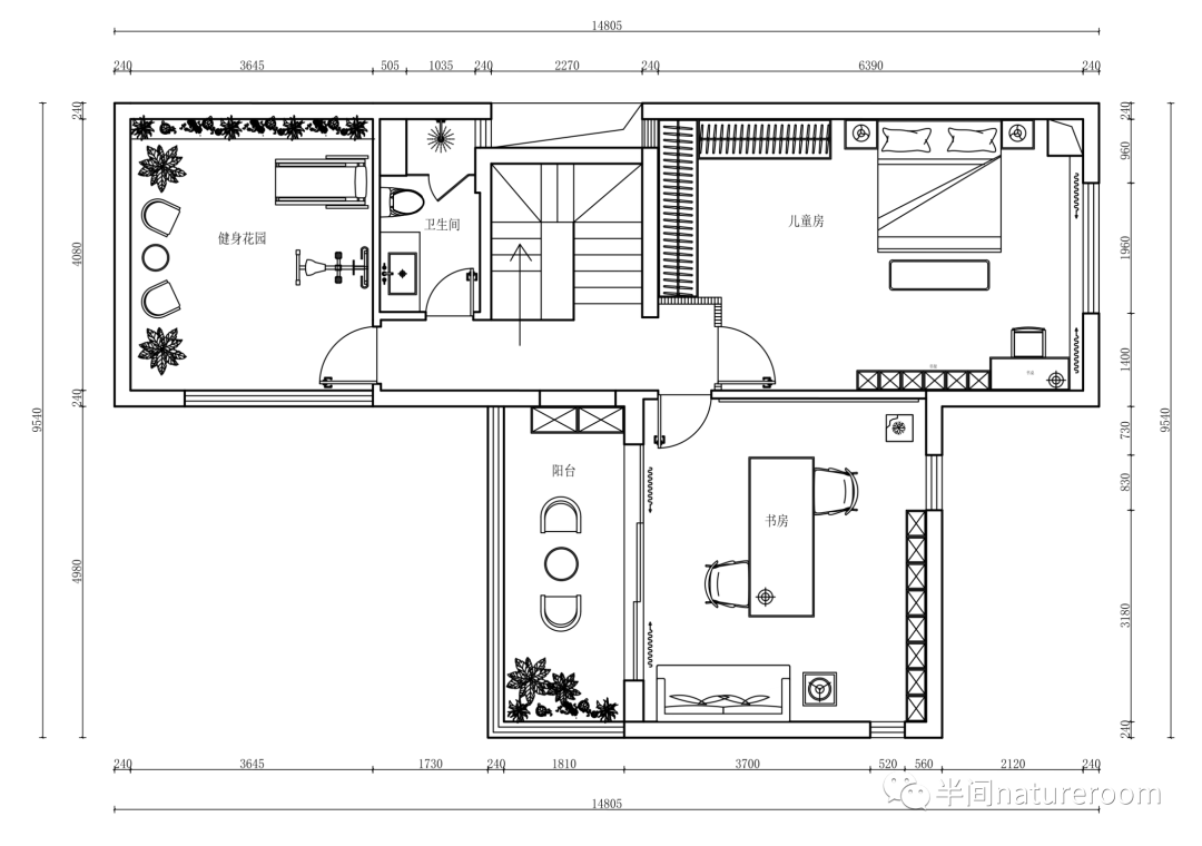
◆
Second floor plan
◆ 效果呈现
The effect appears
作为家之顶梁,主人的个人空间处于二层,窗明几净,宽敞舒怡。延续了客厅的设计手法,以木的温润质感和中式的艺术元素呈现。床头采用了硬包山景画,搭配两侧木格栅,协调且韵味十足,于细节之处彰显出典雅的东方美学情怀。
Serve as the roof beam of the home, the individual space of host is in 2, the window is bright a few clean, capacious shu Yi. Continued the design gimmick of the sitting room, the artistic element with the warm and moist feeling of wood and Chinese style is presented. The head of a bed used hard package mountain scenery painting, collocation two sides wood grille, harmonious and lasting appeal is very, in detail place reveals elegant Oriental aesthetic feelings.
◆
Three floor plan
◆效果呈现
The effect appears
以色彩为导向展开一段视感体验,一幅充满童趣的星空壁画,让整个空间不那么呆板,增加一楼灵动气息,设计师以一抹雾霾蓝,点亮空间。材质与空间本身主动地诉说着舒适与安逸,质感的家具、艺术装置碰撞对话,为整体空间注入一抹灵动的气韵。
Color oriented to develop a visual experience, a starry sky mural full of childlike fun, so that the whole space is not so dull, increase the first floor smart atmosphere, the designer with a touch of haze blue, light up the space. The material and the space itself speak of comfort and ease actively. The collision and dialogue of textured furniture and art installation infuses the whole space with a touch of smart charm.
书房以简洁为主,当人走进这个空间,立即体会到“采菊东篱下,悠然见蓝山。”的闲适之感,会忍不住静下心来,感受时间和空间的无穷魅力。
The study is given priority to with concise, when the person walks into this space, experience immediately "below pick chrysanthemum east hedge, leisurely see blue mountain." The sense of leisure, can not help but calm down, feel the infinite charm of time and space.
◆
Courtyard effect presentation
一步一景的庭院,自然之气旋转直下,木质休息亭搭配帷幔,坐于期间,午后温一壶茶,和家人一起闲谈,感受四时变幻。瓦片堆砌成的外墙体,让观者或停驻、或聆听、或感受的多元体验,风吹草动、清新自然,设计希望传递温暖、品质的东原式都会生活体验感。
Step by step a view of the courtyard, the natural gas rotating straight down, wooden rest pavilion with curtains, sit in the afternoon, warm a pot of tea, chat with family, feel four changes. The outer wall made of tiles allows visitors to stay, listen, or feel diversified experience. The design hopes to deliver warm and quality Dongyuan city life experience.
◆
About half room design
半间 natureroom
公司地址
总公司:上海市长宁区愚园路 1107 号半间设计
TEL/V:19821416616
梁东
分公司:贵阳市观山湖区金阳南路 6 号居然之家
TEL/V:13162082897
高丽娟
客服
消息
收藏
下载
最近










































