查看完整案例


收藏

下载
Type | 项目类型: 软装设计
Location | 项目位置:贵阳 中铁逸都
Area | 项目面积:140
㎡
Design | 设计单位: 上海半间设计贵阳分公司
Team | 设计团队: 高丽娟 刘兴付
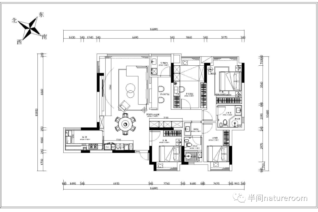
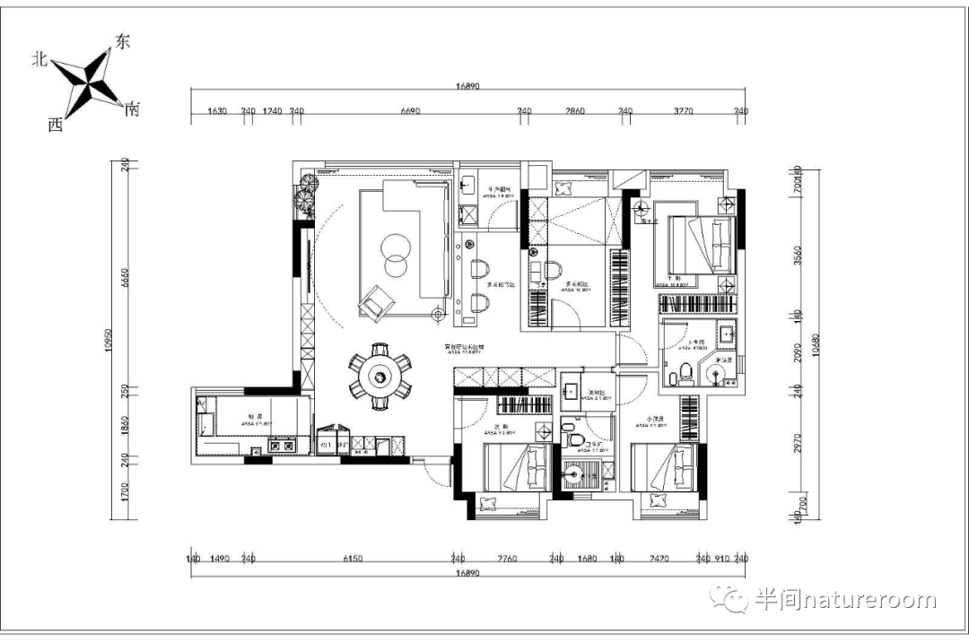
平面布置图
Floor plan
原始平面图
修改平面图
吊顶剖面图
本案是一个
140
㎡私宅,4室2厅,业主为一对年轻夫妇,有两个孩子,还有一个老人一起住,夫妻两平时工作比较忙,他们期待回家的时刻能得到足够的放松,用所热爱的天然,质朴气息,抹掉工作中带来的所有疲敝,不希望家里是一成不变的现代风格。
This case is a 140m private house with 4 bedrooms and 2 halls. The owner is a young couple, with a child and an old man living together. Their wives are busy at work. They expect to get enough relaxation when they go home, erase all the fatigue brought by work with their beloved natural and simple atmosphere, and do not want the family to be a constant modern style.
◆
效果呈现
The effect appears
原始结构中的会客区和就餐区就是一个敞开的大空间,我们也将这一结构保留了下来,我们综合了外部环境的考虑,尽量减少公区的阻隔动线,让通风和采光条件可以实现最优。当阳光洒进屋内,投下一片斑驳的光影,足以驱赶一天工作的疲惫。
The reception area and dining area in the original structure are a large open space, and we have also retained this structure. We have integrated the consideration of the external environment to minimize the barrier line of the public area, so that the ventilation and lighting conditions can be optimized. When the sun shines into the house, it leaves a mottled light and shadow, which is enough to drive the equipment for a day's work.
打破传统沙发背景墙的设计,将书房引入客厅中,既有了空间的互动性,又有了时间的流动性。开放其实就是因为纯粹的放开,没有多余的考虑,把拐弯抹角与复杂的生活琐事,丢弃在一旁。精彩的、挑战的、都在这个区域里发生,打破维度之间的“墙”,将他们不同的组合在一起,有趣的延展了空间。
Breaking the design of the traditional sofa background wall and introducing the study into the living room has not only the interaction of space, but also the fluidity of time. In fact, opening up is because of pure opening up, no unnecessary considerations, and abandoning the roundabout and complex life trivia. Wonderful challenges take place in this area, breaking the "wall" between dimensions, combining them differently, and extending the space interestingly.
我们消减色彩的错综交织,保留灰与白单纯二元色逻辑是本案设计特点。根据业主提出的色调偏好,少了五颜六色的扰乱,更专注于物的轮廓、质地,以及光影能形塑的立体感。
We reduce the intricacies of color, to retain the grey and white simple binary color logic is the design characteristics of this case. According to the color preference proposed by the owner, less colorful disturbance, more focus on the outline, texture of the object, as well as the three-dimensional sense of light and shadow can shape.
抛开一切繁琐设计与表达,运用最意识极简的表达观念,从环境就可提升整个家的高级感。
Put aside all trival design and expression, use the most conscious expression concept with utmost simplicity, from the environment can promote the advanced sense of whole home.
◆
关于半间设计
About half room design
半间natureroom
公司地址
总公司:上海市长宁区愚园路1107号半间设计
TEL/V:19821416616
梁东
分公司:
贵阳市观山湖区金阳南路6号居然之家
TEL/V:13162082897
高丽娟
客服
消息
收藏
下载
最近


















