查看完整案例


收藏

下载
wType |项目类型:软装设计
Location |项目位置:贵阳 观山湖区 阅山湖
Area |项目面积:2000㎡
Design |设计单位:上海半间设计贵阳分公司
Team |设计团队:高丽娟 张加保 王清
中国的文化是中庸的主流文化,“璞居”则是这一文化底蕴的一种境界。然随时代的推进、美学的更新迭代,表现的形式尽不相同。但艺术的发展史告诉我们,无论古今中外,真正能堪称经典的作品一定是有精神内核的,这才是一件艺术品的真正价值所在。所以,我们想要打造的空间一定是经过精雕细琢、注入灵魂的空间。
Chinese culture is the mainstream culture of the doctrine of the Mean, and "pu ju" is a kind of realm of this cultural heritage. However, with the advance of The Times, the update iteration of aesthetics, the performance of the situation is not the same. However, the development history of art tells us that no matter at all times and at home and abroad, a truly classic work must have a spiritual core, which is where the real value of a work of art lies. Therefore, we want to create a space for you must be carefully crafted, into the soul of the space.
◆
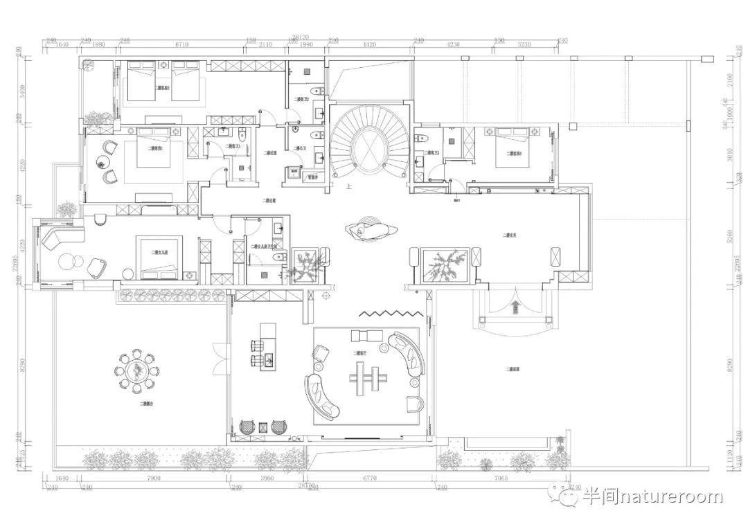
Secondfloor plan
此项目是位于贵阳阅山湖的一栋四层楼的别墅。男业主从事建筑行业,有一对儿女都是从国外留学回来的,所以对空间结构和美学都有较高的要求。业主自己也查阅了很多关于设计上的相关资料,还了解了现在的一些设计公司,最终找到了我们。通过对我们的了解,业主对我们的设计理念和落地效果还是很认可的。“成就设计师的永远是客户”,因为有了客户的信任,我们才能把这个方案完美的呈现出来。
The project is located in the Guiyang Read a four-story mountain lake villa. The male owner is engaged in the construction industry and has a pair of children who came back from abroad. So the space structure and aesthetics have higher requirements. The owner accessed a lot of relevant information about myself in the design and also saw some design companies. Now finally found us. Through our understanding, the owner of our design concept and landing effect is very recognized. "The achievement of designers is always the customer." Because of the trust of customers, we can present this plan perfectly.
穿过前院进入室内,现代风格的皮囊下,透出丝丝缕缕的中式韵味,是这个空间的感情基调。大气磅礴的门厅设计,别具一格的雕塑和贯穿二三楼的细节处理,是华丽与自然的并存,赋予空间强大的生命力,璀璨不息。
Entering the room through the front yard, under the modern style skin, there is a trace of Chinese charm, which is the emotional tone of this space. Grand hall design, unique sculpture and details throughout the second and third floors, is gorgeous and natural coexist, giving space strong vitality, bright.
◆
效果呈现
远山景色的硬包饰面配以铜片制作出山体的剪影,加上灯光的辅助,形成一幅大气磅礴的画卷。顶面的石榴籽吊灯也是这个空间的点睛之笔,是大气之中透出的诗情画意,是空间中的一种视觉魅力的存在,体现了现代工艺的极致,装饰艺术的精巧,极具个性,又弥漫无尽的浪漫气息。
The hard cover veneer of the distant mountain scenery is matched with copper pieces to make the silhouette of the mountain, and with the assistance of lighting, it forms a magnificent picture scroll. The pomegranate seed chandelier on the top is also the finishing touch of this space, which is poetic and picturesque in the atmosphere. It is the existence of a kind of visual charm in the space, reflecting the perfection of modern technology, the choiceness of decorative art, extremely individual, and filled with endless romantic atmosphere.
当金黄色的水波纹板配上蓝色的石榴籽状的灯光,犹如海面上溅起的点点浪花,与之相对应的不锈钢水波纹底板,和设计师原创的装饰石台,使得这个空间成为视觉的焦点,独具匠心的摆件设计,也是空间中不可或缺的点睛之笔。
When the golden water corrugated plate with blue pomegranate seeds of light, like the sea splashing the little waves, with the corresponding corrugated plate, stainless steel water and designers of the original decorative stone stage, make the space becomes the focus of visual and furnishing articles that show originality design, is also an integral part of the space.
设计师对于居者的全面分析,以及对材质的掌握,使得挑空客厅的每一面都有令人惊喜的视觉存在,多元开放,围而不合,每个区域之间既有明显的划分界限,又相互渗透,在形式上随着生活行为的变化,层层递进,在落点达到极致。
Designers for resident’s comprehensive analysis and grasp of the material, make the cantilevers on each side of the sitting room has amazing visual, pluralistic and open, and out, both the apparent boundaries between each region, and mutual penetration, in form as the change of life behavior, progressive transformation, achieve perfection in placement.
摒弃空间的界限,重塑流动的空间格局,我们从细节上入手,利用通向三楼的实木柱体和相同结构的展示柜,将电视背景墙进行延伸,和三楼的书房形成一个整体空间,灵动地连接空间的界限,对视觉进行了延续。
Abandon the boundary of space, reshape the flow of space pattern, we start from the details, using the solid wood column leading to the third floor and the same structure of the display cabinet, the TV background wall is extended, and the study on the third floor to form an overall space, clever connection of the boundary of space, the visual continuity.
开放式水吧区与客厅连为一体,提供了整个空间的品酒和休闲功能,优越的居住体验与极致的美学积淀逐一贴合,生活里的至情至味,悠长而辽远。
The open water bar area is connected with the living room, providing the wine tasting and leisure functions of the whole space. The superior living experience fits in with the ultimate aesthetic accumulation one by one, and the feeling and taste in life are long and distant.
设计师在处理冲突美学的逻辑上,通过风格特有的秩序进行表述。如简约时尚的女儿房,既有直线的干净、纯粹,又有曲线的柔和、圆滑。曲直并行,刚柔搭配是设计师的手段。墙顶一体的微水泥材料,将简约进行到极致,简约而不简单,精致而不浮夸,时尚高级不守旧,包容一切个性,以满足小女儿家的所有幻想。
The designer expresses the logic of conflict aesthetics through the order of style, such as the simple and fashionable daughter’s room, which has the clean and pure straight line, and the soft and smooth curve. Straight parallel, firm soft collocation is the means of stylist, the micro cement material of wall top an organic whole, will contracted undertake acme, contracted and not simple, delicate and not grandiose, fashionable advanced not conservative, contain all individual character, in order to satisfy all fantasy of little daughter home.
◆
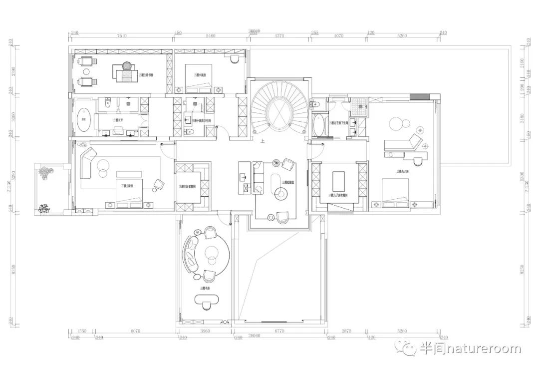
Three floor plan
◆
效果呈现
The effect appears
转至水吧台区域,背景的墨绿色岩板,开始渲染成墨绿色织纹墙布,结合代表性的白色水波纹顶面,材料和颜色变化的具象诠释,直观的表达新时代下,东方美学的意境。
Turning to the water bar area, the dark green rock board in the background begins to be rendered into dark green woven wall cloth. Combined with the representative white water ripple top surface, the concrete interpretation of material and color changes, it intuitively expresses the artistic conception of Oriental aesthetics in the new era.
书房蕴含中外古今的精粹,拥有超然物外的知识源泉,延续二楼古韵今风的设计手法,从亭宇楼阁的壁画中,从笔墨纸砚的书桌上,透露出“采菊东篱下,悠然见南山”怡然自得的意境,如一本老书,一杯清茶,无需更多点缀,在喧嚣中,自得一份心安,这就是设计给予空间的价值。
The study contains the essence of Chinese and foreign ancient and modern, has detached knowledge source, continuation of the second floor of ancient and modern design methods, from the castle in the ting yu murals, from by replacing ink on the desk, reveal ’" tori, picking everywhere in artistic conception, such as an old book, a cup of green tea, the most, no more in the hustle and bustle, complacent a reassuring, This is the value that design gives space.
从华丽中脱离,回归到卧室的居住本身,设计以个体生命的呼吸为节奏,放缓空间,沉静温良。材质上选用较温暖的布艺做基础,加以金属书架作为点缀,凸显出空间的自然和谐。设计上将千里江山图的元素融入空间,摒弃常规,而是将它拆分,重组,再生并将它进行延伸,犹如连绵不绝的山峰,永无止境。
The design takes the breathing of individual life as the rhythm, slows down the space, and is calm and gentle. The material is based on warm cloth, and the metal bookshelf is used as the ornament, highlighting the natural harmony of the space. The design integrates the elements of a thousand miles of rivers and mountains into the space, abandons the conventions, but splits it, reorganizes it, regenerates it and extends it, just like the endless mountains.
男孩房的设计以简洁私密和其喜好搭配时尚的元素打造独立个性的空间,享受属于自己的自由空间。抛弃刻板的传统,含蓄柔和的布艺结合简洁大方的大理石背景墙,包含着感性认知及理性解读的过程。
The design of boy room makes the space of independent individual character with concise illicit close and its be fond of collocation fashionable element, enjoy the free space that belongs to oneself. Abandoning the rigid tradition, the combination of implicit and soft cloth art and simple and generous marble background wall contains the process of perceptual cognition and rational interpretation.
◆
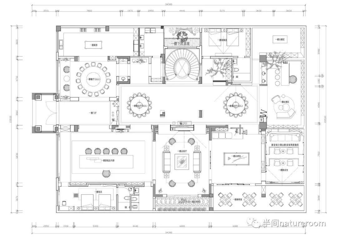
一层平面图
firstfloor plan
本案的业主对中国古文化有着很深远的研究,所以我们在设计中巧妙地揉入了很多具有中国文化特色的元素,以中式金属屏风相隔,打破室内空间的格局,虚实相交,光影错落,展现空间的无穷乐趣。榫卯结构构成的顶面相互交融,在写实和写意间,设计出赋有旋律的动态美,层层叠叠的屋檐壁画加以辅助,使得整个空间充满古文化的韵味,又不缺乏灵动感。
The owner of this case has a profound research on Ancient Chinese culture, so we cleverly ruffled into a lot of elements with Chinese cultural characteristics in the design, separated by Chinese metal screen, break the pattern of interior space, virtual and real intersection, scattered light and shadow, show the infinite fun of space. The top surface composed of mortise and tenon structure blends with each other, and the dynamic beauty with melody is designed between realism and sketchwork. The layer upon layer mural of eaves helps to make the whole space full of the charm of ancient culture without lack of vitality.
◆
效果呈现
The effect appears
电视背景墙将空间一分为二,使得空间具有中式的围合感又不会显得太过呆板,岩板饰面结合硬包,是不对称的空间美学,透光混凝土加以辅助,使之融合得恰到好处。以细节表达微观思维的艺术性、舒适性。
The TV background wall divides the space into two parts, making the space with a Chinese sense of enclosing but not too inflexible. The rock plate veneer combined with the hard package is an asymmetrical space aesthetics, assisted by transparent concrete, so that the integration is just right. Details to express the artistry of micro thinking, comfort.
墨绿色岩板与金属格栅的搭配,是古今文化的碰撞,兼具功能主义和美观性。同时顶面的曲面处理,延展自然,将东方意境中的空灵、轻柔呈现,从宏观角度感受无与伦比的建筑创意和立体感。
The combination of dark green rock slab and metal grating is a collision of ancient and modern cultures, which has both functionalism and aesthetics. At the same time, the surface processing on the top extends the nature, presenting the ethereal and gentle Oriental artistic conception, and feeling the incomparable architectural creativity and three-dimensional sense from a macro perspective.
独具匠心的天井设计,将树枝延伸到室内,同时也将阳光纳入空间。当清晨的第一缕阳光照射到空间,投射出斑驳错落的光影,引人无限想象。透光混凝土墙面,天井下的景观,为衔接空中奇观做铺垫。以此动人景致为背景,邂逅浪漫与高级感,奢享生活的惬意与优雅。
The unique design of the patio extends the branches into the room and brings the sunlight into the space. When the first ray of sunshine shines on the space in the morning, it casts a mottled light and shadow, attracting infinite imagination. The transparent concrete wall and the landscape under the patio pave the way for connecting the aerial wonders. With this moving scene as the background, you can encounter romance and advanced sense and enjoy the comfort and elegance of life.
◆
关于半间设计
About half room design
半间 natureroom
公司地址
总公司:上海市长宁区愚园路 1107 号半间设计
TEL/V:19821416616
梁东
分公司:贵阳市观山湖区金阳南路 6 号居然之家
TEL/V:13162082897
高丽娟
客服
消息
收藏
下载
最近












































