查看完整案例


收藏

下载
为此,主创建筑师王皓认为,实验室的设计应当具有自然美,空间要足够开阔,让光充分涌入室内,安静的空间既追求气质的雅致,又力求通过线条的营造,将空间演绎出与众不同的艺术气息。
“有间酒堂”
“有间酒堂”坐落于上海徐家汇日月光购物广场商铺旁设计灵感来自于上海现代海派文化。
融入光泽感极具创意、闪耀极简元素、开启不一样视觉享受的仪式感,都应当由这间酱酒实验室展现出来,从而勾人心绪。
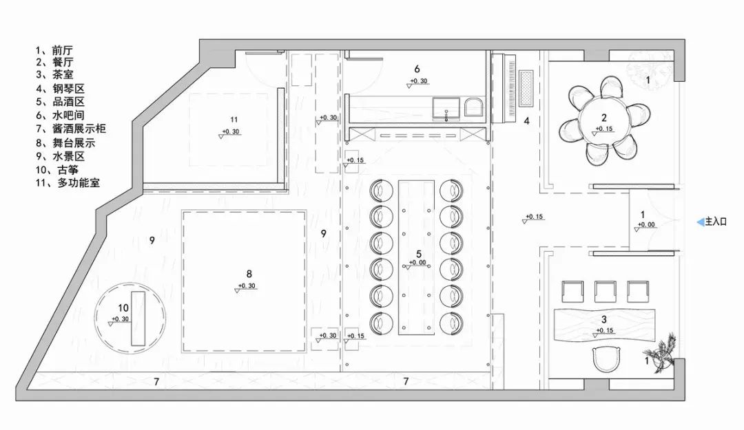
实验室设计
具有自然美,空间要足够开阔,让光充分涌入室内,安静的空间既追求气质的雅致,又力求通过线条的营造,将空间演绎出与众不同的艺术气息。
对待每个设计
主创王皓都格外关注空间情感的流露,仿佛一位空间的诗者,通过情景的诗意表达,勾勒出令人神往的意境,安静、纯粹、自然、舒适。
整个空间在材料的选择上,运用了水、木质元素以及砖块,现代朴实的石材加上敞开的空间,内外景色互相映衬,相互交融。大面积的砖面与蓝色对比是设计的亮点,空间置入了一片水景,与舞台相融合得到最大化感受体验,带来亦真亦假的虚幻感,打破和颠覆以往传统酱酒品牌空间的气质,成为当代主流品牌核心价值。
建筑内的墙体被粉刷为白色和蓝色为基调,一根根百叶立柱以其双曲线型圆拱顶造型支撑着极简主义风格,“空间是设计师寄托灵魂的情感表达,我希望通过灯光与材质的现代表达,传达出设计的精神。”
品酒区利用北欧实木藤编椅子与小物件搭配现代简约的家具,将空间与时尚相融合,带来和谐的混搭风空间。通过大面积的木质隔断造型,可以欣赏到整体壮阔的视觉景色,不论是在品酒还是喝茶上,坐在藤编椅上休憩都让人感到无比的惬意。
这间“美学实验室”
酱酒品牌旨在将空间的精神内涵物化为实体空间。设计虽然简单,但足以震撼人心,力求聚焦于现代文化,留下存在意义的记忆。建筑室内形态的有机统一是为呼唤更加自然的精神特质、迎接更加舒心的向往。
它是一个梦幻极简的空间,没有装饰的复杂性,可以通向无垠的天空,让人感觉一切皆有可能。
项目名称:(上海徐汇“有间酒堂”)
项目地点:中国·上海·徐家汇
建筑面积:150㎡
项目业主:知酒堂
设计公司:DCDSAA淀川建筑事务所
主持建筑师:王皓
设计团队:袁郑亮、唐超、颜丙坤
建成时间:2020年12月
灯光顾问:驰加照明
施工单位:上海缔家设计工程有限公司
主要材料:不锈钢金属、超白玻、木饰面、水磨石、实木百叶、钢板、肌理漆
项目摄影:ELTON STUDIO朱恩龙
·END·
亚太公装
优秀案例、行业知识分享
客服
消息
收藏
下载
最近






















