查看完整案例


收藏

下载
现代
混搭
/TIME IMPRESSION 时光印象
业主是一对年轻夫妻,从事艺术类方面工作。女主人喜欢通透明亮、简单时尚的生活方式。
项目信息
Information
—
项目名称:春风度
Project Name:Chunfengdu
户型/面积:联排/220㎡
Unit Type /Covered Area:townhouse /220㎡
设计风格:现代混搭
Design Style: Modern mashup
设计师:陆雷
Designer: Lulei
施工单位:美的家装饰工程中心
Construction Unit: Midea Home Decoration Engineering Center
DESIGN DESCRIPTION
设计说明
设计师把握设计介入的分寸,致力利用自然给予的光、风,来带动空间的情绪。拆除大部分墙体,重塑空间功能布局,大大增加厨房与主卧的使用性。色彩方面选用蓝灰色为主色调,软装上使用大量金色,让整个空间静谧又不失活泼。
DESIGN DESCRIPTION
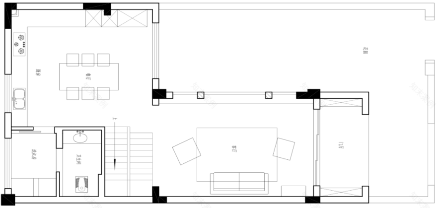
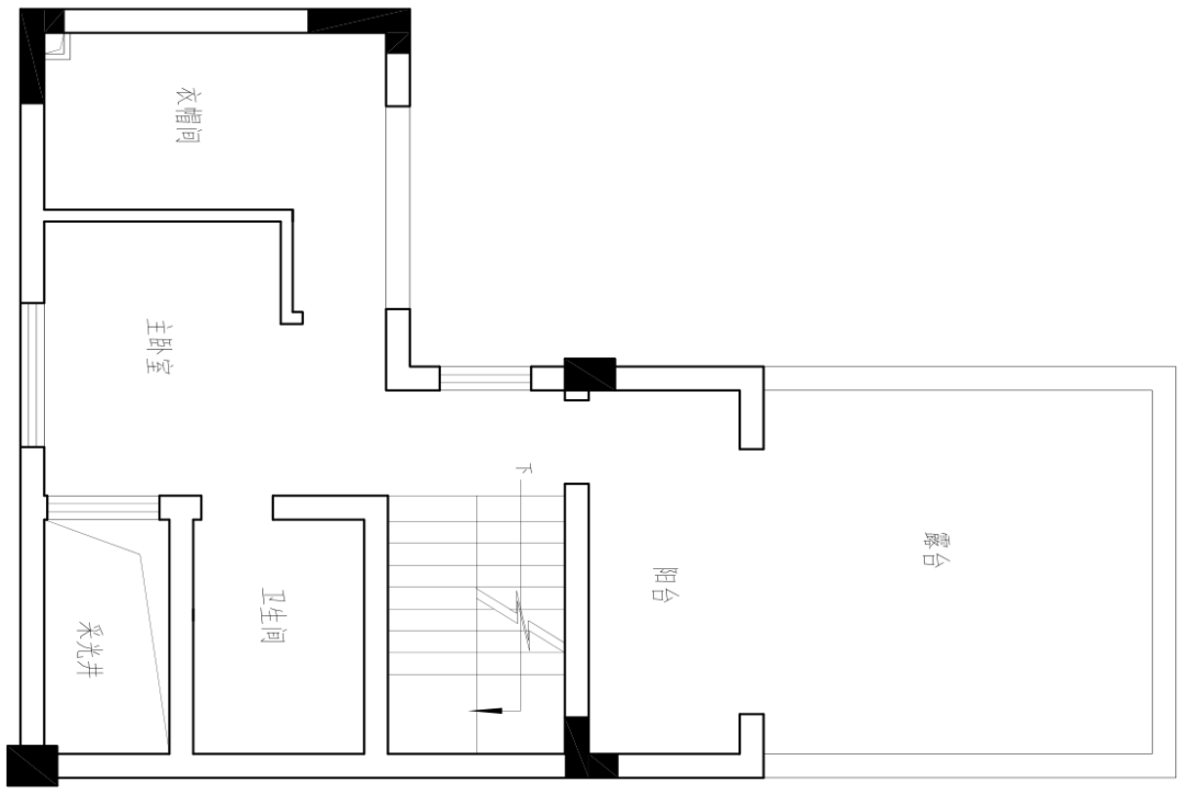
一层空间改造设计
室内原本空间比较零碎,室内除开卫生间其他的墙体基本全部拆除。
滑动查看一层平面 / 原始图
一层客餐厅部分不再做任何阻挡;
由于业主一家没有看电视的需求,因此将原电视墙部分的小窗扩大,使电视墙变成有三块落地玻璃组成的落地玻璃,便可坐在沙发上赏四季变化;
完工实景·客厅
Living Room
— —
客厅是家人共享空间,取消传统茶几功能,增加客厅活动空间,减少卫生死角,避免物品堆砌空间杂乱无章。毛绒大地毯摆设,家人席地而坐增加情感交流。
为了更好地打造一个舒适随性的空间,室内空间的材质与色彩运用得比较克制,以木质、绒、软皮等极具亲和力的材质装饰,营造屋主想要的“自在、恰当”的空间氛围;并且沙发背后的线条,为空间增加稍许层次感。
落地窗搭配百叶叶窗设计,阳光层层叠叠洒满客厅,线条与光影交织出疏密美感,自然写意情调油然而生,让人倍感舒适与惬意。搭配明黄与橙色装饰点缀,整个空间光亮、恬静而温暖。
COZY COMFORTABLE
完工实景·餐厅
RESTAUNANT
— —
餐厨一体的布局方式摆脱传统观念束缚,让下厨与就餐融为一体有说不完的故事。方形餐桌面对面用餐,甜蜜又温馨。浅浅灰与白营造出纯净的高级,搭配人字形原木地板、柔和的白光,将居住者生活映衬得别有格调。
DESIGN DESCRIPTION
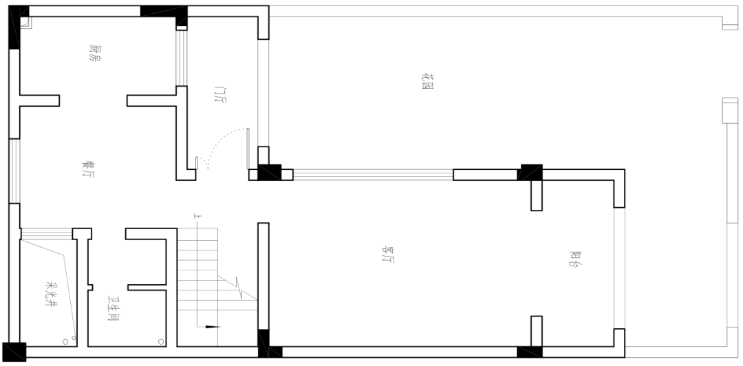
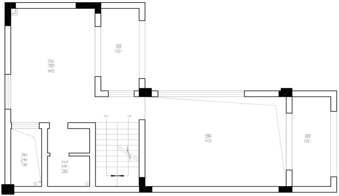
二层空间改造设计
滑动查看二层平面 / 原始图
二层按照业主所需,将两个卫生间改成了一个公卫,房间数变为 3 个,最大程度上满足了客访居住的要求。
完工实景·次卧
SECOND BEDROOM
— —
淡淡的紫+白与浅灰,温柔而美好。金属组合台灯边几,为柔和的空间增添些许刚硬的气质。温润的人形原木地板,搭配柔软的床品,营造出自然舒适的居住氛围。
DESIGN DESCRIPTION
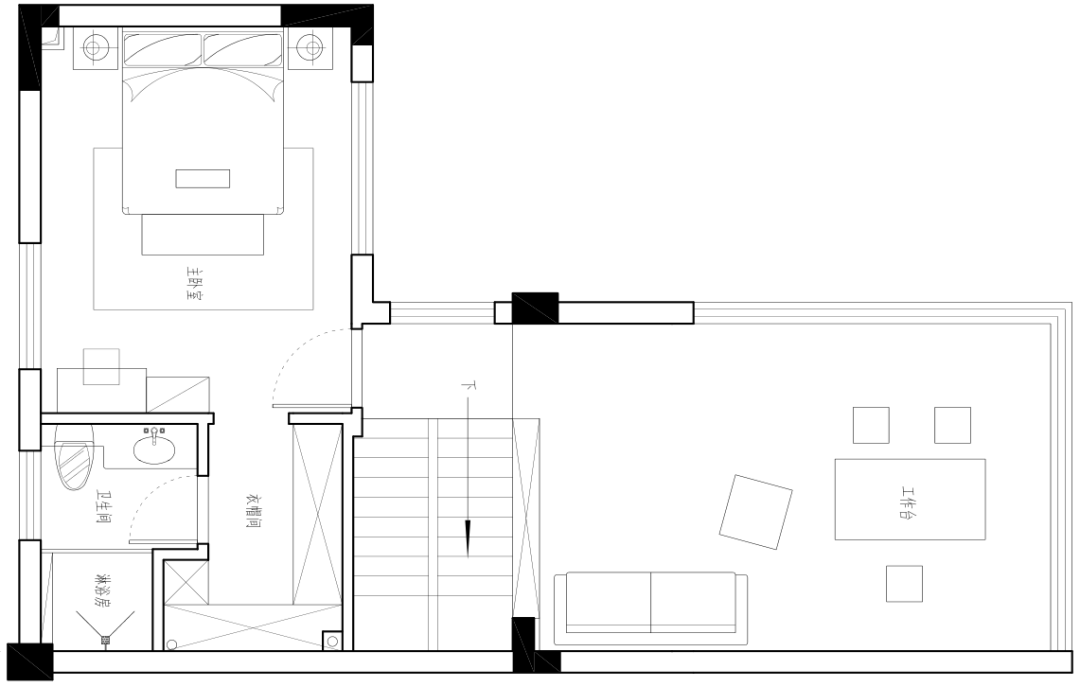
三层空间改造设计
滑动查看三层平面 / 原始图
三层的原始露台改成了业主需要的工作室,成为他们呆得最多的空间。
完工实景·主卧
MASTER Bedoom
— —
主卧知性而优雅。用白茶为主的色调,局部点缀白色、金色、木色,在现代休闲的基础上,始终散发着轻奢的高级感。千鸟格的背景墙布,鱼骨纹的靠背布艺,卡其色的窗帘,米咖色和米色拼色的家具,使得空间层次错落有致。
MASTER BEDROOM
完工实景·书房
STUDY ROOM
— —
空间舒适通透,工作之余融入自然其乐无穷。整体以沉稳内敛的灰蓝色为基调,配以白色、金色、原木色为点缀,在优雅、宁静、安稳的环境中透露一丝高级感。
一本书、一杯茶,静享悠扬午后。
DESIGN OF HONOR
全国住宅装饰装修“百强企业”
全国青年艺术人才(重庆)室内设计奖
SF 设计大赛十大青年设计师
APIDA 亚太区室内设计大奖
艾特国际空间设计大奖
中国住宅设计大奖
中国建筑装饰设计艺术设计大奖
IFI 中国室内设计大奖
M+中国高端室内设计大奖
金瓦年度住宅空间设计大奖
IDS 国际设计先锋
全国第四届美标设计大奖
亚太室内设计大奖
德意杯中国室内设计明星
卡萨帝艺术生活设计创意空间设计大奖
创意中国·第四届全国室内设计大奖
2020「营造家奖」西南赛区年度设计 TOP100
客服
消息
收藏
下载
最近











































