查看完整案例


收藏

下载
融合生活与空间质感
「黑白灰的沉稳之家」
「现代」
500㎡
星麓原 XINGLUYUAN
项目信息 Information
—
项目名称:星麓原 Project Name:Xingluyuan
户型/面积:叠墅/500㎡
Unit Type /Covered Area:Stacked villas /500㎡
设计风格:现代
Design Style: Modern
设计师:李晓娥 傅孝科
Designer: Lixiaoe Fuxiaoke
施工单位:美的家装饰工程中心
Construction Unit: Midea Home Decoration Engineering Center
DESIGN DESCRIPTION
设计说明
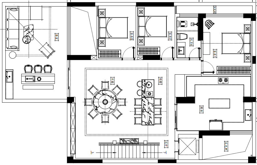
本案整体结构改造比较大。将原本叠上叠下的户型,连通作为一套户型来设计,并且在动线上做了大调整,比如楼梯与电梯的设计,让整个户型的通行度与动线更为明确;在色彩搭配上,选用黑白灰为主基调,搭配一些明亮色彩的软装,营造一个时尚舒适的质感空间。
左右滑动查看负一楼/一楼 平面/原始图
完工实景·客厅
Living Room
— —
黑白灰的空间基调。柔软时尚的家居饰品来衬托空间的舒适。通过材质、肌理,以及比例赋予空间更多的细节。通顶的书架充当客厅与书房隔断,落地窗将阳光引进室内,洒满整个空间,使整个空间看起来更加明亮与通透。同时沙发顶部安装的轨道灯,起到照明之时也有烘托氛围作用。
完工实景·餐厅
RESTAUNANT
— —
餐圆桌特有的圆融共和感,缩短多人用餐时的距离;让亲人之间的共处时光更紧密亲近,成为工作归来之后的和乐与归属。
专设吧台区域,兼具日常生活所需之余,又满足主人偶尔小酌、喝咖啡......的爱好。
完工实景·书房
STUDY ROOM
— —
深棕色的背景墙,搭配同色系的书柜、书桌以及书架,充分突出书房的安静与沉稳,读书写字或工作不由自主的便沉浸其中。
完工实景·主卧
MASTER Bedoom
— —
简约且富有生活气息。落地玻璃窗搭配白纱,主卧光线充足。棕色的皮质靠背与床尾凳、以及装饰画,为简约舒适的空间增添些许时尚气息。
独立衣帽间,收纳功能满分,实用性非常强。
完工实景·次卧
SECOND BEDROOM
— —
次卧回归沉稳与舒适性。摆放在窗边的时尚挂画搭配柔软的床品,打造富有时尚舒适的空间氛围。
完工实景·儿童房
MCHILDREN’S ROOM
— —
蓝色的背景墙搭配橙色的床与窗帘,空间沉静不失活泼感。
完工实景·娱乐室
RECREATION ROOM
— —
开放式娱乐空间,健身、台球区,玩乐、健身之时,还可进行聊天互动。
/END/
DESIGN OF HONOR
全国住宅装饰装修“百强企业”
全国青年艺术人才(重庆)室内设计奖
SF 设计大赛十大青年设计师
APIDA 亚太区室内设计大奖
艾特国际空间设计大奖
中国住宅设计大奖
中国建筑装饰设计艺术设计大奖
IFI 中国室内设计大奖
M+中国高端室内设计大奖
金瓦年度住宅空间设计大奖
IDS 国际设计先锋
全国第四届美标设计大奖
亚太室内设计大奖
德意杯中国室内设计明星
卡萨帝艺术生活设计创意空间设计大奖
创意中国·第四届全国室内设计大奖
2020「营造家奖」西南赛区年度设计 TOP100
客服
消息
收藏
下载
最近


























