查看完整案例


收藏

下载
项目信息
Information
━
项目名称:名门山庄
Project Name:Mingmen Villa
户型/面积:别墅/400㎡
Unit type/Covered Area: Villa/400㎡
设计风格:新中式
Design Style:New Chinese
设计师:罗松
Designer:Luosong
融合东西方元素,于对比之中寻求和谐统一,营造出具有东方韵味的现代都市空间氛围,让居住者能在繁琐的日常里沉淀内心,回归宁静。客厅 Living room—
因景互借,住宅、庭院,小环境和大环境统一在一起,实现一个艺术化的生活环境。借窗景、内景,客厅可见庭院、茶室、吧台,高堂素壁,明窗几净,有坐卧之安。
高挑空客厅,搭配现代极简线条楼梯,空间宽敞明亮,通透感、层次感十足。光线洒入室内,让整个空间仿佛蒙上一层柔美的滤镜。同时,将山水之景融于其中,营造出缥缈起伏之景。
一面窗,内外通透,日暖风和。
餐厅 Rerstaunant—
“借景”至家,清雅儒韵。
西餐区借客厅、吧台、茶室以及庭院之景,搭配自然肌理感的大理石与温润质感的原木、现代时尚金属元素、简约素雅的配饰,勾勒出空间低调优雅而不失温馨的高雅格调。
Chinese resteaunant 国人对圆的“喜欢”是刻在骨子里的。中式大圆桌、弧形方餐椅,简约的线条,搭配现代感极强的餐边柜与水晶吊灯,渲染亦古宜今的用餐氛围,让你吃饭也能如此优雅。
茶室 Tea room—
优雅的灰、平朴清贵的木,将东方的风韵和现代的艺术锲合,简练而温暖。大面采光,将窗外美景尽收眼底,室内与室外自然融合,寥寥数笔,东方的清雅与灵逸缓缓而入。
主卧
Master bedroom
—
摒弃繁杂装饰与家具,简约淡雅,现代感极强的金属元素点缀,营造舒适安逸且时尚精致的氛围。原木的纹理似乎在诉说传承千年的故事,远离喧嚣,岁月静好。
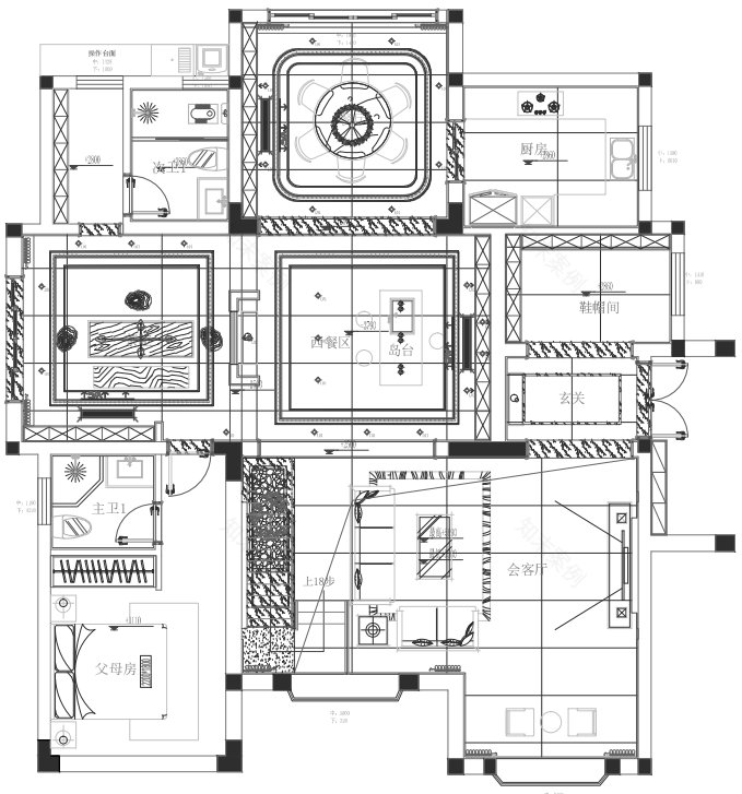
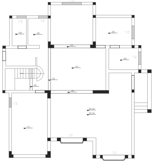
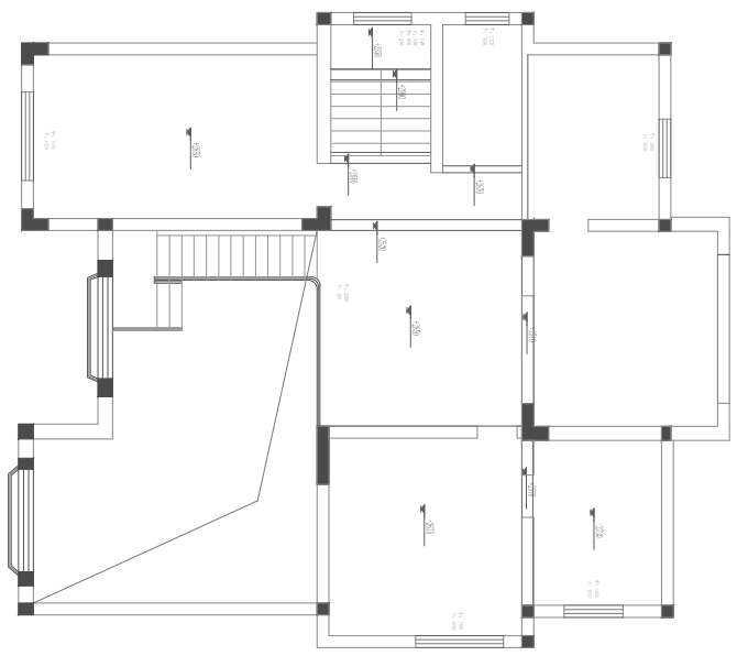
丨户型改造设计
滑动查看一层/二层 平面/原始图 -THE END-
会呼吸的家,圆你一个田园梦
极简 MUJI 风,原木中领略东方禅意
300㎡法式轻奢丨精致华丽雅居
网红美居丨这样设计才够惊艳!
大美新中式,国人骨子里的中式情结
工装设计丨重庆FFC超高颜值办公设计
DESIGN OF HONOR
全国住宅装饰装修“百强企业”
全国青年艺术人才(重庆)室内设计奖
SF设计大赛十大青年设计师
APIDA亚太区室内设计大奖
艾特国际空间设计大奖
中国住宅设计大奖
中国建筑装饰设计艺术设计大奖
IFI中国室内设计大奖
M+中国高端室内设计大奖
金瓦年度住宅空间设计大奖
IDS国际设计先锋
全国第四届美标设计大奖
亚太室内设计大奖
德意杯中国室内设计明星
卡萨帝艺术生活设计创意空间设计大奖
创意中国·第四届全国室内设计大奖
2020「营造家奖」西南赛区年度设计TOP100
客服
消息
收藏
下载
最近
















































