查看完整案例


收藏

下载
/ 与自然同居
/ 与山月同歌
新
中式
融信澜湾
260m²
杜牧
·
唐
银烛秋光冷画屏,
轻罗小扇扑流萤。
天阶夜色凉如水,
卧看牵牛织女星
。
秋夕
身陷朝市,
内心往往渴望与自然同居,
与山月同歌的写意生活。
本案项目位于融信澜湾
,设计师以现代都市人的愿景,设计了一个绿植环绕,星月相照,可收藏万千自然风光为自家风景的诗意栖居。
客餐厅
一层空间采用
开放式格局模式
,
打通客餐厅的界限,
延展了空间的维度,让氛围自在流动。
步入正厅
,磅礴大气,古香古色。
设计师利用艺术的手法抒情,写着东方美学与艺术交融。
木面、布艺,从褐至白,
两色辉映、和谐,
微风徐来,聆听山语,
将时光与生活酿成诗
。
窗外是山河远阔,
窗内是闲茶禅致
。
两面采光,坐拥自然馈赠的美景与诗歌;
大理石与水墨技艺结合的电视背景墙,
充分体现了中式与现代的组合演绎。
水墨晕染给人舒缓沁透,大理石饰面使人清硬冷萃,两者叠搭,和合静美。
餐桌椅、餐边柜与空间整体色调一致,
给人以沉稳尊贵的印象,
加入惊艳的中国红,醇厚、灿烂而极致,
为视觉创造停留点,
一木、一布之中,三茶六饭间自有喜乐与团圆。
起居室
古往今来,
每个国人的文人心中皆有个“山水梦”
。
淡雅灰白调,暖光铺韵,
休闲与禅意于一体,
木纹元素从地面伸展至墙面,
序列感十足的木栅格,
古韵摆件、花艺的点缀,赋予整个空间现代东方的美学观感。
起居室连接阳台
,
大面积采光让自然与生活之间有所联系,
升华了空间所存在的意义。
光,衬着景,
好似为空间蒙上了一层滤镜,
在风的撩拨下,更显居所的温润与澄静。
主卧
主卧设计偏向
现代化
。
半高自然石材+木饰面背景墙造型设计,
其间埋入灯带,
木质的肌理为空间增添了韵律感,
搭配时尚舒适的床品,营造宁静安逸的睡眠空间。
靠窗增设悬空书桌,
卧室书房兼并,
既可作为工作台,
又
可充当梳妆台,
且又符合当下年轻一代人的率性、洒脱的个性。
老人房
老人房微妙布局,
恰到好处的
中和之美
。
大量木饰面搭配棕色与灰色软装,
沉稳之中可见典雅,
并且利用梅花、喜鹊、笼中鸟等元素,
表达了老人安逸闲趣的晚年生活。
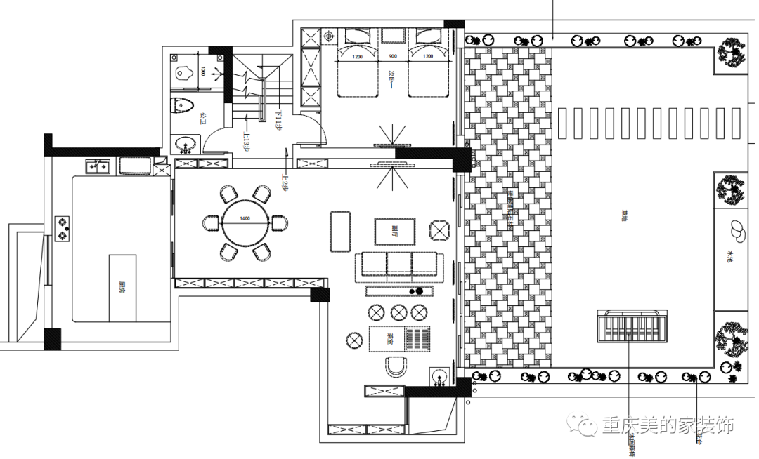
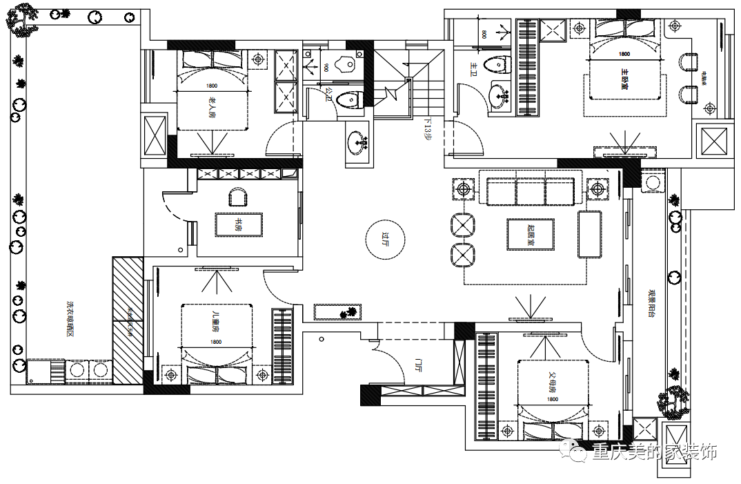
丨户型设计
滑动查看 负一层 / 一层 / 二层平面布局图
丨项目档案
项目地址/Project address:融信澜湾
面积/Square Meters:260㎡
风格/Style:新中式
户型/Apartment:洋房底跃
设计师/Designer:赵志远
-END-
近/期
/
热/文
Recent posts
极简MUJI风,原木中领略东方禅意
300㎡法式轻奢丨精致华丽雅居
网红美居丨这样设计才够惊艳!
138㎡理工男美家,纯粹的极简设计
高级灰+轻奢丨至臻格调的气质居所
大美新中式,国人骨子里的中式情结
工装设计丨重庆FFC超高颜值办公设计
美的家为精英定制生活
客服
消息
收藏
下载
最近


































































