查看完整案例


收藏

下载
D·E·C·O·R·A·T·I·O·N S·T·Y·L·E
现代
简
约
轻奢
简单亦是一种美,纯净的底色,
搭配任何一种家具,都尽显浪漫的生活气息,
满足你对家居生活的无限想象。
居住空间的本质是人与人间所发生的情感交集场所,而家的温馨之处,便在与设计让它拥有了故事与情感,一点点寻找理想中家最美好的模样。本案是发生在一个幸福的五口之家,业主夫妻俩都是社会成功人士,家中有一儿一女。
01
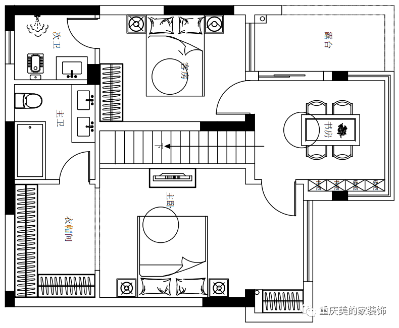
客 餐 厅
美式壁炉电视墙造型,优雅的线条、皮质灰粽沙发、金属工艺摆件,芦苇花艺,加以哑光镜面的沙发背景墙,为纯白的空间营造层次,融入一丝内敛稳重的氛围,使空间不至于过于轻盈而显得的轻佻。
落地窗将客厅与花园相连,在这样的环境中,感受晨光微露,正午暖阳,黄昏暮霭,透明的时光氤氲流动。
开放式客餐厅,餐厅里墙而置,长凳+餐椅的组合,金属餐腿大理石台面,搭配墙上镜面创意饰品,以及现代化时尚吊顶与挂画,构建了一个浪漫温馨且精致的用餐氛围。
02
影 音 室
负一楼为影音室,舒适的观影感是它设计之本。设计师选用灰色作为基调,搭配同色系的绒质沙发与地毯,温润的木、暗色系装饰配件为点缀,营造一个文雅、舒适的观影氛围,在家也可享受电影院的气氛。
优化电影院影屏设计,选用定制储柜形式、影屏嵌入其中,超级实用,可满足日常生活收纳储物需求。
03
书 房
书房作为主人工作与学习之地儿,对于采光与照明有着极高的要求。因此设计师在设计过程中充分考虑了光与影的存在,三面采光加链接阳台,复古麻棉的窗帘、木质书架,大理石台面书桌,不同灰度的主基调下融入略带温度的暖色系,深浅明度的变化无不体现着美感。
04
主 卧
极简风格,玩转自然石+木元素。运用灰色的冷淡与清雅,融入自然,投入大自然的怀抱,回归质朴的内心。装饰上简约之中带着一丝时尚,洋溢着对生活安静、舒适、纯粹自然的追求。
大落地窗与阳台相连,开放式衣帽间设计,让自然光更多的引入,弥补了里面衣帽间采光不够的缺憾。
05
女 儿 房
公主风主题。粉嫩的基调,选用卡通挂画、毛绒公仔,整个空间更加活泼生动,且满满的孩童气息。柔和的床头装饰灯与柔软的床品相互呼应,表现出细腻的质感层次。
06
儿 子 房
灰与蓝基调的儿子房,加入活力橙,结合卡通玩具与摆件,整个空间活泼趣味十足。
07
客 卧
客卧给人以舒适宁静的简约感,木饰面布艺背景墙软包,金属线条穿插点缀,空间中每一件单品与材质都在同一空间之中呼吸,呈现出极简设计的安静与美感。
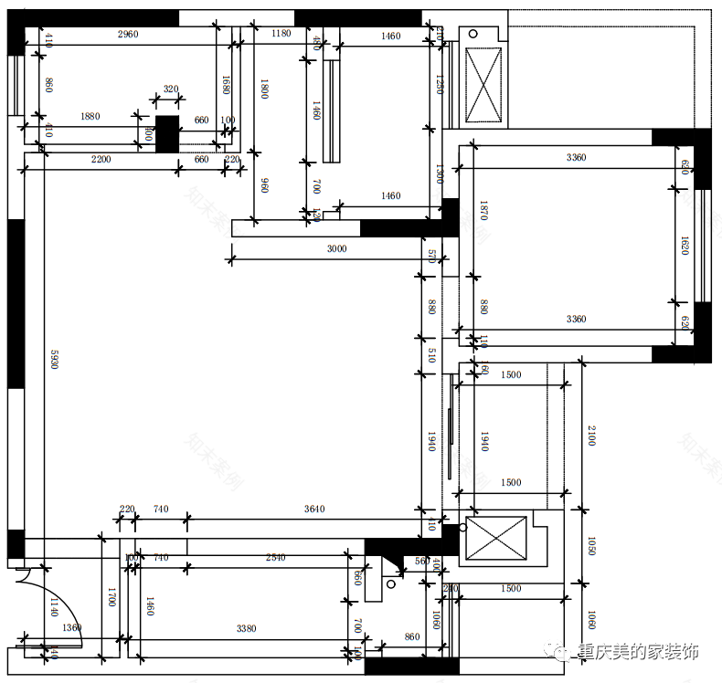
丨户型设计
滑动查看一层/二层 平面/原始图
丨项目档案
项目地址/Project address:协信城立方
面积/Square Meters:200㎡
风格/Style:现代轻奢
户型/Apartment:别墅
设计师/Designer:何光燕
客服
消息
收藏
下载
最近









































































