查看完整案例


收藏

下载
有这样一种现象,
我们身在中国,但却远离中国。
渐渐地,我们忘记了本来的面目;
慢慢地,我们忘记了端庄、素雅、归真的模样……
现在,
唤醒沉睡已久的文化,
将传统审美与当下融合,
找回属于东方的那份儒雅精致。
博大精深、源远流长
的传统文化
,
赋予了我们源源不断的设计灵感
。
本案利用
艺术
的手法进行
造景
,让空间赋有文化底蕴;
与此同时,
以古写今
,用现代的手法表达传统东方美学,为现代的生活带来
古韵今用的新意
。
01
客厅
LIVING ROOM
传统中式与现代的衔接,每一步,
如行云流水般一气呵成,相辅相成,相得益彰,将风雅千年的东方气质娓娓道来。
岁月刻于木之上,
历史赋予大地感性
。
浅浅淡淡的木,纯净柔和的光,
肌理自然的石材,
别致的工艺摆件,
简约方形吊顶,
诠释了中国东方神韵,
置身之其中,格调风雅质朴,简约而不落俗套。
超大落地窗
,
明亮的光透过的白色纱窗,
照耀在古香古色的空间里,浪漫又有诗意。
于此刻,偷得浮生半日闲,慵懒与悠闲,已模糊了界限。
02
餐厅
RESTAURANT
木质包裹的餐厅空间
。
一股浓浓的写意水墨气质注入到空间里,既提升了空间的品质,又让东方韵味无限弥散。
精致的餐盘,搭配传统中式元素点缀其中,与梅花花艺,营造出自然的诗意与东方的风雅。
03
卧室
BEDROOMM
盛一室清宁,
享一世清欢
。
棕灰调的卧室。
浓淡皆宜,安静淡然,质朴素雅,
在充满诗意的格调之中,散发出一种悠远、浑厚的文化韵味。
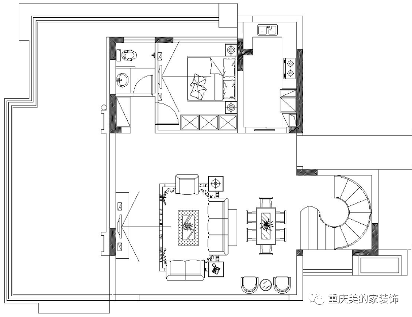
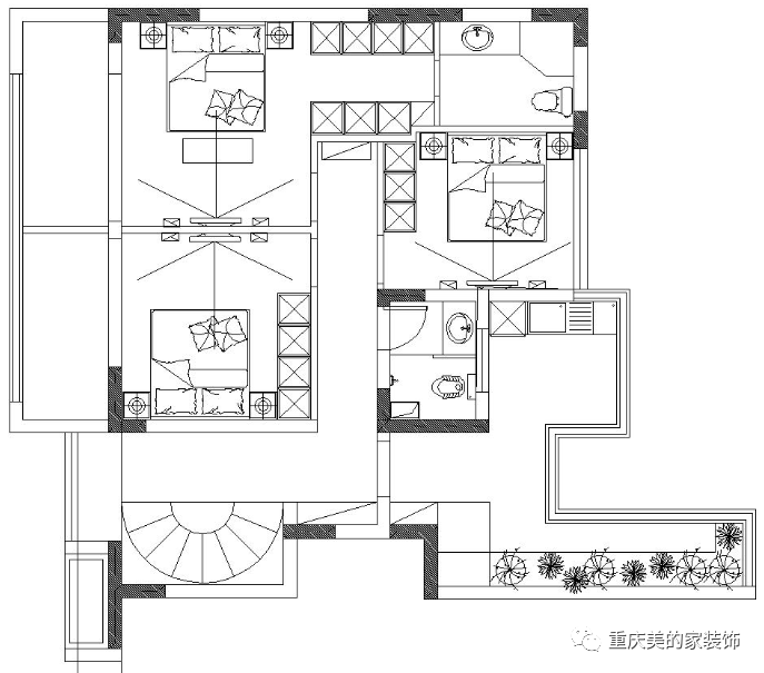
丨设计图纸丨
滑动查看 一层 / 二层 平面设计图
丨项目档案丨
楼盘/Property:
博翠天悦
面积/Square Meters:117㎡
风格/Style:新中式
户型/Apartment:洋房
设计/Designer:黄剑雄
-END-
近/期
/
热/文
Recent posts
高级灰+轻奢丨至臻格调的气质居所
大美新中式,国人骨子里的中式情结
一半原木,一半自然
珠江城丨现代潮流时尚大宅
栖居·东方
工装设计丨重庆FFC超高颜值办公设计
美的家为精英定制生活
客服
消息
收藏
下载
最近














































