查看完整案例


收藏

下载
▲完工毕业照,屋主与设计师合影
闲看庭前花开花落,
漫随天外云卷云舒。
家,在中国人眼中不仅仅是一个住所,
更是一个心的归宿,
是流躺在血脉里的深沉情愫。
新中式或许没有华丽的色调、繁杂的装饰,
但骨子里透露出来的典雅格调,
却让心灵行至深处,找到淡定从容的温柔归属。
屋主是公职人员,
对中式传统文化的中庸与禅意更加偏爱。
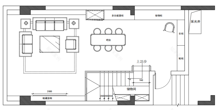
一楼设计图纸
在结构上,原客餐厅一眼看尽,通透空旷,但少了应有的层次感和隐私性。设计师运用了拱形元素,以此突显空间感和传统文化装饰氛围。
入户
RUHUXUANGUAN
移步入户,大家之风,贵气灵动。
玄关翘头柜,角牙装饰饱满秀逸,纯铜雕花配件细腻精致,呈现出简约雅气的家居美感。
客厅
KETING
远山叠峦悠远,飞鸟掠影江水边。
中式水墨,
以净澈写意,以禅意赋题,抛去繁冗,在简素淡然中沉淀浮躁的心性,使环境和心灵都达到灵与静的唯美境界。
禅是东方文化理论精髓之一。
大道至简的新中式家具,
线条简约流畅,
将风格特有的质感和美感完美表达,
整体氛围宁静雅致。
拱形门,虚与实,显与隐,
凸显了东方美学中的空间层次感,
古朴优美,富有视觉张力。
中式元素的铺陈,
中式器具的灵动毓秀,
共同为本案的中式风韵贴切注脚。
餐厅/厨房
CANTING&CHUFANG
餐厅设计摒除过度矫饰,
木质元素贯穿始终,
禅意清韵,讲究天人合一,追求人与自然,人与天地的和谐统一。
负一楼设计图纸
负一楼拆除了多余的墙体,改造成茶室和西厨,寓厨寓茶于乐。
茶室/西厨
CHASHI&XICHU
茶室设计取意,
白墙青砖黛瓦,小桥流水人家。
闲暇十分,沏一壶好茶,会客会友,闲谈悠然,余香袅袅。
二楼设计图纸
二楼重新架构空间,设计成大套房。增加一个主卧的门厅,在空间中起了左右过渡和入户过渡的一个区域。
主卧套房
ZHUWOTAOFANG
主卧的设计,
延续了空间的雅正之风。
软硬装搭配和谐统一,
布艺的水蓝色调,与家具的沉稳色彩形成对比。刚中带柔,谦逊宁静,意韵悠远。
三楼设计图纸
三楼增设了一个书房,并保留了一个可以和书房一起配套使用的休闲阳台,实用的同时兼顾舒适的感受。
书房
SHUFANG
中式书房讲究谦和的气韵。
一案一椅一卷书,一灯一人一杯茶。
可挥毫泼墨,可沉思静悟,摒弃外面世界的喧嚣和浮躁,于侘寂时光中与自己对话。
儿子房
ERZIFANG
灰与蓝,
静谧色泽中,
包裹着温柔的气质,
深邃如眸,
轻松,自然,平静。
Gray and blue,
Quiet in color,
Wrapped
with tender temperament, deep as eyes,
Easy, natural and calm.
四楼设计图纸
阳光清风,
抑或日月星辰,都会陪屋主及家人一起,把繁忙的生活过成诗。
|
项目档案
项目地址:金科天宸1街区
户型面积:跃层联排/290㎡
设计风格:新中式
设计师:赵志远
-E
ND-
近/期
/热/文
Recent posts
119平现代风大平层,冷暖有序、素雅高级
日式原木 ,清新·淡雅
联排别墅丨文心墨雅,浅山雅境
栖居·东方
工装设计丨重庆FFC超高颜值办公设计
美的家为精英定制生活
客服
消息
收藏
下载
最近



































































