查看完整案例


收藏

下载
“天青色的烟雨,而我在等你”,
一个不经意的擦肩而过,
或许会成为往后余生一辈子的温情。
丨项目档案
项目地址/Project address:江山明月
面积/Square Meters:216㎡
风格/Style:新中式
户型/Apartment:联排别墅
设计师
/Designer:王羿 于文杰
丨业主
业主是一对文人墨客,他们喜好古风,崇尚传统文化,追求古香古色的国风艺术。三世同堂,有一闺女,父母偶尔来居住。
—
设计说明
Design Description
—
全屋以原木系为基调,加入水墨元素,适当的留白、构图,再搭配点点细腻的色彩点缀,营造出一个清秀淡雅,雅致脱俗的栖居。
色彩搭配
Color matching
—
原木色系+水墨元素。
原木色系,取于大自然,它纹理天然,质感朴实而静雅,加入水墨元素,中和原木的温润,使其多一份婉约的芬芳。
客厅空间
整个客厅在现代舒适的基础下,
加入中式禅意的细节点缀,充满了韵味气息。
木与水墨元素存在空间的每一隅,
淡淡素笺,浓浓墨韵,浸染尘世情怀,清秀古雅,淡泊脱俗。
奇峻的山峰、遒劲的松枝,
引自然景致入室,随意一框,便是一景,一切生发都自然无比。
餐厅空间
形简、存意,
每一个细节都是对传统文化的诠释。
墙面的水墨组合挂画、圆形转动餐桌以及舒适的餐椅,以细节关爱家人,给予家人更舒心的用餐环境。
主卧空间
自然,灰白的色调带些许禅意的空寂;
恰到好处的艺术品,与中式水墨意境的作品,让整个居室空间有种云深不知处的妙意。
老人房
“致中和,天地位焉,万物育焉。”中国人讲究对称美。
自然朴素的老人房,以对称的原则,搭配些许中式元素,整个空间厚而不重,有格调又不显压抑。
老人房
以新中式作为基础,
同时加入粉色与卡通元素,
整个空间搭配出一个温馨可爱的空间氛围。
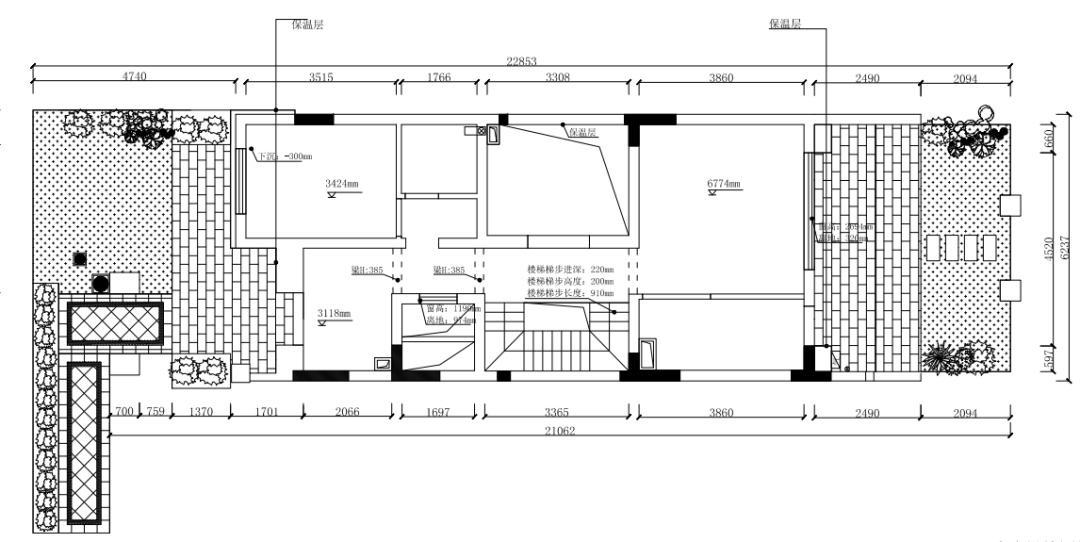
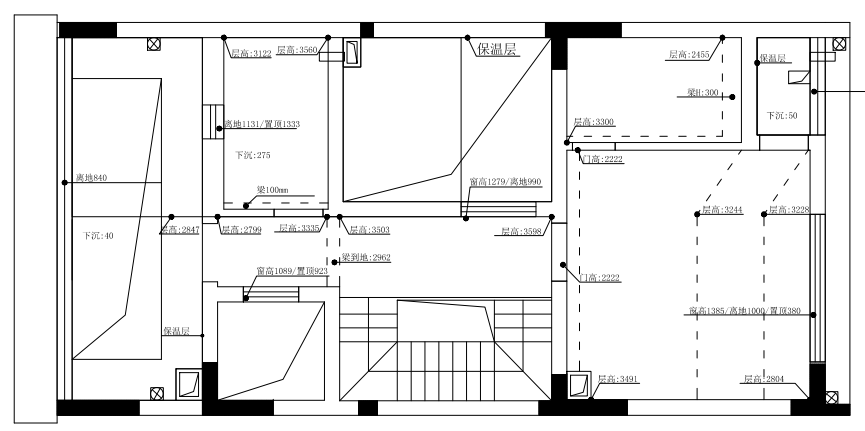
丨户型图
一层/二层/三层 平面 /原始图
-E
ND-
近/期
/热/文
Recent posts
珠江城丨现代潮流时尚大宅
日式原木 ,清新·淡雅
栖居·东方
工装设计丨重庆FFC超高颜值办公设计
美的家为精英定制生活
客服
消息
收藏
下载
最近




















































