查看完整案例


收藏

下载
生活便是
一个又一个的细节,
处处留心,皆是生机和感动。
一个舒适的家,
可以让我们享受城市之外,
只属于家的宁静与馨暖。
玄
关
推门而入,
一副现代精致的装饰挂画,
象征着主人的品味与格调。
客餐厅
时尚干练,
柔和安静。
呈现一个家的本质,并以木饰面、暖色调的灯光,用来平衡冷色调底色所产生的冷峻感。
浅灰背景半墙+木饰面的拼接手法。
L型米白布艺沙发、没有复杂缀饰,搭配现代时尚花纹地毯、装饰工艺品挂画,加深了设计细节的微妙体现,也为温润、舒适的空间,增添了几分时尚、高级及精致。
完美利用楼梯下方空间
,将电视嵌入其中;
水墨纹瓷砖地板与台阶呼应,木饰面的加入,在清冷的空间氛围中,重拾居家的馨暖。
全开放式布局。
一眼望穿的客厅空间,无论是做饭、用餐、干家务,都可以一边看电视一边进行。朋友来家聚会,西餐红酒都是标配,且朋友之间交流无视觉阻隔。
餐厅与厨房被动融为一体。
纯白大理石台面与皮质感的碰撞,大理石水墨花纹的厨房操作台墙面与瓷砖地板,整个餐厨空间格调、档次十足。
主卧
主卧更偏重清浅。
大体量的留白,以小半高的木饰面装饰背景墙,内嵌灯带,艺术挂画、麋鹿摆件、灰色柔软的床品,极致简约,营造睿智、理性的现代品质生活,其中淡雅的氛围又使人心绪宁静。
次卧
清新调。
草绿是充满希望、生机的颜色;
以白为底色,配合稍许的灰色,掺入自然,加上极好的半落地窗采光,整个室内空间明朗而清新。
儿童房
活泼、童趣
,在小主人的房间演绎得淋漓尽致。
精心挑选的衣柜、书桌,随处可见的卡通元素,搭配柔和的色调,为女儿构建了一个安全健康出成长空间。
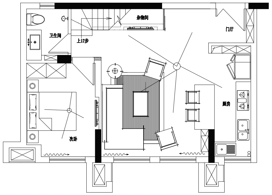
丨户型图
滑动查看平面图
丨项目档案
楼盘:协信·城立方
户型:跃层
面积:106m²
设计风格:现代
-END-
近/期
/热/文
Recent posts
一个人住也要很精致,亦如诗
联排别墅丨文心墨雅,浅山雅境
栖居·东方
工装设计丨重庆FFC超高颜值办公设计
美的家为精英定制生活
客服
消息
收藏
下载
最近







































