查看完整案例


收藏

下载
/
一·隅·清·欢
人活到一定时候,懂得舍弃和优选。
大量留白,剔除那些无意义的东西,
是素与简的清欢。
———
案例背景
家里常住人口只有夫妻二人,儿子在外求学很少回重庆。
女屋主是医生,
历经人世间,更谦和,更容易感性和珍惜美好,喜欢简单的人和事。
她认为,干干净净,就是一个人最好的底色。
实/景/赏/析
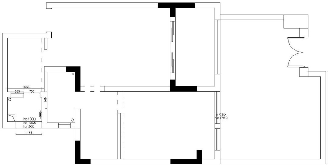
户型改造
跃下布局
|
滑动查看更多
跃下利用底楼的优势,将可利用的室外区域纳入室内,重新规划厨房与生活阳台的空间比例。
跃上布局
|
滑动查看更多
跃上将原镂空区域现浇成为主卧,拓展房间使用面积。
色彩分析
色彩主基底——
纯白色
。
来自云端的舒缓优雅,赋予空间千变万化。胡桃木色,沉稳自然;搭配橘橙与鸳尾蓝,时光清浅,浓淡相宜。
客厅
/
living room
非洲胡桃木,乃木中贵族。
浮华
阅尽,珍藏一份心灵深处的质朴,不疾不徐,沉稳从容。
色彩比例
与
造型搭配方式的微妙设计。
于不动声色中
渲染出浅浅的愉悦
。
家里的人虽然少,但不会了无生趣。
女屋主很喜欢家里的小凳子。
她说,等儿子放假回来了,一定会惊喜于这个小可爱,肯定会
像个孩子一样坐上去调皮捣蛋一番。
餐厅
/
R
estaurant
生活,离不开柴米油盐酱醋茶,
但也少不了琴棋书画诗酒花。
屋主是个爱花之人。
养花插花,皆怡养性情。
以欢喜心过生活,以平常心生情味,柔软待人,不逐纷扰,不为物役。
书房
/
study
惟书有色,艳于西子;
惟书有华,秀于百卉。
有幸书房连小院
。
案有诗书,院有筠竹;
或品一段清心文字,或闻一缕沁意之香;
雍雍穆穆,心生欢喜。
主卧
/
Master bedroom
缘由人少。
大部分家具都是圆润的弧形,少有直角线条,从而减少孤寂感。
软装布艺,色彩初荷粉与鸢尾蓝的巧搭,铺陈一室暖意。
次卧
/
Second bedroom
次卧作为儿子起居空间或者客人留宿之用,在陈设方面更偏理性与素雅,气质沉稳。
项目基本信息
项目地址:华美翡丽山
户型面积:跃层/130m²
设计风格:现代简约
设计范围:全案设计
主案设计:吴明川
软装设计:孙英
近/期/热/文
Recent posts
“飞屋环球”,新中式装下全世界
治愈系小屋
时尚摩登,把生活过成你想要的样子
美的家为精英定制生活
客服
消息
收藏
下载
最近






































