查看完整案例


收藏

下载
挑剔是一种能力,
每个人都需要那么一点点;
懂得挑剔的人,品味都不会差;
而好的品味,是在不断挑剔的过程中形成的。
鲁迅先生就是一位特别讲究和“挑剔”的人,
他曾在日记中这样写到,三不沾一定要去广和居,
绍兴菜则是山阴馆子,专门的菜要去专门的馆子;
西餐则最爱牛扒配红酒,可以“回味三日”,
时不时还会邀请朋友们去泡泡咖啡馆,“食面包,加非”……
由此可见,那些被认为是没必要的讲究、不合群的挑剔,正是通往品味生活的必由之路。
业主
“希望整体调性简约,明朗。但又能充分展现浪漫,轻奢,富丽之感”。
“什么地方用什么颜色,用多粗的线条,入户需要走多少步?餐桌的材质如何搭配,如果不同色调是否需要搭配不同材质?”
他们对生活
“吹毛求疵”,思虑周到,挑剔到无以复加,希望生活呈现出自己最希望的美好。
案例背景
业主与设计师的初见面,就表示已看过2-3个设计师所做的方案,但都没有触动心弦,眼前一亮感觉。
因此
如何改造业主所在意的负一楼、主卧、楼梯和衣帽间等空间成为关键
。
其次,业主对于未来想要呈现的色调和感觉,有很多想法,因此取舍成为难题。
要如何在
满足业主在调性上的需求
,同时帮助业主
做好无后顾之忧的取舍
,成为最后作品效果呈现的
重中之重
。
正是应了那句话:
结果有多美好,过程就有多不美好
。
设计说明
本案采用清新明朗的色彩基调,使得空间在视觉上更加开阔,再点缀高饱和度色彩,避免空间过轻,增加体量感。
大面积硬朗的灰色大理石与少量柔软的棕色家具作为对比;细节处刻画精致的法式雕花、时尚的金属线条,从而达到“以小显大”的效果。
客厅
蓝灰色作为空间基调
,
显得温和而高雅,让家充满了文艺的格调;
而与其他颜色相搭配时更能激发出它的视觉优势,
不甘平凡又不喜艳丽的人最适合这种不会过时的静美之选。
客厅双造型墙设计,极具特色
。
蓝灰+白的空间融入墨绿天鹅绒沙发,整体色调单而不简,加上金属黄铜元素作为点缀,室内壁炉设计,使空间变得居家而精致。
白色金边的定制柜+石材台面的吧台,
搭配精美的水晶吊灯、欧美风的装饰画等
提升了空间的格调,给人以高端大气上档次的感觉
。
餐厨空间
高颜值餐厨空间,
烹饪和用餐时都能心情舒畅
。
白色大
圆桌搭配蓝灰色法式餐椅、黑色水
晶吊灯、以及精致的西式餐具,营造了一个浪漫有情调的用餐环境,并且两幅巨大的装饰画,也让餐厅空间多了几分艺术气息。
厨房以白+黑为主调
,
金色点缀其中,构造一个干净整洁的烹饪空间,石材自带花纹也更添一份自然与别致。
休闲娱乐室
将负一楼天井后移,局部下挖;
采用半层式设计,将上
方设计为副餐厅,下方打造成娱乐厅。
红砖墙的酒窖,古典的影区,
以及台球桌,满足主人家庭聚会的娱乐需求。
墙上的装饰挂画提升空间格调的同时,也点亮了单调的背景。
楼梯采用“Z”字形,
增加了空间的层次感与通透感。
主卧
高贵而不俗气、华丽而不雍容
。
主卧在简洁的硬装基础上,加以点缀性质的雕花,用流畅的曲线、精致的纹路等展现古典之美。无主灯+投影的设计,增加了卧室法式独有的浪漫优雅氛围。
衣帽间
蓝灰的衣帽间采用半开放式设计,
柜门上的黄铜法式雕花,
更是让衣柜整体看上去充满法式奢华的尊贵。
卫生间采用干湿分离设计,地面铺设的圆形拼花砖,与赫本的人像画,提升了空间的格调。
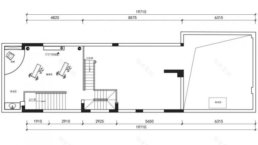
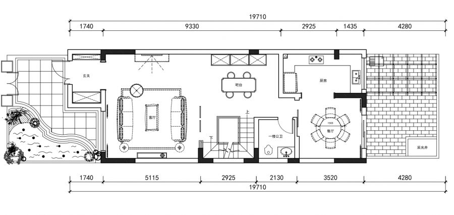
户型图
负二层平面布置图
负一层平面布置图
负一层原始结构图
一层平面布置图
一层原始结构图
▲左右滑动查看部分户型图
项目基本信息
项目地址:金科天辰
户型面积:别墅/388.7㎡
设计风格:简约法式
设计范围:全案设计
设计师:赵志远
近/期/热/文
Recent posts
看了这套婚房设计,你还觉得父母的眼光俗气吗?
风情万种,不低一隅清欢
“飞屋环球”,新中式装下全世界
美的家为精英定制生活
客服
消息
收藏
下载
最近









































