查看完整案例


收藏

下载
一幅画中,
色彩不但决定了形状,
更决定了整幅画面的颜值。
因此在本套家居设计案例中,
采用爱马仕橙和孔雀蓝作为空间主色调,与现代化室内设计的手法
,塑造了不同的家居格调,给我们带来了
顶级的色彩视觉体验。
爱马仕橙、孔雀蓝,
它们一个优雅高贵,一个时尚轻奢,一个冷艳,一个热情。
当空间再点缀着墨绿、
茜色
等,众多色彩在整个空间出现,在中性色背景的衬托下,高明度与彩度的色调,轻松勾勒出时尚美韵,高贵与奢华之间,任意切换。
01
大胆配色,撞出高级感
客餐厅作为家中待人接物、
以及给客人留下第一眼印象的地方,
它的色调搭配是最需要费心的。
大面积
爱马仕橙
的沙发背景墙,能给空间带来足够的
视觉冲击力
,打造了一个
鲜艳的暖烘烘的温室
;
灰色亚麻布艺沙发、墨绿斗柜、
孔雀蓝的窗帘与单人沙发、茜色的电视柜
和灰底米黄的壁纸以及高级灰,
众多色彩在一个空间呈现,碰撞出满满的高级感。
另外
将阳台进行改造,靠窗增设卡座
,亮眼的橙和孔雀蓝作为点缀,营造了一个高贵优雅的客厅氛围;且开放式客餐厅设计,保证充足的透光,使整个空间通透明亮。
孔雀蓝的餐椅、爱马仕橙的单椅,
以及黄色的插花,
让整个
空间的高级质感
得到了进一步的延伸。
同时黄铜金属的吊灯、
圆形镜子拼装而成的艺术装饰品,
使餐厅空间多了几丝
轻奢质感
。
两幅挂画
——
美式抽象和古建筑主题
,分别挂在两面墙上,遥相呼应。
02
沉静的唯美
孔雀蓝运用到家居设计中,展现出了一种沉静的唯美,让整个空间渲染上高贵的优雅氛围。
卧室以高级灰+白为基调。
孔雀蓝
的背景墙与窗帘,搭配白色的床与灰白的床品,
优雅中融入高贵,和谐而恰当
。裸粉是自信而优雅的点缀,而亮白色则是最好的平衡颜色,也带来了一些纯真美好。
整个空间休闲舒适,家的意味浓厚。
飘窗也做了设计
,
摆放两个垫子,两个抱枕,一本书,一杯咖啡,又可以忙里偷闲,小憩一会儿。
03
一字型空间拯救计划
根据户型结构,
把厨房改造成一字型空间布局方式
,厨房与阳台打通,完美利用每一个角落,
巧妙地拯救了户型结构上的缺点。
卫生间采用
深浅不一的灰色瓷砖
,
空间层次感十足;
结合
菱形拼花的瓷砖背景墙
,
让空间视觉得到延伸,解决了卫生间狭小的空间布局。
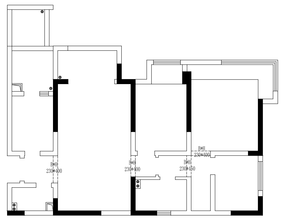
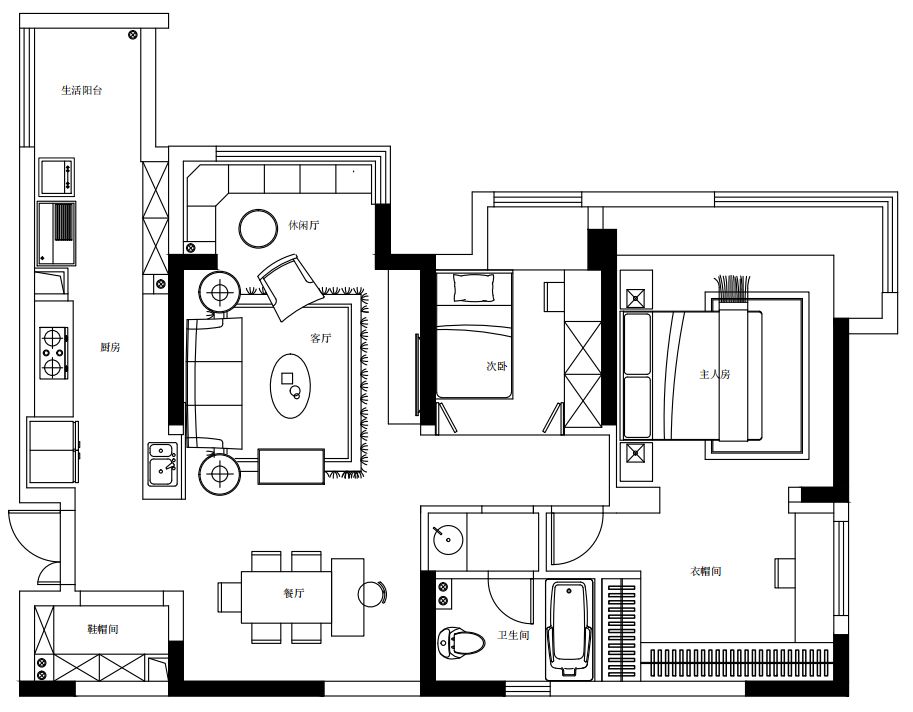
户型图
▲原始结构图
▲平面布置图
项目信息
楼盘:原山时光 面积:123m²
风格:美式 设计师:王羿
近期热文
23℃日式风,二人世界的Dream House
290m²新中式复试装修,亦古亦今的混搭美宅
暖男的家丨法式质感、美式小清新混搭
美的家为精英定制生活
客服
消息
收藏
下载
最近


































