查看完整案例


收藏

下载
人生总有许多选择。
当你犹豫、举棋不定的时候,
生活终将会给你一份完美的希冀,
作为幸福的记忆永久印刻。
—致那些小惊喜。
精致白领,也有纠结的一面。
本案女业主在装修之前,了解过很多“现代轻奢和工业风”,然后就一直徘徊在这两种风格里面,不忍取舍。
我们的主案设计师非常理解业主的心愿,于是建议两种风格混搭,并展开前期初步方案设计。
这就是我想要
的效果。
待本案VR效果图出炉后,业主很是惊喜,果断的与我们签下了合作协议。
硬装改造|跃层楼梯设计很重要。
跃层楼梯是上下空间的灵魂连接者,兼具功能与装饰作用。
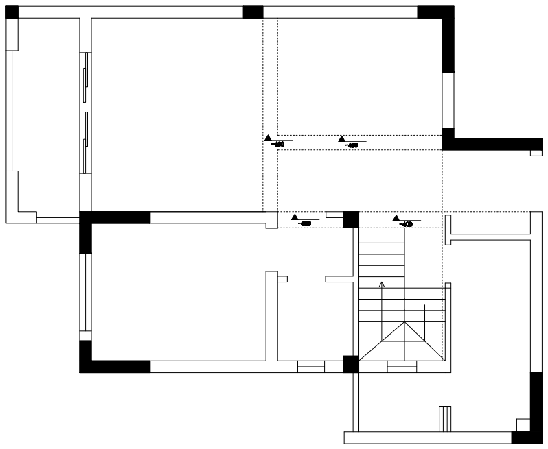
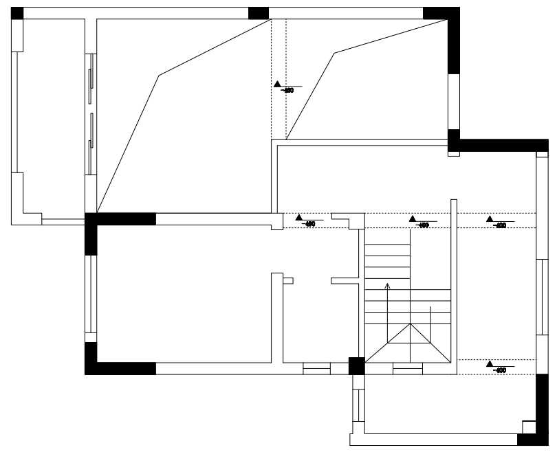
▲滑动查看一层/二层原始结构图
》
原始楼梯的位置存在感很低,而且把一楼厨房和二楼部分区域分割得很零碎,逼仄。
▲滑动查看一层/二层平面布置
》
故设计师将楼梯重新设计在了比较显眼的位置,凸显其装饰性的同时,扩大了厨房收纳和二楼公共休闲区域,极大地提高了生活舒适性。
▲软装色彩参考
本案软装选择了棕色系与清浅色调的搭配,充满着典雅与温情,带你邂逅雅致简约的居家时光。
全案团队坚决为效果负责。
在硬装和软装都确定后,工人师傅们严格按照图纸施工,软装设计师严格按照软装方案布场,每一个环节和细节都和业主反复推敲确认,才实现了业主想要的家。
岛台+高脚凳配置,有一种小吧台的即视感。简餐、品酒,尤其只有一两人的时候很适合。
长条实木餐桌的精致搭配铁艺的硬朗,工业风的简约恰到好处。
平时生活很忙,设计师希望营造一种仪式感,让业主能在忙碌中静静地享受一日三餐,不辜负胃与爱。
层次错落的棕色,自然流露出精致不凡的气息,让人在不经意间就能GET到主人的性格和实力,温文尔雅又低调。
二楼休闲区经过改造后,空间更加通透,户型中的阳角也相对减少。
该区域也是业主的收藏展示区。所有的心头好聚在一起,人生,也是一大幸事儿。
原始二楼为架空区域,设计师把它现浇打造成主卧并配置衣帽间,完全满足了女业主白领身份的需求。每天精致地出门,是女王最基本的气场。
大面积的实木定制设计,温润朴实的格调,儒雅人士的轻奢生活。
女儿房的色彩亦如童年的糖果,缤纷梦幻。
粉嫩的乳胶漆墙面,配上同色系帷幔和浅色系家具,活泼可爱。
本案软装产品由
美的家软装体验中心提供
—项目档案—
项目地址:渝开发星河ONE
项目户型:跃层
套内面积:130㎡
设计风格:混搭
硬装设计:吴明川/吴雪萍
软装设计:孙英
近期热文
灰系北欧
“繁花似锦”不如慵懒惬意
轻奢华、新时尚
教科书版现代轻奢
简欧怎么装更美?
网红样板房来袭,快来瞧瞧
美的家为精英定制生活
客服
消息
收藏
下载
最近









































