查看完整案例


收藏

下载
高颜值·梦幻星空
生活不止眼前的苟且,还有诗和远方的田野,即使生活终究归于平静,我们也要享受自己想要的过程,将情感表达于空间,深究生活的细枝末节来完善区域的使用性,不抽象,有颜值、很实际。
说到星空,
蓝色是不变的主色调,
不断变化的蓝色调给人以深邃的感觉,
仿佛有许多值得我们去探索的地方。
影音厅的吊顶设置为星空顶,
给人以梦幻般切身感受,
得到更好的观影体验。
方形小吧台设计,
将观影和健身区分隔开来,
圆形玻璃绿植,
营造了更自然、健康的运动氛围。
于细节之处体现美式轻奢质感
美式轻奢风格把对生活的不将就不妥协,融入品质家居设计,从细节中体会质感生活带来的温暖舒心。
四周靠墙的定制书柜,
提供充足的收纳空间。
整个书房从沙发到书桌、
灯饰再到摆件等,
将每一处的细节融汇于空间,
尽显精致之美。
书房休闲一隅,
纯白的瓷砖台搭配几盆绿植,
呈现格调与舒适。
美式轻奢风格家居就如同美国独立精神一般,讲究的是如何通过生活经历去累积自己对艺术的启发及对品味的喜好,从中摸索出独一无二的美学空间。这点也正好迎合了时下的文化资产者对生活方式的需求,即:有文化感、有贵气感,还不能缺乏自在感与情调感。
百搭色系作为空间的主色调,
通过软装载入复古的铜色、
怀旧的原木色以及沉稳有深度的墨绿色,
附着于皮质、布艺、金属材料之上,
让色彩的冷暖与材质的刚柔相融,
在晶莹透亮的水晶灯映射下,
绽放生活美学的品质之花。
临窗而设的茶空间,古香古色,为空间赋予了一抹东方情怀。
一张方形餐桌,几把座椅,
点上蜡烛,这样的就餐环境,
接近家人之间距离,
同时也不失仪式感。
美国人认为房子是用来住的,不是用来欣赏的,舒适才是美式风格的精髓。
卧室选用浅浅的蓝,消除大脑疲劳。
白色通顶的衣柜,
中间设计开放式储物柜,
缓解了整壁柜子的呆板感。
临窗的书桌台,
为主人提供了工作和学习的空间。
金色是永恒不变的时尚元素和奢华色彩。设计师巧妙地在摆件上,挂画上运用了金色的边框,与其他百搭色系搭配,相得益彰,奢华的感觉在这些细节里得到了很好的体现。
儿童房除了延续主卧色系之外,还加入了深蓝色,看似简单的空间瞬间丰富了许多。卧室是休息的地方,舒适的蓝色能让小孩从一整天的繁忙的学习节奏回归到最本真的宁静中。
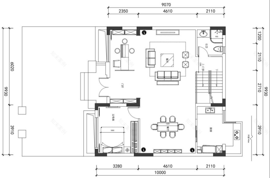
▲平面布置图
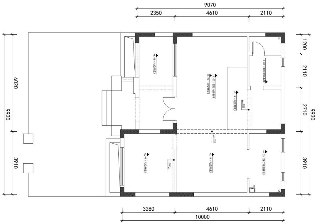
▲原始结构图
项目信息:
楼盘:鸥鹏泊雅湾
面积:286.3㎡
风格:美式轻奢
设计师:赵志远
近期热文
绿色系北欧风
感受岁月的静好
现代轻奢别墅
视觉美感与格调内涵交织并存
高级灰+轻奢
震撼灵魂的美
美的家为精英定制生活
客服
消息
收藏
下载
最近




















































