查看完整案例


收藏

下载
水涧石川之感流淌在世外桃源好像不足为奇,但如何将画里或实境中所描绘的墨山石景引入室内,又如何能成为成功人士选择的居住之所,项目无论从品牌名到内部软装都在营造隐式生活的意境法则。
会客区
用餐区
会客区细部图
主题 · 衍炼
一家人的空间呈现着多种可能性,在几何围柱里每个人的习性及宝藏将影响着家的发生。自然常态与身边事物在造物人的脑海里形成聚集,进而改变着内部空间构成。
茶几细部
书房
营造之旅穿梭在每一处需要抵达的氛围中,界定着一里有歧,独中取一的构造手法,其依靠主体风格、选择倾向性主题从而夯筑屋内环境,使每一单间的居住氛围具备着故事多样发展的未知性。
一层客卧
二层主卧
三层主卧
二层女孩房
二层男孩房
基于常规的生活方式,空间中各使用区域则在色调、材质使用、主题分析中进行印象区分。其得益于“水墨”主题中焦、浓、重、淡、清含义的深层分析,织造水墨贯穿其中,却不得覆式的缜密营造思维从而进行整体空间精炼。
二层会客区
层见 · 叠出
祥生·云境的标识成为与风格主体相结合的另一运用产物,是设计过程中衍生出相关艺术品于项目中的提炼。运用再造手法,元禾大千软装设计团队在水墨辅厅空间里置放了与自许陶冶有关的茶座物件。其存在于中庭一隅,然而依傍着挑空高梁的空间作法,让聚睛之处的落座区成为物件的集合地。
负一层多功能区
桌面得意笔砚文化及茶阖知味,构成由黑桃木茶壶支架、白玉葡萄石串、水墨陶瓶以及由镀锌抛光板治造的品牌标识衍生产物,添许山绿楂果及玻璃茶杯。
使用软竹及尼龙绳纵横交织的竖格屏风为契合空间“水墨”主题,选用茶黑、胡白、豆红、棕桧四色依次缠绕蕉扇形状的木框,引伸四方进行简易编造以示水墨画中瀑布水泻之感。
对侧的布局则荟灰桜色半环形沙发与点状水滴作垂落运行时的意象圆锥型茶几,以及由艺术家张益昇绘《水云间》的墙壁画作组成。茶几上作大理黑原石刻制的假山造景。为了使整体更进一步在水墨中淬炼,主选具备线条感的摇摆椅及印尼黑木边桌,空间克制又波动,营造水面波涨与平落静懿时的状态演绎。
负一层多功能区
空间 · 重构
陈列间的传统框架主体犹如身置树林,紧密而使得人沉谧。单色且纵深的空间里撷取物件以及其组成后加强氛围的作用确是十分必要。有效且平衡的反馈间能看见笔砚纸拓的小什,放置于各个格间里,贴有命名的集册也缜密的排布于格间中。
在置入式的格局里,各自成态,相互滋养。而这一运用也延伸到墙面装裱的装置中,将“笔墨纸砚”各独立字体重叠相落运用纸造工艺形成《东方之魂》这件手艺作品。
家什在定义空间的性情中起着无可厚非的作用力。即使只不过是随地面提毓的一张平铺地毯,兴许是立置在一旁的屏风造作,其肌理质感的韵味将进一步对空间作优化升级。
夹层儿童活动区
衣帽间
*以上图片 [仅供示意,非交付标准]
项目名称
|
诸暨祥生·云境别墅样板间
项目地址
|
浙江 · 诸暨
项目面积
|
550㎡
硬装设计
|
P A L DESIGN GROUP 梁景華
软装设计
|
元禾大千
特别支持
|
祥生地产
完工时间
|
2019年8月
项目摄影
|
鲁哈哈、张浩
浙江诸暨祥生·云境别墅样板间
图纸呈现
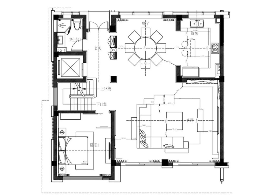
一层平面图
二层平面图
三层平面图
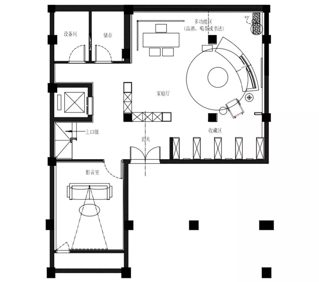
负一层层平面图
夹层平面图
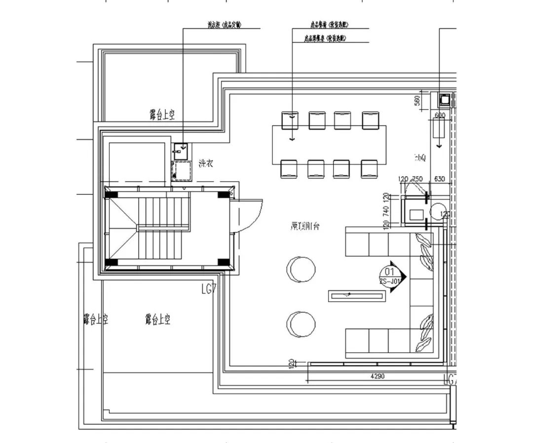
屋顶露台平面图
浙江诸暨祥生·云境别墅样板间
公司介绍
元禾大千,是一个以艺术为驱动⼒的软装设计品牌。专注于售楼中心、样板间、酒店、会所等公共空间,以深度、全面、专业的态度提供从空间装饰设计、艺术定制化生产、采购到落地布场、推广宣传等各环节的整体项目设计管理服务。
元禾大千诞生自2007年,前身为大千画廊,在空间装饰领域沉淀20余年,目前总部设在重庆,拥有深圳、成都、杭州三家分公司,员工逾200人,项目遍布全国。本着艺术成就空间价值的服务理念,多年来长期与国内知名房地产开发企业共同发展,用艺术化的空间装饰助力项目价值成就。
元 禾 大 千 案 例 推 荐
建发央著销售中心
重庆金科天宸多样性样板间
崇州盛世滨江大平层样板间
供稿 / 元禾大千
DINZ 品 牌 设 计 案 例
DINZ德网传媒旗下的品牌设计机构Gooobrand
DINZ德国室内设计网 品牌设计
客服
消息
收藏
下载
最近
































































