查看完整案例


收藏

下载
地址 | Address:首创·禧瑞锦江
面积 | Square Meters:160㎡
户型 | Apartment :跃层
风格|Style:现代简约风格
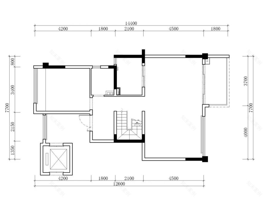
(原始图)
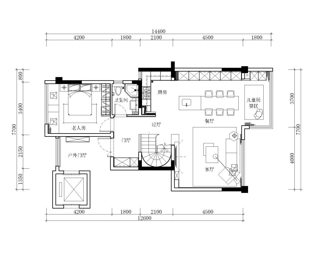
(布局图)
设计说明:把厨房墙体拆除,与客厅一体,大维度客厅保证了视野的开阔,不同物质在空间内穿插,每一处角落都是居住者的生活写照,空间流畅的线条,或圆或曲,不追求凌厉,象征着平和友好的交流。
玄关
开阔的入户玄关,穿过木质的柜体,淡雅清新的转眼,便是开敞的客厅。客厅
阳台归于客厅空间,兼具收纳与绿植景观功能。清风吹动轻纱将阳光送进室内,空间也被赋以别样的诗意。
打破传统住宅的思维方式,充分考虑屋主在生活中的多样性需求,在空间形态上,我们赋予更多维的可能性。餐厅
厨餐厅,设计师以“过去、现在、未来”的生活场景设计功能和动线,空间不是恒定的,而是可流动的。
灵活可变的餐椅,给家庭成员多变性,极具艺术气质的吊灯,营造高级的用餐氛围。
主卧
主卧延续整体的空间搭配,大面积白色搭配木色、大地色系,大落地窗让自然光线与自然元素相互交融,简洁而温馨,人字拼地板又表述出不一样的艺术气质。儿童房
一到了冬天,成都极少能看见一碧如洗的蓝天,遑论宇宙苍穹。小朋友的世界,就该是干干净净而亮丽的,把宇宙和小飞船做成一个小小的房间,替我陪你长大。
更多案例欣赏:
现代风格.帕丽湾
现代风格.雅颂居
现代风格.凯旋门 ICC
新中式风格.牧山美庐
现代风格.国宾雅集
END
家庭装修,更多人选择业之峰
专注环保装修 24 年 服务中国 102 城
欢迎添加客服。24 小时线上为您服务。装修咨询|免费设计|最新案例|最新优惠。咨询更多家装资讯。
扫码添加装修咨询
客服
消息
收藏
下载
最近





















