知末
知末
创作上传
VIP
收藏下载
登录 | 注册有礼

麓湖·云苔漫汀现代复式设计丨付洪钰

2022/08/19 17:30:00
查看完整案例
微信扫一扫
收藏
下载
麓湖·云苔漫汀现代复式设计丨付洪钰-0
// Reality Images
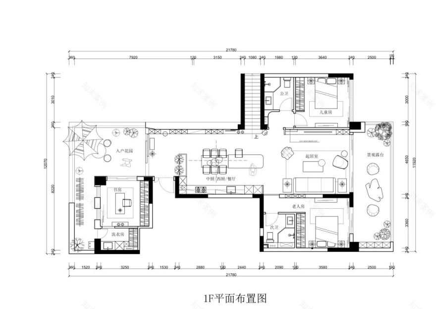
地址 | Address:麓湖生态城·云苔漫汀
面积 | Square Meters:207㎡
户型 | Apartment :复式
风格|Style:现代风格
设计师 | Designer:付洪钰
麓湖·云苔漫汀现代复式设计丨付洪钰-7
设计需求 | Design Requirement:
本案业主为新婚夫妇,此房为小年轻开启“新”生活的起点,为此业主对其充满了期待与憧憬。与业主深度沟通后总结以下几点需求:
①房屋居住人员结构:业主夫妇(常住)、父母(偶尔住)、小孩(未来规划)。
②基本需求:主卧套房、书房、中西厨。
③风格定位:现代。
麓湖·云苔漫汀现代复式设计丨付洪钰-13
业主为年轻人所以在风格定位上更偏向于现代风格,在设计中,综上业主的需求并结合空间美学效果,针对空间进行了很多细节处理。
客餐厅
麓湖·云苔漫汀现代复式设计丨付洪钰-16
麓湖·云苔漫汀现代复式设计丨付洪钰-17
考虑常住人口的数量不超过5人,为此餐厨区域,设置中厨、西厨、岛台的形式,开放的空间与起居室的联动,增强了空房的开阔性。
麓湖·云苔漫汀现代复式设计丨付洪钰-19
餐厅区域连接岛台,让空间显得宽阔的同时也更加的便捷。
儿童房
麓湖·云苔漫汀现代复式设计丨付洪钰-22
客厅与儿童房入口的墙体采取镂空处理+灰玻衣柜设计,让整个儿童房都显得更加的开阔,并未考虑性别,常规的统一色调,将来都可以使用。
老人房
麓湖·云苔漫汀现代复式设计丨付洪钰-25
老人房与沙发背景墙之间做隐形门设计,空间墙面处理的方式干净却又赋予功能性,增强了空间的趣味性。
书房
麓湖·云苔漫汀现代复式设计丨付洪钰-28
书房空间连接入户花园,当你工作或是看书看资料乏了的时候,连带靠椅转个身看看落地窗外的风景,或是出去和正在露台小憩的家人嬉闹两句,该是一番别样的幸福。
麓湖·云苔漫汀现代复式设计丨付洪钰-30
麓湖·云苔漫汀现代复式设计丨付洪钰-31
麓湖·云苔漫汀现代复式设计丨付洪钰-32
主卧
麓湖·云苔漫汀现代复式设计丨付洪钰-34
麓湖·云苔漫汀现代复式设计丨付洪钰-35
主卧使用了现代风的精髓,采用不对称形式的背景墙设计,硬包几何线条+展示柜,美观兼具实用。
麓湖·云苔漫汀现代复式设计丨付洪钰-37
二楼为小两口的独立空间,以主卧+衣帽间+卫生间,套房的形式来考虑,打通原本的墙体,为男女主人设计了一个超大的衣帽间,完全能够满足衣物存储所需。
麓湖·云苔漫汀现代复式设计丨付洪钰-39
麓湖·云苔漫汀现代复式设计丨付洪钰-40
付洪钰
老师说:“
同样的户型面向不同的家庭成员结构,产生的设计成果也是千变万化,我们的角色像“医生”,诊断房屋的“问题”,并为他们铸造一个适合的、温暖的家
。”
更多案例欣赏:
麓湖·云苔漫汀现代复式设计丨付洪钰-46
麓湖·云苔漫汀现代复式设计丨付洪钰-47
麓湖·云苔漫汀现代复式设计丨付洪钰-48
麓湖·云苔漫汀现代复式设计丨付洪钰-49
麓湖·云苔漫汀现代复式设计丨付洪钰-50
END
家庭装修,更多人选择业之峰
专注环保装修24年  服务中国102城
麓湖·云苔漫汀现代复式设计丨付洪钰-54
欢迎添加客服
24小时线上为您服务
装修咨询|免费设计|最新案例|最新优惠
咨询更多家装资讯
麓湖·云苔漫汀现代复式设计丨付洪钰-59
麓湖·云苔漫汀现代复式设计丨付洪钰-60
麓湖·云苔漫汀现代复式设计丨付洪钰-61
扫码添加
装修咨询
南京喵熊网络科技有限公司 苏ICP备18050492号-4知末 © 2018—2020 . All photos and trademark graphics are copyrighted by their owners.增值电信业务经营许可证(ICP)苏B2-20201444苏公网安备 32011302321234号
客服
消息
收藏
下载
最近