查看完整案例


收藏

下载
有限色彩+有限空间=无限创意
地址 | Address:琥珀瀛洲
面积 | Square Meters:170㎡
户型 | Apartment :四室两厅
风格|Style:现代轻奢
设计师 | Designer:李林川
(原始图)
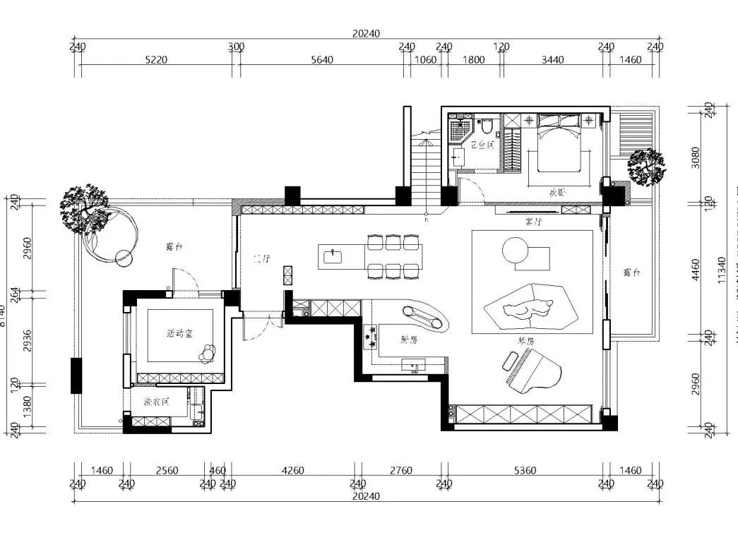
(布局图)
结构改造:不只是色彩,从布局上也打破常规,将原始的厨房和多功能间全部打开,做开放式厨房和琴房,与客餐厅设计为一整个开阔的大空间。
设计说明:万物皆有多面性,有人喜欢暖,便有人欣赏冷色。打破常规,不走寻常路,选用暗色系,神秘与静谧之间,凸显屋主对空间的态度,对生活的重塑。
客厅
看腻了客厅设计呈现的千篇一律,用暗调呈现雅奢,用氛围烘托仪式,黑为主调,不同材质的黑白灰层次交织,反而组合出淡然放松的氛围,此刻,时光静止,心有安然。
通透的自然光,给了暗系最优的采光选择。柔软的地毯与沙发,表面微反光,将因通透成就的光合效应倍速放大,温情与温暖,打破定律,于冷调里自然生发。
餐厅
餐饮区的扩大延展,满足了屋主喜欢烹饪的需求,又与客厅等公共空间连通,将空间最大化打开。将设计融入情感,更多的是通过人性化思考,创造一个功能性完整的生活空间,让家里的每处角落都成风景,尽享平和,细品生活。
琴房
把原本琴房的空间与客餐厅融为一体,你练琴,我追寻,如果不能所有时间都能尽享,何不抓紧每一刻当下惬意。
主卧
主卧室延续主体设计风格,暗色系搭配无主灯设计,局部使用辅助光源,地台式的床+地毯的搭配,宁静而舒适。
开放式与封闭式衣帽间相结合,根据平日衣服大小、长短结合,更加方便主人平时的衣服选取。
次卧
次卧室的设计原本是准备给父母用的,但是不常住,也算作客房,功能性更为重要,常规的休息空间+衣柜存储,单边的吊灯彰显出不一样的亮点。更多案例欣赏:
现代风格.雅颂居
现代风格.凯旋门 ICC
新中式风格.牧山美庐
现代风格.国宾雅集
现代风格.枫丹铂麓二期
END
家庭装修,更多人选择业之峰
专注环保装修 24 年 服务中国 102 城
欢迎添加客服,24 小时线上为您服务。装修咨询|免费设计|最新案例|最新优惠,咨询更多家装资讯。
扫码添加装修咨询
客服
消息
收藏
下载
最近



























