查看完整案例


收藏

下载
地址 | Address:国宾雅集
面积 | Square Meters:198㎡
户型 | Apartment :四室两厅
风格|Style:现代风格
设计师 | Designer:周璐
工程造价 | Price:20w
Live action
//Design Notes
本期业主是一对青年夫妇,家里有一个女儿,刚满 4 周岁,第二个宝宝也即将到来,父母偶尔会到家里住。交房前的三个月业主就来找到我们,直到交房,期间都在不断地与他们夫妻二人沟通房子的整体设计、局部的各种设计细节,包括设备和硬装材料的使用及选择,软装方面也在考量着。从初次见面到落地,每处细节都经过了反复碰撞与推敲。
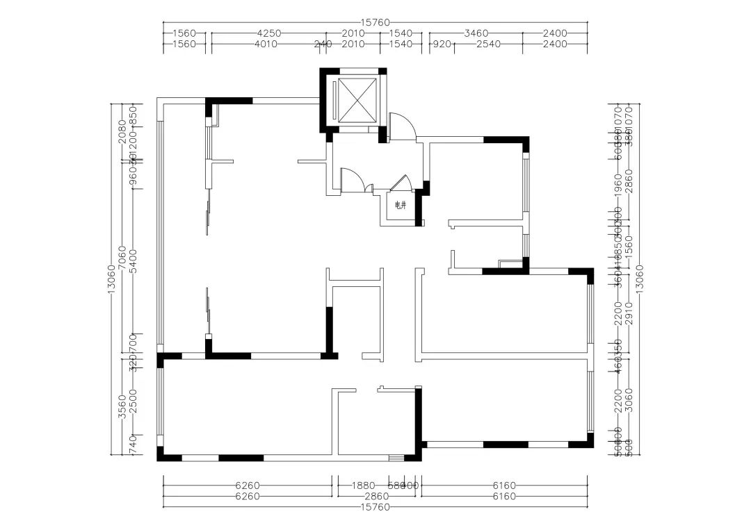
(原始户型图)
//House type analysis |
户型分析:
本案原户型是建面 198㎡实际套内 157㎡的大平层,结构布局还算规矩,只是部分空间规划上略有不足:
①家里整体储物空间少。
②主卧与卫生间使用空间比例不协调。
③进门过道窄长,活动空间小。
④对于一家五口人来说,厨房略小。
//House type transformation |
改造方案:
①玄关处定制玄关鞋柜,收纳强、且设计玻璃隔断,使空间通透明亮;
②封闭客厅阳台,补充客厅的空间,增加一家人的活动和收纳场所;隔出独立的生活阳台;
③调整主卧与主卫的隔墙位置,将主卫空间大小合理化,给即将到来的宝宝预留空间;
④客卫干湿分区,满足多人同时使用;
⑤生活阳台洗衣机烘干机叠放节约空间,方便使用;
⑥将主卧室衣帽间改为书房、给男主人一个独立的办公空间,也方便日后给孩子辅导作业,开放式的书房又让整个客厅显得更大更通透,原本狭长的过道也变得明亮。
入户
入户玄关用大理石做半遮挡,在风水以及视觉上有一定的作用。
客厅
为了让客厅看起来优雅也不空泛,空间上将客厅和阳台融为一体,达到扩大客厅的效果。
在材料上,电视背景墙使用定制柜和白色护墙板,让空间简单而有层次。
而木调开放格则感觉简单又有纹理循序渐进。
在设计技巧上,客厅天花做边顶灯带,让空间高档富有层次感。
电视墙规划超级能装且与客厅整体色调相融合的电视柜。
绿色绒布沙发让整个设计品味上升一个层次。暖灰色单人沙发做点缀色。沙发旁的艺术展品画龙点睛。餐厅
餐厅延续着明快的白色调,设计通透宽敞,注重整体空间层次感。白色岩板石材餐桌配上绿色餐椅,相得益彰。绿植摆件瞬间将餐厅的气氛装点的灵动自然。最大亮点便是后方的定制餐边柜,既能存放美酒,也能展示屋主得意的小收藏。
客厅和餐厅利用地面 900*1800 大地砖通铺,保留了宽阔的空间感,得到了最大程度的采光。以精确手法减少互动成本。晚餐时分,忙碌过后,光影绰绰中,菜肴美味,家人作伴,将岁月凝固,让美好留存。书房
书房设计在玄关与客餐厅之间,开而不透,整个空间看起来大气而富有情调。
更多案例欣赏:
家庭装修,更多人选择业之峰。专注环保装修 24 年,服务中国 102 城。
欢迎添加客服 24 小时线上为您服务。装修咨询|免费设计|最新案例|最新优惠。咨询更多家装资讯。
扫码添加装修咨询
客服
消息
收藏
下载
最近

























