查看完整案例


收藏

下载
MINGWANG DECORATION
秦淮区海福巷 71 号
设计风格:现代简约
装修面积:126.6㎡
设计总监:刘丽
施工团队:铭望装饰
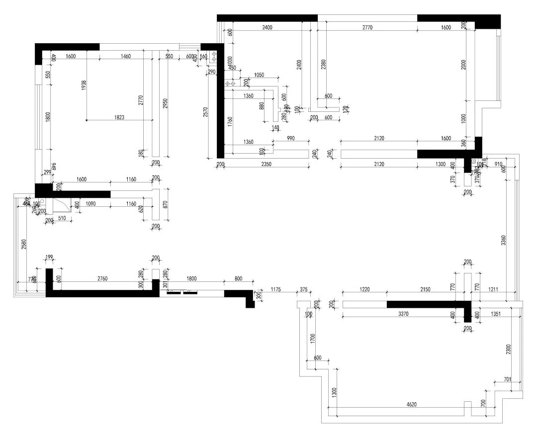
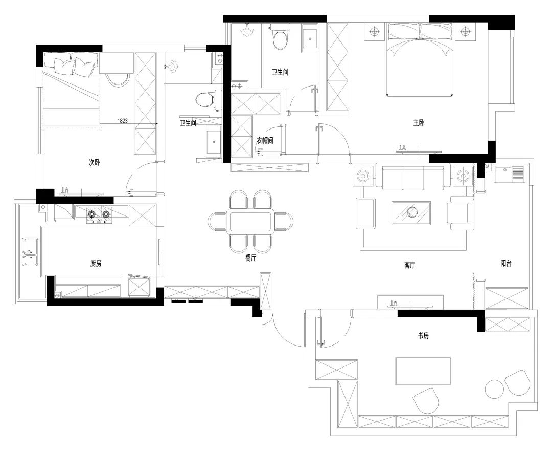
「原始结构图&平面布置图」
本案位于秦淮区海福巷,业主夫妻年过耄耋,二位老人对新家满怀期待,希望尽快装修好,搬进去颐养天年。女业主为医生,男业主为军人,出于职业习惯,较为不喜纯白色墙面,要求整体风格突显温馨明亮。
客 Living Room 厅
电视背景为石材与木作组合设计,在原有门洞的基础上做加高处理,顶天立地设计,形成隐形门,与右侧护墙板造型互为呼应,所有元素点面相应,美不胜收。
沙发背景墙采用大面积木饰面拼接而成,介于冷灰与暖灰之间的中性灰穿插其中,实现了空间的层次感和和谐度。餐 Dining Room 厅
吊顶的分割成为了客餐厅隐形的划分线,客餐厅相连增加了空间的交互情感;繁花似锦觅安宁,淡云流水度此生,对家的热爱与年龄无关,关乎于身边的人,周遭的事,现代化的设计也可以让老人对生活报以热情。
厨 Kitchen Room 房
厨房有足够的空间,可做 U 型设计,三面橱柜,不浪费任何一个角落,面积使用效率最高,大大增加储物空间;整体铺色采用了高级灰和深咖,略带磨砂质感的烤漆柜门,与胡桃木纹理摩擦碰撞,将现代感展现得淋漓尽致。书 Study Room 房
书房往往可以体现空间主人的品味,定制书柜虚实结合,错落有致;展架上摆放的都是历经时间穿越的“功勋战绩”,那是过往生活的见证,也是开启未来的美好钥匙。
主
Master
Bedoom
卧
主卧延续了灰调和橙调,木饰面与金属线条几何拼接,刚柔并济,冷暖相交,空间环境内弥漫着一丝轻奢的气息;衣帽间步入门与定制柜门同款设计,可融于同一平面,归元合一,也可前后错落施以空间层次感。
卫生间干湿分区,在淋浴间、马桶旁都安装了老年扶手,使两位老人在使用上更加方便,以免滑到,设计师将“以人为本”的设计贯穿始终。
次 Second Bedoom 卧
次卧使用频率较少,可在保障休息区域外尽量扩张储物容量,L 型衣柜一边做上下分格设计,分段空位可充当床头柜,空间每一陈设都安排得恰到好处。
---END---
一个好的设计师应该要撇去过多的浮华回归原始却也不失去美感。南京铭望家装拥有上百位金牌设计师,擅长各种设计风格,可量身为你制定设计方案。
公司地址:南京建邺区河西大街 66 号铭望家装
客服
消息
收藏
下载
最近





















