查看完整案例


收藏

下载
MINGWANG DECORATION 南京印悦府 设计风格:轻奢风格 装修面积:180㎡ 设计总监:王箭宇 施工团队:铭望装饰
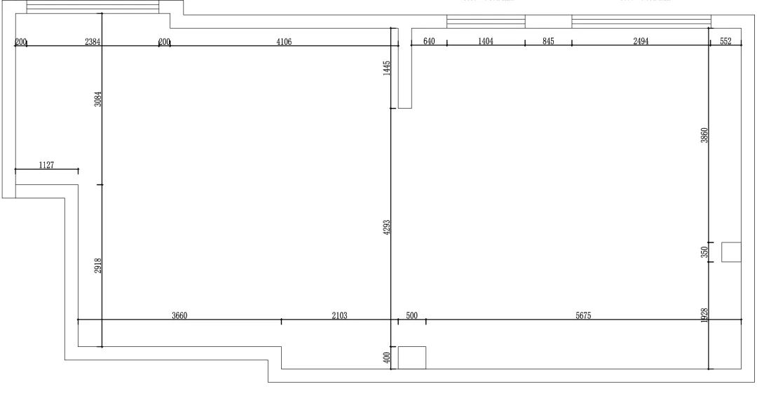
「负一层
原始结构图&平面布置图」
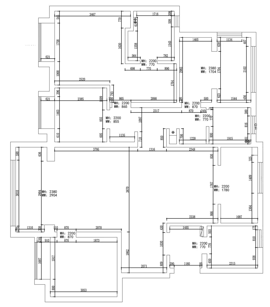
「一层 原始结构图&平面布置图」
本案位于南京印悦府,上下两层,负一层为暗区,部分区域通过天井采光。一层户型较为方正,结构上未做过多改变。设计师将西北方位的功能阳台与室内打通,做成次卧。入户处玄关柜后做隐藏衣帽间,增加收纳空间。
门
Entrance
厅
Hall
朝起暮归,对着镜子里的自己述说着活力与疲惫。入户处玄关柜设换鞋凳,外衣可直接挂至镜子上方,金属物件贯穿于整个轻奢风格。客厅
轻奢风的设计往往倾向于干净整洁,简约大方,重轻低奢,驼色、象牙白属高雅调性的色彩,皮质软包背景在金属条的镶衬下尤显精致,电视背景墙则采用了鱼肚白纹理的人造石材,与之形成了一个软硬坚柔的对立感,也在潜移默化中调和了空间的温度。
餐厅
DiningRoom
Kitchen
厨房
餐厅延续了皮革与石材的搭配,方型灯具与长条餐桌上下呼应,随处可见的金属元素,一直在述说着现代轻奢。
半开放厨房采用了“U 字型”设计,提高空间的利用率,黑与白在反光材质上将华丽的格调最大化彰显。
主 Master Bedoom 卧
衣帽间与主卧互为连通,却做出了步入式效果。球型水晶灯由花瓣拼接而成,光透过缝隙映照出斑驳的影子,由内向外的散发出微微雅质。
柔白纱帘无声的委曳于地,每一处褶皱都恰到好处,过滤了窗外的喧嚣,柔和了的金属的冰冷,平缓了浮躁的心绪。次 Second Bedoom 卧
设计师将功能阳台内隔断拆除,只留北面窗户,榻榻米与衣柜、展柜做一体化定制,沉稳低调的黑橡木纹理配上白石纹柜面,明暗交替,虚实结合,干净利落,不失优雅。Break Room 室
醇香飘逸于指间,留恋通透沉醉。业主夫妻正值不惑之年,对生活品质有着更高的追求,地下空间正是“思考”与“自在”的集中地。
业主评价:“设计师尽心尽职,很耐心的帮我们改方案,有的突发奇想都帮我们实现了,如果有下一次装修,我还会找铭望。”
一个好的设计师应该要撇去过多的浮华,回归原始,却也不失去美感。
南京铭望家装拥有上百位金牌设计师,擅长各种设计风格,可量身为你制定设计方案。
公司地址:南京市建邺区河西大街 66 号铭望装饰
客服
消息
收藏
下载
最近



























