查看完整案例


收藏

下载
红鼎奖暨首届中国家装产业创新大赛
住宅室内空间设计最高奖:红鼎奖
【生活如四季】
▲
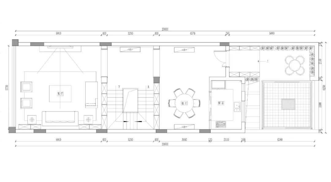
一楼平面图
▲
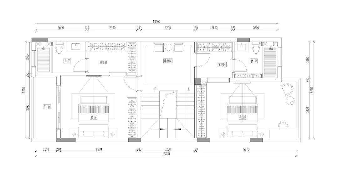
二楼平面图
▲
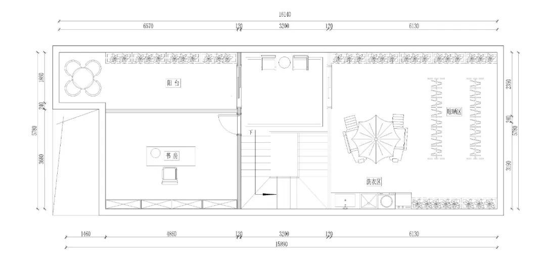
三楼平面图
身处繁华,心入山林。自古以来人们一直在追求喧嚣世事和宁静内心的平衡。
一花一木、一器一物,重视四季的变幻,让业主感知生活中的美。
春则满庭花草香,夏则小憩听蝉鸣,秋则黄昏赏落叶
,冬则围炉诉情话。
茶室空间体现的是一种简单、别致,点点阳光透着阴影洒落于桌上。茶席上的一泡茶或一棵小树,能让烦乱的心复归于平静。得半日之闲,可忘尘世十年烦事,更别提那屋外骄阳几度。
设计这个家,希望给客户一个有温度的、有生活气的空间,还原简朴宁静利落之美,彰显超然的洒脱与快意人间的自由。
卧室空间整体色调温润细腻,不失质感,现代的家具搭配禅意的设计,造型与材质的完美调和更是让整个空间沉稳舒适,意犹未尽。
天真童趣的儿童空间,以活力橙和宝石蓝做点缀,描绘出色彩的层次感,点亮了空间的活力。
一个宜居空间,一个好的设计,当在功能之外,满足人们众多生活、精神及审美诉求。
住宅室内空间设计最高奖:红鼎奖
华浔广州公司天河设计中心 | 黄亮
Project Address |
项目地址 |
Project Area |
项目面积 |
Project Type |
项目类型 |
Project Name |
项目名称 |
Decoration Style |
装修风格
|
Guangzhou,China
中国广州
320 Sqm
320㎡
Villa
别墅
Life Is Like Four Seasons
生活如四季
New Chinese Style
新中式
广州公司客户服务(投诉)热线:
020-37883377
咨询装修设计、工艺报价
了解华浔广州公司最新动态
现在预约 即享受免费上门量房服务
客服
消息
收藏
下载
最近



















