查看完整案例


收藏

下载
前滩三湘项目·亮剑
同济设计四院住区养老事业部
华灯初上,建筑与江景相映成辉
近日同济四院住区养老事业部精品项目上海前滩三湘印象名邸亮相前滩,
体现了现代住宅的设计趋势:
科技进步引领设计变革
当代住宅的的全流程闭环设计以及科技性在此项目中展现地淋漓尽致。
本项目坐落在
上海
前滩的
核心位置,定位为
沿黄浦江
的
顶级科技住宅
。
远处在同一时期设计的项目属于当时流行的ART-DECO风格
设计之初,国内的住宅市场处于ArtDeco风格顶峰时期。而在三湘前滩项目中,我们选定了在当时颇为超前的设计策略——公建化的高科技住宅。
01
先来看看前线发回的现场实景照片吧
从阳台望出去的一线江景
沿前滩大道立面
人行入口的精致景观
入户门厅,高端大气上档次
转角处南立面
南立面
滨江立面
房间望出去的江景
阳台吊顶细部
揭秘:以设计技术为核心的科技集成平台
项目设计组不仅追求公建化的现代主义简洁立面,同时也期望赋予产品科技属性,配备保障室内舒适环境的各种智能家居终端系统。正所谓麻雀虽小,五脏俱全,加之住宅尺度远小于公建,在小空间内集成如此多的系统,这就要求项目组采用新的设计模式。
我们采取的应对策略为
以设计技术为核心
,使用BIM手段形成
科技集成平台
,在此平台下集成了土建各专业,建筑、结构、水暖电,各外部顾问:pc、幕墙、内装、景观、门窗,还综合了采购研发一体化,比如新型产品、设备制造商研发。以及运营服务协同,BIM平台化整合、建筑运维的信息化监管等。在平台上进行统一的外围护系统的精细化设计与专业整合。
科技集成的设计平台模式
BIM模型
干货:揭秘立面的集成化部品设计
系统门窗、外遮阳卷帘与金属幕墙
集成化
部品
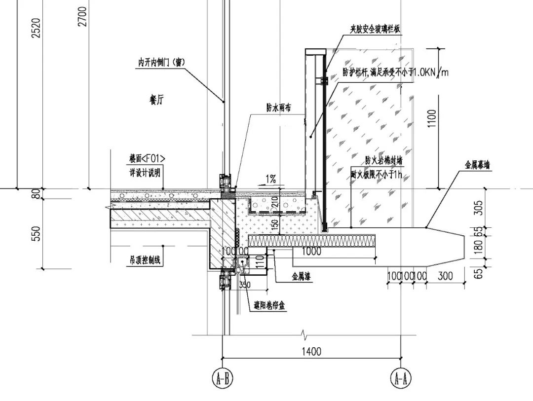
设计:为了取得舒适的室内环境,满足节能要求,需要设置外遮阳,而立面追求现代简洁风格,要求减少外漏构件;同时要满足装配式建筑的要求:所有的幕墙埋件及设备洞口都需在构件上预留。在设计建设过程中诸多问题需要同时协调考虑。
在外立面上,
防火挑檐、排风百叶与阳台栏板的交汇处,通过控制结构挑梁尺寸与阳台吊顶高度,通过各专业协同的节点设计,最终取得立面水平线条的整齐划一。
防火挑檐、排风百
叶与阳台栏板的综合设计整
合
为取得外立面简洁有力的效果,通过系统窗的凹槽隐藏外遮阳卷帘,作为排风百叶的收边,
外立面平整有序.
为使防火挑檐更加的轻盈,造型上做了梭形处理,同时将玻璃栏板下伸到混凝土梁外侧至梭形幕墙挑檐板上端,混凝土梁外侧局部做釉面处理,遮挡混凝土梁。
上图为彩釉栏板节点
系统窗,PC构件,百叶,遮阳卷帘的外科手术般的精确设计
山墙金属幕墙版通过两种不同的模数,错缝划分,竖向拼接,强调垂直挺拔感
通过各专业协同集成化部品设计,不断精益求精,最终前滩三湘项目的立面效果令业主和设计团队满意。
外立面一角
内院立面
02
现在来看看室内空间效果吧
客厅望向滨江景色
跃层客厅宽敞布局
餐厅落地大气江景
客厅落地大气江景
在智能BIM平台下的机电整合
智能平台下的机电整合,通过强大的BIM平台将机电系统优雅的整合在设备平台内,外立面波澜不惊,里面管线纵横,整齐有序。
BIM设备平台管综平面和设备平台BIM模型
设备平台内景和设备平台外立面细部效果
建筑正立面效果
在科技集成的住宅内部机电平台上,此项目高效协调统筹各专业,利用BIM技术和管线综合,最终取得理想的落地效果。
04
结语
实景照片
效果图
通过这次设计实践,上海前滩三湘项目体现了设计与科技的结合,以设计人员为核心的智慧平台,进行外立面构件的集成化构造和内部机电的综合设计,达成了建成与效果的完美统一;这种统一不仅是外观上的一致,更是实际使用时,内部科技成果所展现的与业主所期望的一种高度和谐。通过不断探索设计与科技的结合发展和谐统一,最终一定能够达到 “科技进步引领设计变革”的愿景。
三湘亮剑,是对我们设计方法的检验;
三湘亮剑,是业主对我们设计成果的认可;
三湘亮剑,更是同济四院设计人对当代住宅设计与科技的展望与新起点。
这是一种期望,也是一种承诺。
团队亮剑
往期三湘精彩内容导览
筑作 | High Tech!——三湘前滩科技豪宅项目
巡览 | 探班前滩住宅项目施工现场
构·思 |江边城景的装配式体现 ——前滩36-01地块项目装配式结构设计简介
主
编
:
S
h
a
y
n
e
C
h
e
u
n
g
责
任
编
辑
:
XIONG
编
辑
:
C
C
、
C
h
r
i
s
、
大
风
、
大
雄
、
V
i
l
l
a
i
n
、
英
实
、
东
耳
、
惠
子
、
灰
太
羊
、
大
牛
、
沙
田
柚
、
東
灵
、
初
一
、
小
L
、
土
旦
、
一
苇
、
原
野
、
望
舒
、
吕
公
子
、
工
具
人、XIONG
客服
消息
收藏
下载
最近














































