查看完整案例


收藏

下载
项目信息
建筑类型:
体育建筑
建设地点:
安徽省宿州市
建筑面积:
20000㎡
项目团队:
教育文体事业部
创办于1949年的安徽宿州学院,
校区历史悠久,环境优雅,小桥流水,
茂林修竹与雄伟的教学楼、图书馆交相掩映,
盎然的现代气息中荡漾着悠悠古韵。
校园环境
▼
项目场地条件
▼
项目位于校园东北角,
用地面积周边建筑距离过近,
且校园内水塔占据制高点,
建筑间亦存在遮挡及采光等问题。
建筑布局规划
▼
多轮方案比选,
确定主次入口,
留出校区前广场及展示面,
有机联系周边建筑。
功能组织
▼
建筑面积2万平,容积率1.1,
对于体育馆来说是极其紧张的用地。
采用立体化的集约型功能设计,
将不同的体育功能竖向叠加。
流线分析
▼
从比赛到教学,从运动到实训,
教师、学生、贵宾、运动员、观众、组委会,
人员流线的清晰组织,
体现了校园建筑的实用性。
立面形态处理
▼
立面形态简洁优雅,
比例适中,
与内部建筑功能完美契合。
网球馆外墙窗洞与
屋顶侧天窗,
自由与节制,
营造出光线的舞动与节奏。
校园建筑项目严格控制造价,
总投资控制在8000万,
造价只有4000元/平米。
故建筑外立面采用面砖与涂料,
摒弃了其他多余的装饰。
实际施工中取消了效果图的一些立面做法,
以最大限度节约造价。
结构体系外露,
注重经济但不失精致,
表现出力学美感。
体育馆效果图
▼
南侧鸟瞰图
建筑主体与室外台阶体现建筑体量感
内庭院透视,
简洁的线条与空间尺度的营造,
塑造了有特色的室外环境。
建成照片
▼
极致的功能主义,
统领了建筑平面组织与形态思路。
简洁优雅,利落大方。
为满足体育功能用房的使用面积要求,
同时又受于总面积的限制,
交通疏散空间全部外置,
既节约了面积,
又成为建筑与外部环境的过渡空间。
立面的红与灰,
形体的实墙与虚空,
构成了最和谐的建筑色彩。
施工中的篮球比赛馆空间和结构
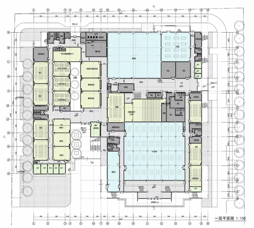
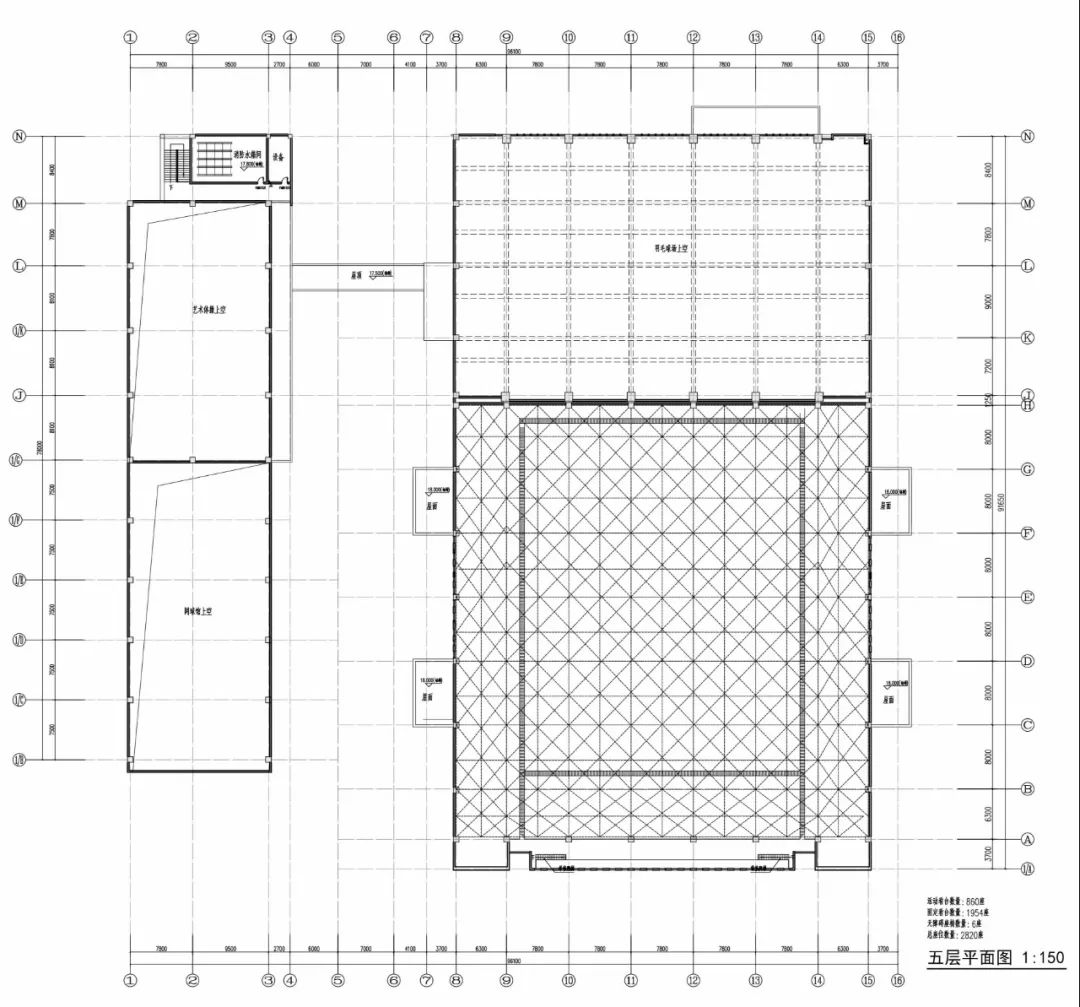
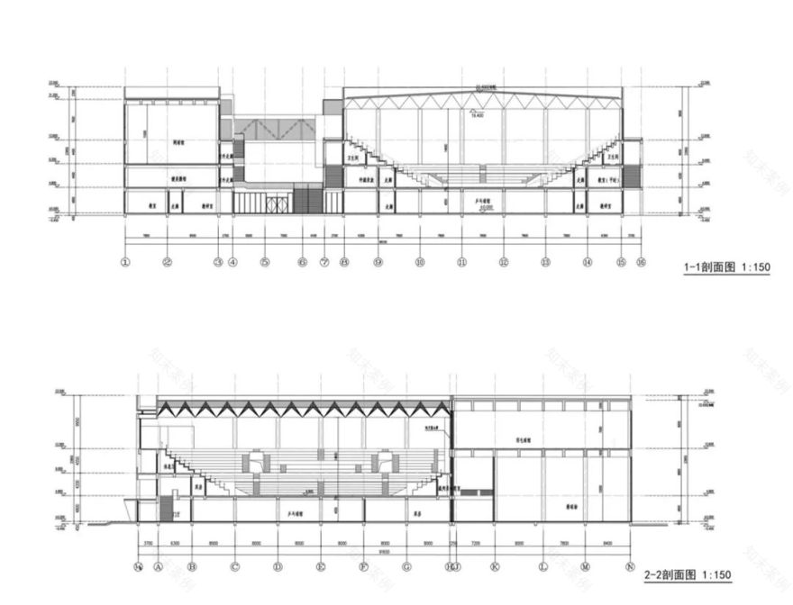
项目图纸赏析
▼
简洁、经济、富有亲和力,
功能流线组织的清晰实用,
内外空间的结构性表达,
宿州学院体育馆项目的诸多特点,
都成为高等院校体育建筑的新标签。
精彩内容导览
2019/03/08
筑作丨校园体育建筑的实用表达——安徽宿州学院体育馆设计
读图丨读图丨女神节快乐——致敬建筑界女性建筑师
主编:
X-小鹿
责任编辑:
Chris
编辑:
五仁
、小嘉、沙冰
、
诺诺
、老柴
、CC
、Chris
、大风
、涡轮
、大雄
、WJC
、Villain
、小名
、英实、
冻鱼、wangwang、未晓生、东耳
、惠子、灰太羊、大牛、
沙田柚
、
東灵、
初一、小L、土旦、一苇、原野
客服
消息
收藏
下载
最近

































