查看完整案例


收藏

下载
深圳正中科技大厦
项目发表:《城市建筑》2011年第12期
经典点评
这是座“偏心”的作品。标准层采用偏筒结构,“偏心”平面摒弃了传统平面设计上的“捷径”,同时抹除了“捷径”带来的单调,偏心于空间品质:偏核实现办公单元完整,偏庭为各标准层附加风光。在近地尺度“偏心”于公共空间价值:“偏心”的裙房型体半围合出开放灰空间,增加城市灰度。建筑形象“偏心”于内在涵养,不求“出位”,自安于纯粹与秩序。
--特邀点评人:CCDI 总建筑师 朱翌友
设计理念
在新楼林立的深圳市南山高新技术区,悄然建成的正中科技大厦也许很难像腾讯总部那样引起路人的注目。而正是这座低调的办公建筑,通过两个开放空间的精彩设置,为这片科技新区带来清新的活力。
∆ 建筑与公共空间的交融
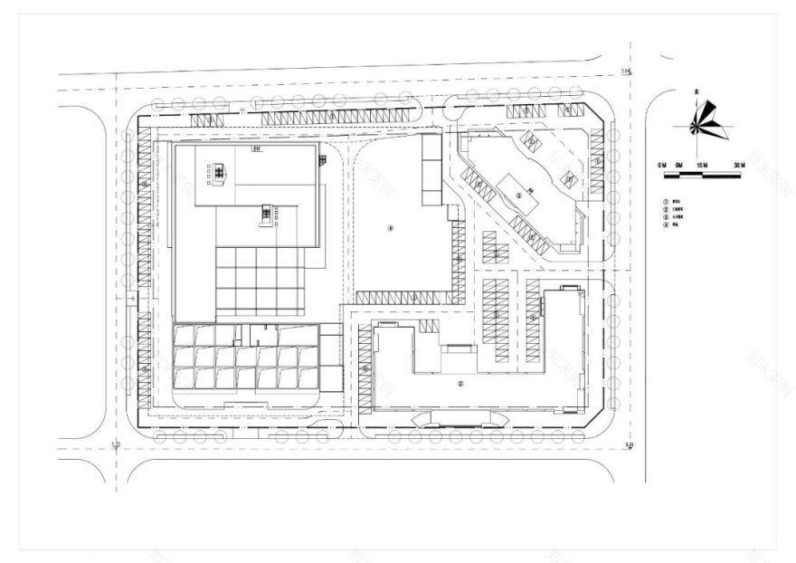
在设计之初,建筑师研究了科技大厦与已建成办公楼、孵化楼关系:项目主体建筑布置在用地西侧,建筑实体紧贴用地西南、西及西北边界,体量关系严谨。在用地中部,留出北向开敞的半围合广场;在裙房与塔楼之间,设计了一个大尺度开放的灰空间。这两个公共空间互相贯通,点明了设计方案的开放式格局,也顺利形成便捷的步行体系,裙房四周全设出入口,展厅得以充分展现。塔楼主入口设在南侧,入口人流与裙房人流相对独立,避免干扰。基地车行出入口分别设于北侧和南侧的城市次干道上,机动车交通沿周边组织,公共广场内步行环境不受影响。除了保证人车之间能良好分流以外,两个开放的公共空间更为建筑提供了充分的景观资源和公众接触界面,使得建筑空间及造型丰富生动。
∆ 项目总图
∆ 近景图
塔楼与裙房间的灰空间是另一个重要公共空间,它不仅解决了裙房与塔楼体量衔接问题,而且是多元化的功能与景观空间:这里有平静的水面,修长的竹子,木制建筑材料与钢、玻璃组合,典雅、清新,适合IT精英们的气质。这里能布置各种室外展场,人们既能停留观赏,交谈小憇,也能便利到达裙房各个楼层,将此处打造成活力的容器。
项目主体
主体建筑的偏核结构为大中型研发单位留出完整的空间,中部开辟的庭院直接与电梯厅相接,将自然开敞的环境与公共的交通空间合为一体,再次发掘出公共场域的价值,也借以提升了研发单位的空间环境。前厅、会议、接待等公共功能围绕庭院布置。建筑师在顶部数层设计了错层结构,结合灵活组合的空间单元,可以同层划分,也可以跃层合并,产生了多种区位空间。不仅使得空间变化丰富生动,更让整个公共空间光线充分、通风理想,一改百米塔楼环境呆板的面貌,实现了高层生态。
∆建筑夜影
建筑师将精准的立面比例划分与建筑的气质结合,引入挺拔隽秀的竖向线条,结合中置的空中庭院将塔楼自然分割而成的双体量,使得建筑整体更显修长。具体表现为南北立面竖向修饰板,以及与板材之间的简洁平静的玻璃材质的拼接,使内部的庭院环境得以充分展示,理性严谨的立面由于这一道立体空间的存在而显得生动。而东西立面相对较为实在,以此来增添塔楼的体积感与庄重气质。其中,在东立面二层、三层、四层上设置的绿化平台及地面绿化共同组成的“绿色等高线”,实现了百米塔楼的立体绿化,宽大舒展的绿化平台为二、三层创造的公共场地,成为看与被看的焦点。塔楼整体形象比例成熟,简约端庄,充分展现了项目的个性与气质。
∆ 项目立面
∆ 主体立面图
中部庭院
中部开敞庭院以自然、生态为主题。庭院北侧、西侧设浅水道,让水景与行人接近,庭院内加强绿化,利用开挖土方设计一些小土丘,形态自然,增加地面起伏,形成微妙的围合,尺度人性化。上面绿树丛生,充满野趣。场地构图几何与自由交织,理性构图中加入感性元素,清新自然、不失个性,成为整个片区环境亮点。
∆ 玻璃天棚
项目回顾
回顾本项目的设计过程,开放式布局始终贯彻设计的核心,成为决定空间质量的重要元素。本项目所处的高新技术园区东片区开发强度较大,法定的开放空间较少,需要建筑之间相互开放,方可彰显科技新区的建筑活力,也能比区域内常见的围合式布局带来更大的公众效益。
∆项目立面
CREDITS
项目名称:深圳正中科技大厦
建设地点:深圳市南山高新技术区
业 主:中国科技开发院
设计单位:CCDI悉地国际
用地面积:2.27万平方米
建筑面积:5.41万平方米
主创建筑师:朱翌友、朱宁、王照明、唐和平
设计时间:2005年
建成时间:2009年
摄 影:陈勇
推荐阅读
▽
悉地智造丨共享共融的产业空间:合肥滨湖云谷产业园
喜报 | CCDI中标青浦双盈路小学建筑方案项目
图片来源 | CCDI悉地国际
业务联系:吕女士 18502166370
客服
消息
收藏
下载
最近

















