查看完整案例


收藏

下载
一千年以来
我们饮酒、望月、千金散尽
然后成为李白的一条支流
For a thousand years
We drink, look at the moon
and run out of gold
It then became a tributary of Li Bai
●
前言
Preface
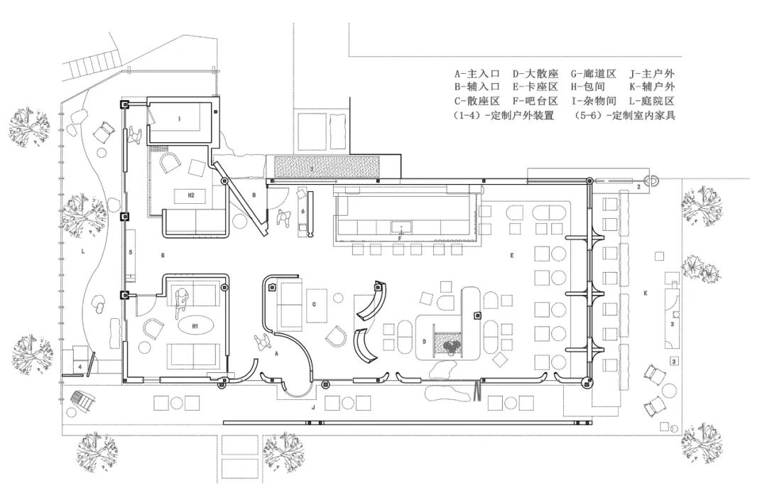
项目名称/麻省后院
项目名称/Mini & Cocktails · Whisky bar
项目地址/中国成都
项目类型/商业设计
项目面积/310㎡
全案设计/吴晨·何雨晴
设计时间/2022 年 05 月
● 项目背景
Backgroud
蜀地,是千年来的“噫嘘唏,危乎高哉”,是诗句里繁华的锦官城,是赵雷《成都》路尽头的小酒馆,这座城市兼具江湖锋利与诗意寂寥。
项目坐落于成都市新都区毗河绿道泥巴沱森林公园,这里茂林修竹、美池古树、清流激湍,映带左右,远眺霭霭雾中雪山。
两年前,这里开了一家名叫麻省后院的三层综合体,这是一处 2380㎡、主营涮羊肉、咖啡与棋牌的生活中心。客来客往,这里始终缺少一处沉浸饮酒空间。
两年以后,麻省后院决定扩增一处酒吧,新址选择了原有综合体旁,带有院子的独栋建筑。
我们被这里的松弛与诗意所打动,于是决心延续这里的意境,能够强调麻省后院的秩序,同时衔接新旧两处的情感。
▼ 原建筑样貌以及周边环境
● 概况 Overview
在进行这处酒吧构思的时候,我们希望这里不仅能为客人提供珍馐美酒,同时也能够给予灵魂片刻的休憩。
原本的房屋结构为简单方正的玻璃盒子,呆板无趣,与周围环境的边界十分生硬。
我们并没有将重点放在“酒吧”“餐饮空间”这种符号与类型学的字眼中,而是围绕“之后”的或独处或社交的线索下多种情境的展开。
因此我们从空间的氛围感出发,设计出“曾经”“当下”“未来”的生活气息与气质变化,空间在叙事中多变复杂,想象与现实在此处结合。
▼ 改造前现场照片
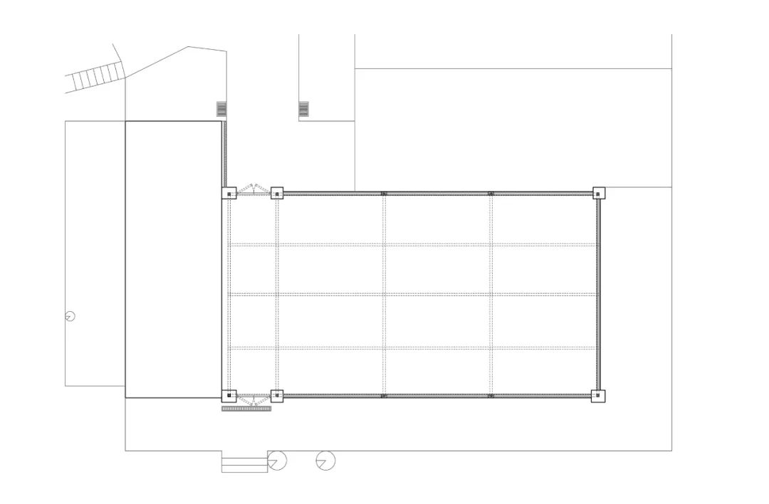
▼原始结构图
▼平面布置图
● 建筑外立面 Surface
建筑立面的灵感来自于建筑师伊东丰雄的理念,他主张每个场所都有它的时间感与空间感,场域自由生长,功能在迭代中和人产生关系以及特定的意义,随性反馈着建筑与自然生态、社会、人群的连接。
每一处的界面都是我们精心设计的结果,始于建筑,终于环境,建筑的边界恰好停在了环境让它停下的地方。
通过对自然光影、建筑表皮的重新规划,最大程度的强调建筑与环境的共生延续。
侧面的檐廊,在太阳的光照下,婆娑树影与建筑之间形成了跳跃的对话。
与三层综合体相对的檐廊外部设有步道,保证了公园空间的连续,也促进了新旧建筑之间互相凝视,情绪彼此渲染。
外搭柱廊,将两个长方形体块灵活搭接起来,对三层综合体的人群进行视觉引导。
变化的体块,仿佛是一个趣味性的艺术展览之旅,建筑在各个方向上,不趋同不附和不拒绝。
主入口正对着毗河绿道公园,河水平静如初,犹如深绿色的丝带柔软的缠绕,杨柳低垂的树枝轻柔的摇晃。加建檐廊仿佛一个框景,将荣盛苍翠的公园作为整个建筑的背景。
几何的体块与光影互相塑造,拿捏自如的体块下,光线进行着神奇、恰当而又绝妙的表演。春秋的夜晚,吸引着人们在此驻足、停留。
贯穿整个空间的落地窗外,塑造了独属于麻省后院的庭院,遮挡视线的同时,也为两个包间创造了私人庭院氛围。
● 功能 Function
在进行功能划分的时候,我们探索了空间的很多可能,最终形成以吧台为中心,其他区域互相穿插的空间形态,而原始的结构在空间之中被消隐。
入口的灰泥墙面与青竹,是强烈的水墨丹青,也是场域的起点,看似张扬,但在材质的选用、光线的引入上,都是内敛、寂寥的。
当人群一进入空间,立刻就能看到空间的中心--吧台,但当人们在这里驻足,凝视整个场所,这里又不仅仅是一间酒吧。
吧台
自然地延续到墙面与屋顶,生长出陈列各色美酒的酒架,与肌理圆润质朴的木梁。
弧形吊顶的灵感来自中国传统建筑中的构件--青瓦,无限放大后获得深邃含蓄的形态。吊顶在房梁两侧连续,组成了老旧民居的曲顶飞檐,古朴而又沉寂。
自由宛如波浪般的红色灯条,与吧台立面蓝色的孔灯,是赛博朋克机械感与侘寂诗意碰撞出的独特篇章。
▼青瓦屋面(部分图片来自于网络)
落客区我们打破了传统的酒吧大空间布局,将空间划分为大小不一的私密、半私密、开放的空间。原本一览无余的玻璃盒子,通过不同程度的开放,形成了多变的空间体验。
弯曲隔墙、水墨画的石材屏风形成半开放的空间,禅意中透露着细腻。
低矮的条窗克制着外部视线,也将屋外的绿意引入建筑中,夜晚综合体的灯光对酒吧的影响被降低了。无论客人是希望独处,还是与友人一同前来,都能在这里找到人与人之间合适的社交距离。
木柱、青松、枯枝、锈迹斑斑的铁罐,安静的器物与光影交叠,是杯酒少年复杂情绪的追问,是娓娓道来平静的情愫,在不经意间回归深情。
●
营业期间现场照片
Live photos
▼改造后营业期间现场照片
▼麻省酒吧菜品(图片来自客人拍摄作品)
ABOUT US
东己壤设计研究室成立于 2018 年,由何雨晴和吴晨共同创立。空间是人精神和意识的栖息地,致力为人在空间创造互动性和界限,建立人文艺术和情感连接。坚持做富有生命力、有温度、可持续的空间
客服
消息
收藏
下载
最近


























































