查看完整案例


收藏

下载
本案是从建筑结构改造入手,通过对空间、光线、自然材料来表现出独特的气质和内在美。
SPACE AND BUILDING COMPONENTS
01
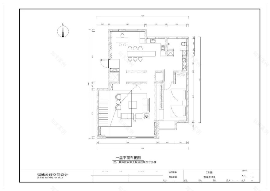
建筑与空间
木色与光影传递
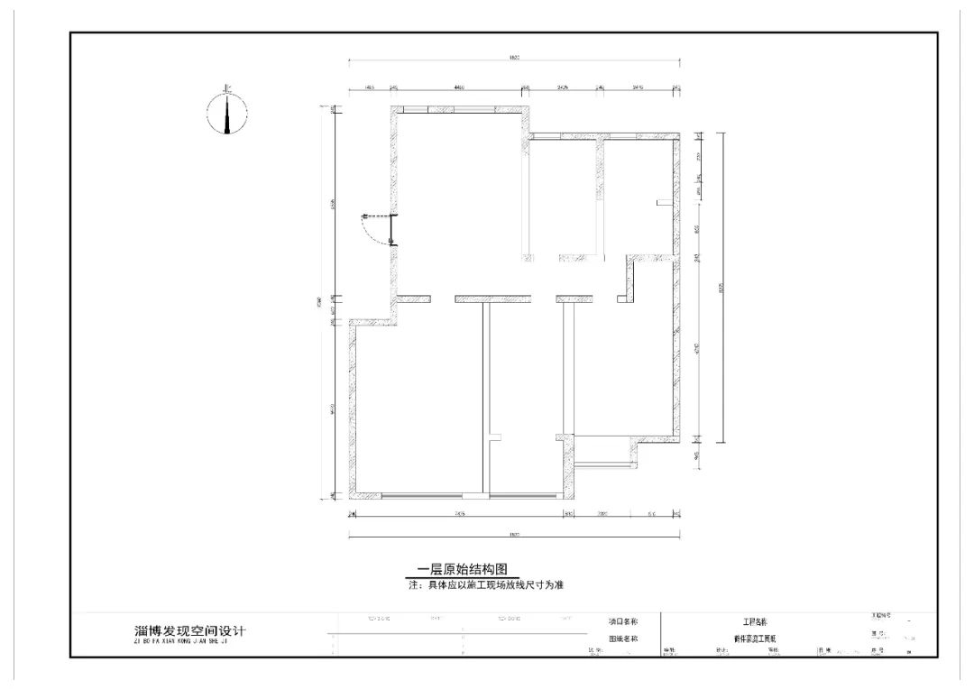
将原本三层房屋结构进行重新设计呈现了温暖的视觉观感及甜蜜丰厚的想象。激活旧的建筑空间,绽放新的生命周期。将建筑结构重组,让原本单一的空间涅槃重生。
艺术感的珍珠吊灯将空间有趣的分割
独特设计的叠层楼梯增加了空间的层次。楼梯下的地台做为日常生活的互动空间。
原创设计的柜门即增加了柜门的丰富性
木质与天然大理石
空间与自然在光影的叙事下冥合相宜,明暗虚实交织的光影,温柔的色调,透过自然气息的天然材料,每一次细节的分寸,不仅保证了室内空间的秩序美,更营造出一室优雅静谧的美学空间
中西厨延续整个空间中的黑白和自然的木色
通过超大移门将空间变为可变空间,关上门动与静进行有序分割,卧室秒变大套房。
•
02
TIME AND WARMING
TRANSFER
时光流逝 温暖不失 空间与动静传递
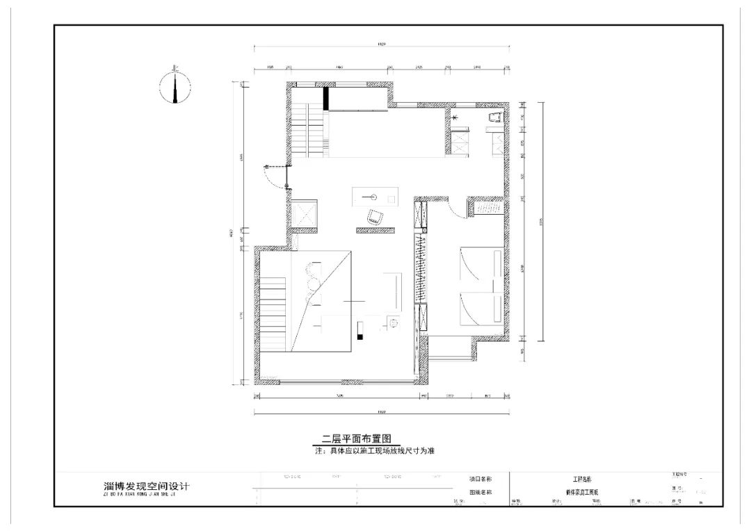
2楼
环绕动线与充足的储物空间
组合式储物空间与墙板结合
设计师将2楼空间规划出学习空间/互动互动/冥想空间/休息空间
合理的空间优化 动静分离
多变可自由组合的有趣空间
•
03
CHILDREN AND CLIMING
INHERITANCE AND SUSUTENANCE
亲子与攀岩
传承与寄托传递
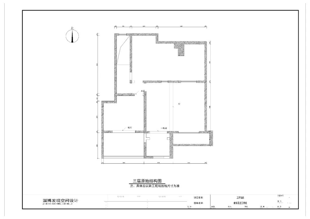
3楼
在现代化的钢铁丛林中,开辟出一块原始的木质乐园。天然白橡木的纹理给孩子一个接近自然的感觉,仿佛回到了最初的模样。在这里,他们可以感受时间的流逝,体会到改变和心中不变的温暖。
攀岩不仅是一种运动,更代表了亲子间共同培养的嗜好。
专为儿童设计的踏步高度
项目简介
『项目坐标』 | Location:山东邹平
『项目名称』 | Project:鹤伴豪庭
『项目面积』 | Square:400㎡
『全案设计』 | Studio:发现设计
『全案施工』 | Studio:发现设计
『高端木作』 | Studio:歌森堡整木定制
『设计时间』 | Time:2021.10
项目信息
原建筑结构
客服
消息
收藏
下载
最近



































































