查看完整案例


收藏

下载
上海近郊的岑卜村,毗邻于淀山湖,田野与民居交错的村落,中心有几个大体量的旧厂房。在新农村建设中,已化身为村中的商业中心。每逢节假日,村里如同集市般聚集着远离喧嚣、寻找乡野的人群。
Cenbu Village, located in the suburb of Shanghai, is adjacent to Dianshan Lake where fields and houses are interconnected. There are several old plants in the center of the village. In the construction of new countryside, they have become a commercial center in the village. On holidays, the village is like a street market gathering people who are far away from the hustle and bustle and seek countryside resort.
▼茶室外观,exterior view of the project © 恩万建筑摄影
9米高的厂房,保留着极其简单的工业建筑元素:粗壮的牛腿柱、纤细的钢架托着单薄的坡屋顶。在村里统一规划后,内部被刷白,已掩盖了大部分工业线索,留下的巨大空间体量,在乡村中似乎格格不入。何况业主欲将之改造为一个传统韵意的茶饮空间,乡野、工业、茶饮应该如何在这里交汇?
The 9-meter-high plant still preserves extremely simple industrial building elements: thick corbel pillars, and slender steel frames supporting a thin sloping roof. After unified planning, the inside of the plant was brushed with white paint, which has covered most of the industrial clues and left a huge space that seemed to be out of place in the village. The owner wants to reconstruct it into a traditional tea drinking space. But how should countryside, industry and tea be combined together here?
▼建筑与周边环境鸟瞰,aerial view of the project and surrounding environment © 恩万建筑摄影
▼鸟瞰立面,aerial view of the facade © 恩万建筑摄影
▼露台区域,terrace © 恩万建筑摄影
造风亭 Wind Pavilion
得益于工业厂房的开阔特点,我们在空旷的空间内部植入一个小尺度的“亭”,由它在工业与茶饮间搭建桥梁。特地回收的旧木料,饱含着时间的痕迹,以传统的榫卯方式搭建,构筑于厂房的中心区域,匀质的空间有了核心感和时间感,重组“旧”以获“新”。
▼分析图,analysis diagram © 恩万建筑摄影
Thanks to the wide space of the industrial plant, we implanted a small “pavilion” in the empty space to build a bridge between industry and tea drinking. The recycled old timber indicates the traces of time. The pavilion is built by traditional tenon-and-mortise jointing in the central area of the plant. The homogeneous space produces a sense of core and time, and “the old” is recycled into “the new”.
▼室内空间概览,overall of interior © 恩万建筑摄影
4根立柱,4根横梁纵横交错,老船木做地台,一个极富符号性、历史性的亭落成。三片白色长纱挂垂而下,随风而起,在室内也能感知室外,意为“风亭”。
The pavilion is composed of 4 pillars and 4 interconnected beams, taking old ship wood as a platform, and showcasing symbolic and historic characteristics. Three pieces of long white yarn is hung downwards, rising upwards with the wind. You can sense the indoors while staying outdoors, and then it deserves its name “Wind Pavilion”.
▼造风亭,the Wind Pavilion © 恩万建筑摄影
▼4根立柱,4根横梁纵横交错, the pavilion is composed of 4 pillars and 4 interconnected beams © 恩万建筑摄影
▼老船木做地台,old ship wood as a platform © 恩万建筑摄影
▼三片白色长纱挂垂而下, three pieces of long white yarn is hung downwards © 恩万建筑摄影
▼细纱随风而起,在室内也能感知室外, The yarn is lifted by the wind, and it can sense the outdoors inside © 恩万建筑摄影
筑斜墙 Oblique wall
斜向片墙,一方面切分空间属性——一侧为开放的散座区与主吧台区,一侧为私密的台阶餐饮区与后勤区。另一方面也为风亭创建视线导引,在方正的空间打破平衡,引入不稳定感。进入厂房的客人,顺着斜墙的引导,自然转向开放散座与风亭。
The oblique wall divides the space into two parts: One part is open seating area and main bar counter, while the other part is private step dining area and logistics area. It offers line-of-sight guidance for the wind pavilion, breaking the balance in a square space and generating a sense of instability. When entering the plant, you will naturally be led by the oblique wall to the open seating area and the wind pavilion.
▼墙体与柱头,walls and capitals © 恩万建筑摄影
▼隐藏光源,hiden light © 恩万建筑摄影
吧台沿着斜墙布置,可以在这里展示茶艺,也可供客人喝茶用餐。吧台取材于一块自然边的老榆木整板,以最简单直白的方式构建起来——七字型木楔搁于土墙之上。斜墙端头的圆洞,是对背后空间的暗示——楼梯搭建的台阶餐饮区,在大空间的开放与小区域的独立之间创建联系。
The bar counter is arranged along the oblique wall, where tea art can be displayed and guests can drink tea or have meals. The bar counter is made of an old elm board with natural edges. It is built in the simplest and straightforward way: An L-shaped chuck is placed on the cob wall. The circular hole at the end of the oblique wall is a hint for the space behind the step dining area built by stairs, creating a connection between the opening of a large space and the independence of a small area.
▼斜向片墙与圆洞, the oblique wall and the hole © 恩万建筑摄影
▼楼梯搭建的台阶餐饮区,step dining area built by stairs © 恩万建筑摄影
布小径 Path pavement
在造亭与筑墙之后,则是通过一些踏石、碎石、屏风、绿植,串联起这个空间内的不同位置的“景”。所用材料力求自然、乡野,以呼应厂房所在的场所,包括灰白色的碎石子、回收的整块旧枕木、大小各异的老石板。这些常用于室外的材料用在室内,让厂房的壳变成了一个灰空间,让人能呼吸自然、感知户外。
Behind the pavilion and the wall are the “scenes” at different positions in the space consisting of stepping stones, gravels, screens and green plants. The materials used are taken from the nature and countryside in a bid to echo with the place where the plant is located, including grey gravels, recycled old sleepers, and old slates of different sizes. These materials, which are often used outdoors, are now used indoors, make the shell of the plant a grey space, and allow people to breathe naturally and sense the outdoors.
▼踏石、碎石、屏风、绿植, stepping stones, gravels, screens and green plants © 恩万建筑摄影
▼屏风区域,screens © 恩万建筑摄影
小径从室外开始,旧石板引入至室内吧台,旧枕木环绕风亭,风亭与厂房边界的变化,改变着小径空间的比例,犹如在街巷穿行。
The path starts from the outdoor, the old slates are paved in the indoor bar counter, and the old sleepers surround the wind pavilion. The change of the boundary between the pavilion and the plant alters the proportion of the path space, and you will feel like walking through the street.
▼小径,the path © 恩万建筑摄影
▼小径细部,detail of the path © 恩万建筑摄影
做家具 Furniture making
除了建筑材料上的可持续利用,这间中式茶饮空间的内部家具也全部是旧物利用,每一件都具有它的独特性,包括非遗传人打造的竹椅、用京砖和老木做的桌子、老榆木做的桌板等等。
In addition to the sustainable utilization of building materials, the interior furniture of this Chinese tea drinking space is all made of old stuffs. Every piece of furniture is quite unique, including bamboo chairs made by the inheritor of intangible cultural heritage, tables made of imperial bricks and old wood, table boards made of old elm, etc.
▼室内细部,details of interior © 恩万建筑摄影
▼竹椅与老木做的桌子, bamboo chairs and tables made of old wood © 恩万建筑摄影
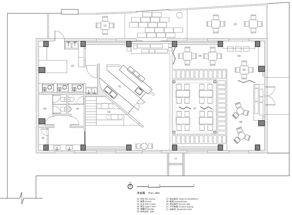
▼平面图,floor plan ©大海小燕设计工作室
客服
消息
收藏
下载
最近
































