查看完整案例


收藏

下载
拾柴是一个具有工匠精神、对细节要求很高的茶饮品牌。
Shichai is a tea brand which values the spirit of craftsmanship spirit and up-holds high standards on details.
▼门店概览,storefront overview © SpaceStation
品牌突出手艺人手工制作、为客人精心准备一杯茶饮的呈现过程,我们的设计构思首先在布局上展开,将原先发生在后厨里的蒸煮环节放在了空间中最显眼的位置;“制茶手艺人的舞台”这一概念由此得以呈现。“舞台“的造型我们采用了火炉的形式,火炉作为整个空间的核心,既与拾柴这一品牌名称产生了关联,同时也还原了在传统家庭中亲朋好友之间围炉品茶、亲切友好、温馨的交流场景。
The brand highlights the hand-making process of craftsmen involved in the preparation of a cup of tea for guests. Our design concept is embodied in the lay-out of the store: we placed the cooking process originally relegated to the kitchen area in the most conspicuous position within the store. The concept of a “tea craftsmen’s stage” can thus be expressed. The stage itself is shaped like a stove: as the core of the entire space, the stove is not only related to the brand name of “Shi Chai” (i.e. gathering kindling), it also conveys a sense of cordiality and friendship, and the warm atmosphere of relatives or friends gathering around fire.
▼“制茶手艺人的舞台”,”tea craftsmen’s stage” © SpaceStation
▼火炉的形式,tea craftsmen’s stage © SpaceStation
火炉的支撑结构是一个抽象的中式梁柱体系,它由简单的木板材料穿插而成,所有的连接点都采用了最为简单直接的构造形式,这一结架体系同时延伸到了空间的其它部分,以此营造出制茶工坊的整体气氛;空间中的客座采用了“沉浸式”的设计,客人可以近距离地观赏制茶手艺人操作的每一个细节,给顾客带来一种在制茶工坊里“喝一杯新鲜出炉的奶茶”的幸福感。
The supporting structure of the stove is an abstract Chinese-style beam and column system, made of simple wooden board materials. All connection points adopt the simplest and most direct structural form. This structure system also ex-tends to other parts of the space creating the overall atmosphere of a tea-making workshop; the guest seats in the space adopt an “immersive” design:guests can watch every detail of the tea-making craftsmen’s operations at close range, giving customers a grasp of every detail of the tea-making progress. The happiness of “drinking a cup of freshly made milk tea” in the workshop.
▼简单的木板材料穿插而成,simple wooden board materials © SpaceStation
▼近距离地观赏制茶手艺人操作,detail of the tea-making craftsmen’s operations at close range © SpaceStation
家具的设计同样是空间中木构架系统的延伸,它采用了比一般桌椅用材尺寸略大的板材,这种朴素的设计手法在空间中的每一个细节随处可见,比如桌子上的餐牌、盛放吸管的容器等,使整个空间呈现出一种质朴、踏实、可靠的工坊气质,与拾柴想要传达给客人“认真做一杯好茶”的品牌核心信息一脉相承。
The design of the furniture is also an extension of the wooden frame system in the space. It uses boards that are slightly larger than those used for ordinary ta-bles and chairs. This simple design technique can be seen in every visual aspect of the shop, such as the menu cards, Containers for holding straws, etc., give the entire space a simple, down-to-earth and reliable workshop atmosphere, which is in line with Shichai’s core brand approach of “taking making a good cup of tea se-riously”.
▼空间概览,space detail © SpaceStation
▼朴素的设计手法,Simple design approach © SpaceStation
这家店是拾柴手作品牌的首店,将来则会面临品牌系列店的设计。如何既保持品牌形象的一致性又能体现“手作工坊”的质朴感觉?我们在这家“原型店”的设计中做出了一些探索。我们尝试改变一般连锁店的“模块化”空间设计方式,而用“方法与体系”代替预制的“模块”,不再是“把预制好的模块塞进不同的场地”而是回到“根据不同的场地建一座工坊”。这就像预制食品与有“锅气”的手作食物的区别。
This store is the very first of this handicraft brand, and is meant as a template for a series of brand stores in the future. How to maintain the consistency of the brand image while reflecting the rustic feel of a “handicraft workshops”? We made some explorations in the design of this “prototype store”. We tried to change the “modular” space design method of general chain stores by replacing the prefabri-cated “modules” with “methods and systems”. The approach of “inserting prefabri-cated modules into different venues” clashes with the necessities of this venue: we opted instead to build a workshop on site, according to the characteristics of this location. We like to think this approach makes a difference akin to the great chasm between the prepared food and genuine homemade delicacies: only the last can trap the prized “breath of the wok”.
▼柜台,counter © SpaceStation
▼转角,corner © SpaceStation
▼客座区,seating area © SpaceStation
如何建一座工坊?如果是传统工匠来建造,是不需要设计师与施工图的,只需要明确“制式与主材”,便可以根据不同场地的尺寸放线下料。我们采用了两种“制式”:板材逻辑的“大木作”与钢型材逻辑的“框架厨房”它们分别对应板材与型材两种主材。大木作以3米为模数,型材框架则以1米为模数。板材宽20厘米,厚4厘米;型材4厘米见方。大木作形成空间框架,型材系统嵌入其中,作为第二级。由于模数和材料的尺寸都存在对应,每三根钢型材会有一根与板材对齐,并被双板夹住。这就像传统建造中的斗拱,它既是基本节点也是基本模数,有了它,工匠便可以“依法式而建”。我们正在编制的拾柴手作SI手册就是这样一本“制茶工坊营造法式”。
How to build a workshop? If it is built by traditional craftsmen, there is no need for designers and construction drawings. Only “assembling standards and main materials” need to be clearly defined, and then the materials can be laid out ac-cording to the dimensions of different sites. We have adopted two “methodolo-gies”: “traditional carpentry” based on board assembling logic and a “framed kitchen” made of shaped steel. The module for the large woodwork is 3 meters, and the module for the profiled steel frame is 1 meter. The board is 20 cm wide and 4 cm thick; the profile is 4 cm square. The large timber work forms the frame of the shop, into which the profiled steel is embedded as a second level. Due to the correspondence between module and material dimensions, one of every three steel profiles is aligned with the plate and is sandwiched between double plates. This is akin to the system of interlocking wooden brackets in traditional Chinese woodwork, which we adopted for panel joints and basic modules. Ac-cording to this method, craftsmen can “build according to rule.” To a certain extent, the Store Identity manual we are compiling for Shichai can be thought of as an adaptation of the well-known Song Dinasty’s “Treatise on Architectural Methods or State Building Standards” to the reality of tea making workshops.
▼操作区,operation area © SpaceStation
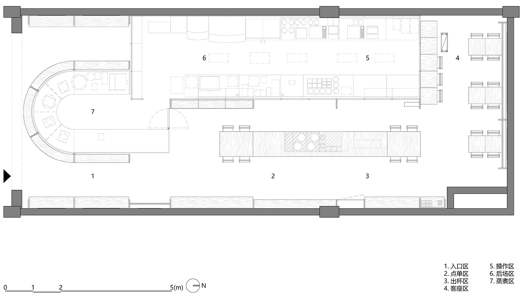
▼平面图,plan © SpaceStation
客服
消息
收藏
下载
最近























