查看完整案例


收藏

下载
工程名称:多少家具北京店设计
Project name: MoreLess Furniture Designed in Beijing Store
坐落地点:北京市朝阳区东四环中路 193 号红星美凯龙家居商场一楼
Address: 1st floor, Red Star Macalline Home Shopping Mall, No. 193 Middle of East Fourth Ring Road, Chaoyang District, Beijing
面积:190m2
Area: 190m2
设计:王善祥
参与设计:王善辉李哲多少家具
Designer: Wang Shanxiang Participants: Wang Shanhui Li Zhe MoreLess Furniture
主要材质:乳胶漆、橡木、墙纸、实木复合地板、水泥砂浆
Main material: Emulsion paint, oak wood, wallpaper, mulitlayerd wood flooring, and cement mortar.
摄影:胡文杰
竣工时间:2016
Time of completion: 2016
北京小白屋
Beijing Small White House
多少家具北京店设计
MoreLess Furniture Designed in Beijing Store
多少家具是由著名家具设计师侯正光先生创办的品牌,主要设计生产和销售具有当代中国文人气质的原创家具及家居用品,以实木居多。目前在全国已有多家店面,这是位于北京一家。
MoreLess Furniture is a contemporary original furniture brand, created by renowned furniture designer Mr. Hou Zhengguang. It mainly designs, produces and sells original solid wood furniture with contemporary Chinese literati character and household articles. Currently, there are a great number of stores all around the country, and this store is situated in Beijing.
多少家具是由著名家具设计师侯正光先生创办的品牌,主要设计生产和销售具有当代中国文人气质的原创家具及家居用品,以实木居多。目前在全国已有多家店面,这是位于北京一家。
MoreLess Furniture is a contemporary original furniture brand, created by renowned furniture designer Mr. Hou Zhengguang. It mainly designs, produces and sells original solid wood furniture with contemporary Chinese literati character and household articles. Currently, there are a great number of stores all around the country, and this store is situated in Beijing.
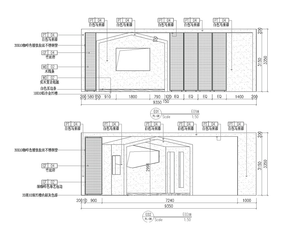
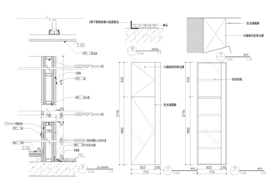
展厅位于东四环的红星美凯龙家居城的一楼店铺,有 190 平方米,是一个长 21.2 米,宽 9 米的长方形,两端头为入口,像是一个火柴盒的壳。这类商场内的空间通常都比较单调,因此布局首先更不能一览无余的从一端望到另一端。为此设计采用了迂回曲折的参观动线,拉长参观线路和时间,使参观者放慢速度更好的欣赏产品。主入口朝向商场的主门厅进来的通道,这是人流最大的一个入口。次入口是朝向商场的挑空中庭,人流相对少些。作为店铺连锁的标志性形象,两间小白房被嵌入其中,形成了两个参观中的重要节点,也是迂回动线中的屏障。两个小白房像是两个凉亭。在中国古代,亭子是供行人休憩的有顶但没有门窗的建筑物,所谓亭者,停也。但其形成尺度又像是现代住宅的厅、室,家具布置其中,给人以自家生活场景的联想。动线还需要屏障,家具产品也还需要做为背景的墙,于是又加入了两面发光的纸墙以及几片竹帘屏风。其中一面发光墙将参观者的视线完全阻隔,小白房立面上的各种形状的窗洞能使人的视线稍有穿透,而竹帘屏风则能使人的视线大部分穿透,但保留了一些朦胧感。这样三种层次阻隔程度的隔断划分了展厅空间的格局,使参观线路有了迂回纵深,增加了一丝步移景异的中国园林空间情趣。丰富的空间最大程度的满足了业主尽量多展示产品的要求。这样阻隔空间的线条都是横平竖直,则稍显单调。于是将靠近主入口的一个小白房做了 15 度角迎向商场主门厅的一个入口便热情了许多,内部空间也顿时有了一些灵动气息。
The exhibition hall is located on the first floor of Red Star Macalline Furniture Store. The store is a rectangle just as the shell of matchbox with two entrances at both ends, which covers an area of 190 square meters, its length is 21.2 meters, and width is 9 meters. Due to the monotonous space in this type of markets, the layout shall avoid taking in everything in a glance. So we adopts a roundabout flowing lines in design, which stretches the visiting line and time, so that the visitors can slow down to appreciate the products. The main door of our store is towards the main entrance of the market, which has the maximum stream of people. The secondary entrance is towards the atrium of the market, the stream of people is relatively less. As the iconic image of the chain stores, two small white houses are embedded in it, forming vital node of two visits and barrier of circuitous flowing lines. Two small white houses is just like two pavilions. In ancient China, the pavilion is the building for pedestrians to repose, which has the top but no windows or doors, the so-called pavilion and stop are homophone words in Chinese. But its formation is like the hall, room, and furniture arrangement in modern residence, which makes people associate their own life scenes. Flowing lines also need barriers, and furniture products also need background wall, so we select two shiny paper wall and a few bamboo curtain as screen. Of which one luminous wall will completely block the line of sight of visitors. The various shapes of the window hole on the facade of small white house can make a slight penetration of sight, and bamboo curtain screen can make most of line of sight to penetrate, but retain some hazy feeling. Thus these three blocking levels divide the layout of the exhibition room space, so that the tour is roundabout and it also enhance the verticality of the house, and a taste of Chinese gardens with varied landscape. Plentiful space to the greatest extent meet the requirements of the owners that display the products as much as possible. However, the lines in this blocking space are horizontal and vertical, which are slightly monotonous. Therefore, the small white house which is close to the main entrance is equipped with a 15 degree angle of rotation, the entrance of the small white house is the main entrance of the store, so that the main door facing to the mall entrance of the market is more enthusiastic, and the internal space also has some flexible style.
这个展厅在材质上仍然延续了多少家具连锁店的一贯标准,暖灰色草编墙纸及旧木效果地板,营造了雅致的基础色调,烘托出沉稳的胡桃木为主的家具产品,两个清亮的白色小房及白色内藏灯光的仿羊皮纸提亮了和丰富空间的色阶。
吊顶天花,仅是开了些藏射灯的凹槽,减少了浪费也降低了造价。
The texture in this exhibition hall also inherits the consistent standard of MoreLess Furniture chains, warm grey straw wallpaper and old wooden floor build the basic tone of elegance, and add atmosphere to tasteful walnut furniture products, meanwhile, two small bright white houses and white artificial parchment paper with build-in lamplight brighten and enrich the space levels. The suspended ceiling basically adopts gypsum plaster ceiling board of the former exhibition hall, and adds some grooves for installing reflector lamp, which reduce the waste and cost.
空间并不大,主要看动线!
The space is not large, while the flowing lines will attract you!
客服
消息
收藏
下载
最近



















































