查看完整案例


收藏

下载
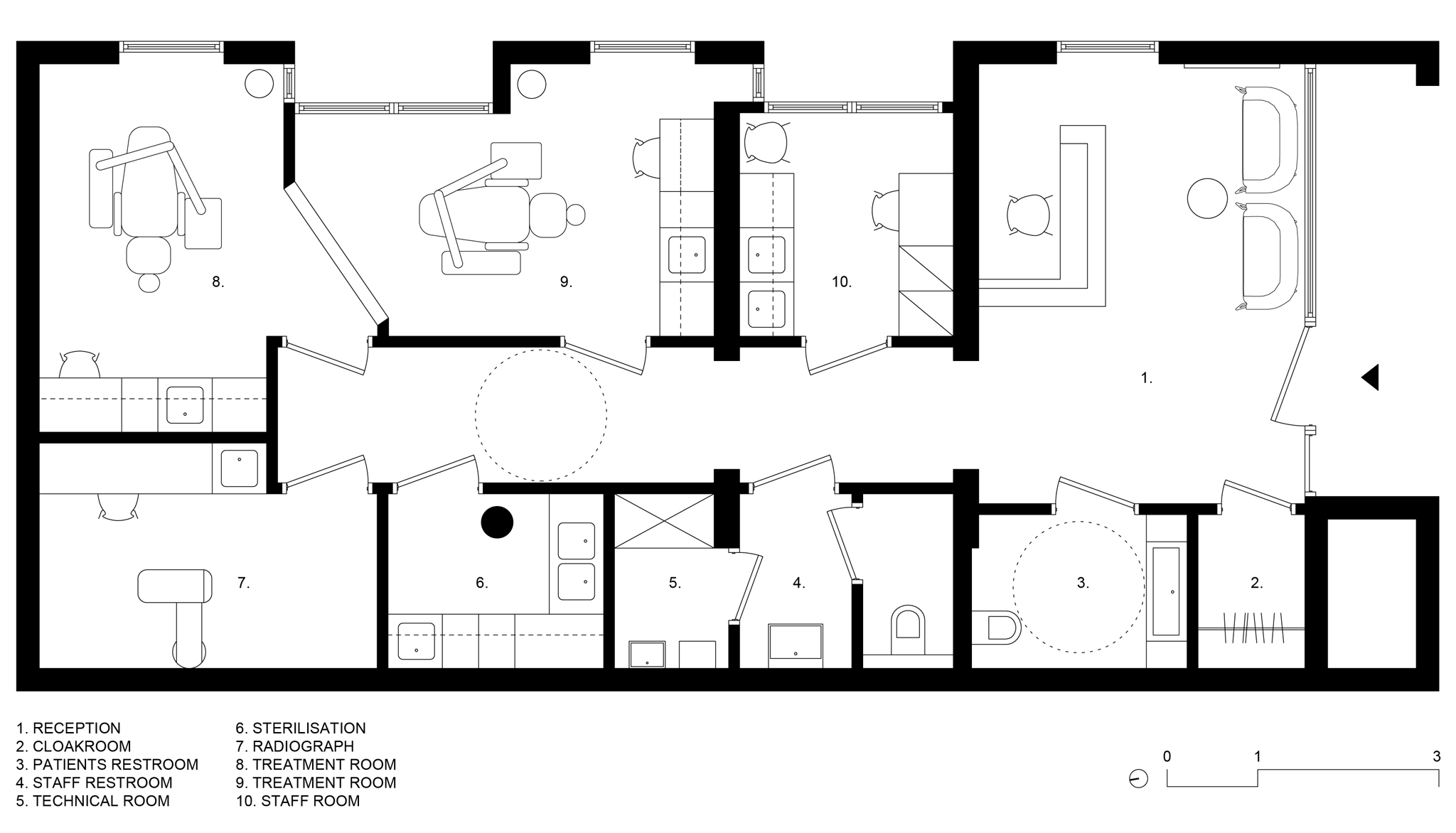
由我们设计的牙本质艺术牙科诊所位于苏西拉斯附近的波兹南,波兰。
我们的这个内部的概念是基于使用垂直分割的各种形式,这是指牙医的效果-直牙。除其他外,在治疗室之间的墙的建造、墙壁上的瓷砖布局或等候区柜台的镜子图案中都会出现垂直图案。我们设计的钢元素赋予了内部独特的特性。
明亮的空间,面积为84平方米,以此方式划分,以适应所有需要的功能诊所与两个牙科办公室。该空间被明确划分为病人、工作人员和医疗设施的区域。
由于窗户和所需的表面布置,治疗室之间的墙壁是角度,以获得舒适的入口。墙壁的特征结构是用聚碳酸酯片覆盖,使光线从明亮的房间穿过。
白色、灰色和大理石颜色与公司的视觉识别相关的橙色细节得到补充。
小组:Agnieszka Owsiany,Adam Wiercinski
图片:Przemyslaw Turlej
Firm Adam Wiercinski Architekt
Type Government + Health › Medical Facility
STATUS Built
YEAR 2017
SIZE 0 sqft - 1000 sqft
keywords:architecture, architecture news, interiors, interior design, portfolio, spec, brands, marketplace, products DENTIS ARTE
关键词:建筑,建筑新闻,室内设计,组合,规格,品牌,市场,产品牙本质艺术
客服
消息
收藏
下载
最近





























