查看完整案例


收藏

下载
© Yoshiro Masuda
c.Masuda吉郎
架构师提供的文本描述。逐渐形成的空间。
Text description provided by the architects. A space which gradually takes shape.
这是一家独立的发廊,位于市郊的一个购物区。该网站是宽敞的,提供了更多的空间是必要的,以容纳客户的数量,业主想要服务。
This is an independent hair salon, located in a shopping district on the outskirts of the city. The site was spacious, offering more room than what is necessary to accommodate the number of clients that the owner wanted to serve.
© Yoshiro Masuda
c.Masuda吉郎
商店的名称“藤蔓”是基于业主的愿望,使连接成为最高优先。藤蔓有独特的能力单独生长,然后连接,形成一个整体。为了代表这一点,我们决定用藤蔓连接成一个整体来建造屋顶。
The store name “vine” is based on the owner’s desire to make connections the top priority. Vines have the unique ability to grow individually and then connect, shaping a whole. To represent that, we decided to build the roof out of vines connecting to make a whole.
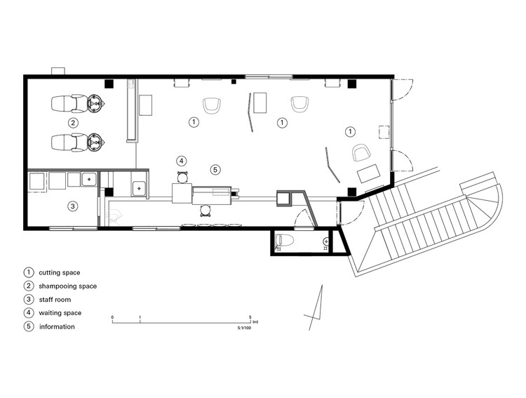
Floor Plan
业主的愿望是,客户不仅能够得到理发,而且能够享受在那里度过的时间,也许是阅读一本书。
The owner’s desire was for clients to be able not just to receive a haircut, but to be able to enjoy spending time there, perhaps reading a book.
© Yoshiro Masuda
c.Masuda吉郎
在藤蔓屋檐下,既有户外带来的开放感,也有内在的舒适感。我们相信,这是一种空间,将满足业主的愿望。
Beneath the vine roof, there is both the feeling of openness associated with being outdoors, as well as the feeling of comfort associated with being inside. We believed that this was the sort of space which would fulfill the owner’s wishes.
© Yoshiro Masuda
c.Masuda吉郎
通过将管道沿天花板呈拱形运行,并像藤蔓一样将灯具包裹起来,我们可以自由地改变它们的位置和高度。
By running the pipes along the ceiling in an arch shape, and wrapping the light fixtures like vines, we made it possible to freely change their location and height.
© Yoshiro Masuda
c.Masuda吉郎
拱门创造了一种天花板向上漂浮的感觉,以及整个沙龙都在藤蔓屋顶下的感觉。客户的座位相距很远,每个座位都被一个书架隔开,挡住了他们之间的视线。
The arches create a sense of the ceiling floating upward, and the feeling that the entire salon is underneath the roof of vines. The clients’ seats are spaced far apart, and each one is separated by a book shelf which blocks the view between them.
© Yoshiro Masuda
c.Masuda吉郎
我们希望许多人会参观这个沙龙,他们每个人都会在那里享受他们的时间,他们都将建立联系。
We hope that many people will visit this salon, that each one of them will enjoy their time there, and that they will all make connections.
Architects SIDES CORE
Location Kobe, Hyōgo Prefecture, Japan
Category Interiors Architecture
Project Year 2013
Photographs Yoshiro Masuda
客服
消息
收藏
下载
最近
















