查看完整案例


收藏

下载
© Christian Richters
克里斯蒂安·里氏
位于都柏林中心的一座四合院建筑在预算非常紧张的基础上;该地块是在皮伯斯伯勒附近的皇家运河的一条已被填满的支流的现有地块上雕刻而成的。
One Up Two Down is an urban courtyard house in central Dublin built on a very tight budget; the site was carved out of an existing plot along the filled-in branch of the Royal Canal near Phibsborough.
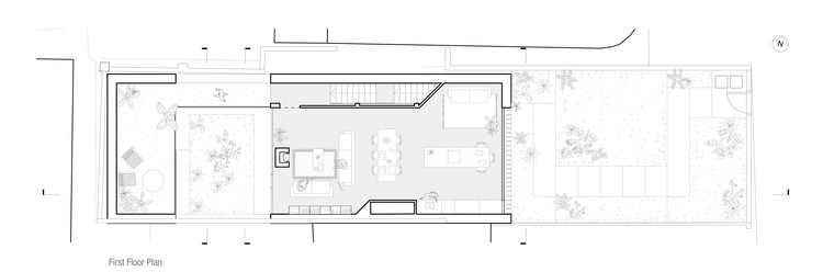
First Floor Plan
一层平面图
© Christian Richters
克里斯蒂安·里氏
Long Section
长剖面
该方案填满了长方形场地,并致力于最大限度地利用开放空间-一个有围墙和台阶的前花园,下面有卧室的主房间和居住空间,一个内部庭院和一间通往里尔的工作室。屋顶提供了另一个花园空间。原来被毁的房子的正面砖块被保留下来,用来建造前面的门面。
The scheme fills the rectangular site and works to maximise open space- a walled and stepped front garden, the main rooms with bedrooms below and living space over, an internal courtyard and a studio to the rere. The roof offers another garden space. The facade bricks from the original ruined house were retained and used to build the front façade.
© Christian Richters
克里斯蒂安·里氏
Architects Mccullough Mulvin Architects
Location Dublin, Ireland
Category Houses
Area 170.0 ft2
Project Year 2016
Photographs Christian Richters
客服
消息
收藏
下载
最近





















