查看完整案例


收藏

下载
该地点以前被一个停车场占用,设置在一组公共建筑内,其中包括司法部、联邦政府财政部门、Brieljant青年中心以及城镇博物馆和艺术画廊。
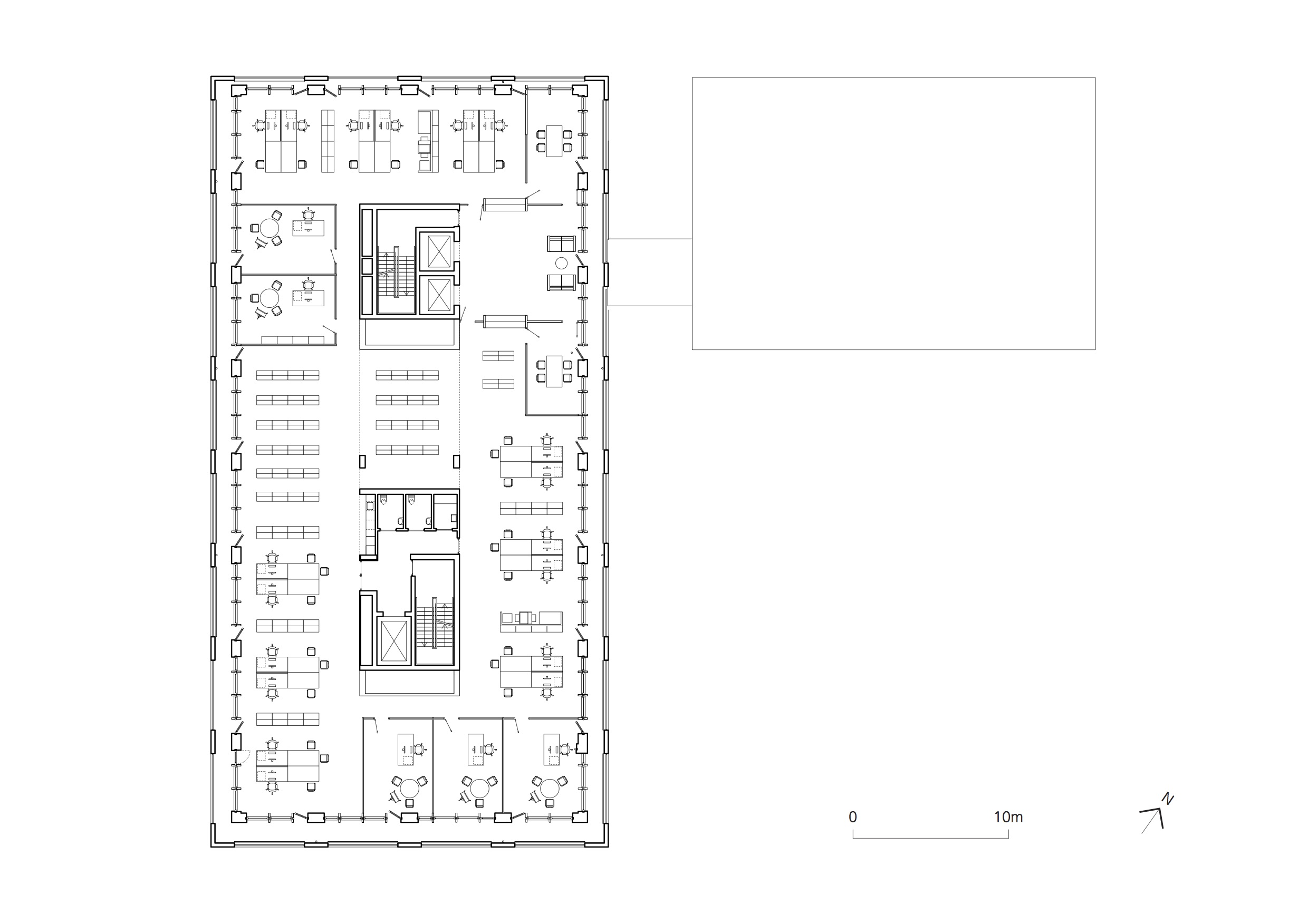
新大楼提供八千平方米的住宿空间,包括100名员工的办公空间、一个大型档案馆和员工食堂,以及250平方米的市政厅、公共会议室和市长及镇长的新住所。
该设计在一座5层楼高的建筑中设置了行政办公设施,与德因策的主要市场街道平行。市政厅是一间独立的双高房间,从大楼外延伸到市场街和大教堂。这间屋子以不朽的腿抬高到一楼,在下面创造了一个隐蔽的公共空间和入口。在这两种建筑形式的拥抱下,一座新的面向南的俯瞰河流的公共花园被创造出来。这座花园已被纳入玛丽-何塞·范熙整个地区的景观设计中。
建筑物的窗户设置在石柱后面,形成一个圆木,为工作人员提供遮阳的外部空间。除了创造一个令人愉快的小气候外,还将用日志展示种植和公共雕塑,以供工作人员和广大公众共同享受。这些柱子被意大利天然胶凝石所覆盖,被称为塞波迪格雷斯(CeppoDiGres)。窗户是涂有阳极的天然铝。议会会议厅有从地板到天花板的窗户,门框上有无框架的栏杆,向德因策人民展示了议会会议厅的活动。
在每层楼内都有大型的公共休息室,作为公众成员与行政工作人员和官员之间的非正式会议场所。
该项目代表托尼·弗雷顿建筑师在比利时建造的第二个项目,2016年在安特卫普码头的韦斯特卡伊的一座住宅楼竣工。
项目事实和信贷
地址:比利时德因策Brielstraat
建筑师:托尼·弗雷顿建筑师
客户:stad deinze
Value: €12,500,000
用地面积:1300平方米
内部总面积:8000平方米
设计团队:Tony Fretton,Jim McKinney,David Owen,Chris斯诺,Io Sch nherr,Piram Banpabutr,Martin Nassen,Nina Lundvall,Guy Dergo,Tom appels
项目架构师:克里斯·斯诺,汤姆·阿普尔斯,大卫·欧文
Firm Tony Fretton Architects
Type Commercial › Office Government + Health › City Hall
STATUS Built
YEAR 2017
SIZE 1000 sqft - 3000 sqft
BUDGET $10M - 50M
Photos Peter Cook
keywordsarchitecture, architecture news, interiors, interior design, portfolio, spec, brands, marketplace, products Deinze Town Hall
关键词建筑、建筑新闻、室内设计、组合、规格、品牌、市场、产品
客服
消息
收藏
下载
最近
























