查看完整案例


收藏

下载
© Gonzalo Viramonte
c Gonzalo Viramonte
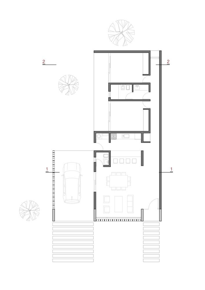
“Casas Catalinas”是位于里约塞巴洛斯、科尔多瓦山脉和远离城市的家庭住宅。他们在5000平方英尺的土地上安顿下来.
“Casas Catalinas” are family homes located in Rio Ceballos, along the Córdoba mountain range and away from the city. They set up in 5000 square-foot lands.
© Gonzalo Viramonte
c Gonzalo Viramonte
该项目旨在向能够获得国家提供的社会贷款的中产阶级年轻家庭提供住房解决方案。这1185平方英尺的房子有一个有限的预算,主要指导方针是与活泼的房间,简约和细节少设计,减少建筑成本。
The project seeks to provide home solutions to middle class young families that have access to social loans provided by the state. These 1185 square-foot houses have a limited budget and the main guidelines have to do with lively rooms, austere and detail less design, reducing construction costs.
© Gonzalo Viramonte
c Gonzalo Viramonte
由于这个社区的人口密度很高,他们的想法是把私人区域拉回与公众接触较少的地方。内部空间通过玻璃、庭院和画廊与外界联系起来。在整个房子里,都能感觉到一种渗透性。
© Gonzalo Viramonte
c Gonzalo Viramonte
© Gonzalo Viramonte
c Gonzalo Viramonte
考虑到目前的生活方式,所选择的建筑材料的维护程度很低.同时,作为降低成本的一种方式,每个要素仍然是可见的。地基、墙壁和托梁也是每间房子里活泼的元素,还有水泥砖,它们都是没有灰泥的。
Taking into account the present way of living, construction materials chosen were low-maintenance. At the same time, each element remains visible, as a way of lowering costs. Foundation, walls and joists are also lively elements in each house, along with cement bricks, that are left stucco-less.
© Gonzalo Viramonte
c Gonzalo Viramonte
Section House 1 / 2-2
第1/2部分-2
© Gonzalo Viramonte
c Gonzalo Viramonte
Architects Agustín Lozada
Location Cordoba, Argentina
Area 110.0 m2
Project Year 2017
Photographs Gonzalo Viramonte
Category Houses
Manufacturers Loading...
客服
消息
收藏
下载
最近






































