查看完整案例


收藏

下载
© Gonzalo Viramonte
c Gonzalo Viramonte
架构师提供的文本描述。这座建筑位于普耶尔雷顿街的市中心,靠近市中心的一个区域,在这条街道上,统一社区中的低层个人住房占据着主导地位。这座建筑并不假装是复杂的,而是简单的,并且对邻里本身感到担忧,因为它需要环境,并与它产生对话。
Text description provided by the architects. The building is situated in a zone very close to the central area of the city, on Pueyrredón Street, where the low-rise individual housing in a consolidated neighborhood prevails. The architecture does not pretend to be sophisticated, but simple and apprehensive with the neighborhood itself, for that it takes the environment and generates a dialogue with it.
Text description provided by the architects. The building is situated in a zone very close to the central area of the city, on Pueyrredón Street, where the low-rise individual housing in a consolidated neighborhood prevails. The architecture does not pretend to be sophisticated, but simple and apprehensive with the neighborhood itself, for that it takes the environment and generates a dialogue with it.
© Gonzalo Viramonte
c Gonzalo Viramonte
© Gonzalo Viramonte
c Gonzalo Viramonte
为了实现这一联系,在外墙上使用了传统材料和众所周知的材料,如砖、金属板材和混凝土。该提案分为两卷,它们是通过垂直循环核心(电梯和半覆盖楼梯)来表达的,再加上一个大的真空保证了整个系统的光和通风。
To achieve this link, traditional and well-known materials as brick, metal sheet and concrete, were used on façade. The proposal is armed in two volumes, these are articulated by means of a vertical circulation core (a lift and semi-covered stairs) that together with a large vacuum guarantee light and ventilation to the whole.
To achieve this link, traditional and well-known materials as brick, metal sheet and concrete, were used on façade. The proposal is armed in two volumes, these are articulated by means of a vertical circulation core (a lift and semi-covered stairs) that together with a large vacuum guarantee light and ventilation to the whole.
© Gonzalo Viramonte
c Gonzalo Viramonte
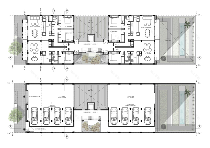
每层四套公寓,共开发五层住宅,另加一个基板,包括行人入口、八座有盖的车库以及娱乐和居住区域。在这两卷中,私人区域被安排在中心,悬空的白色石膏天花板(卧室),而社会区域位于前面和后面,钢筋混凝土板(起居室)在所有单位产生良好的交叉通风。
Four apartments per floor, develop a total of five floors of housing plus a baseboard that contains the pedestrian entrance, eight covered garages and the recreation and residence area. In both volumes the private areas are organized in the center with suspended white plaster ceilings (bedrooms) while the social areas are located on the front and back , with reinforced concrete slabs (living room) generating good cross ventilation in all units.
Four apartments per floor, develop a total of five floors of housing plus a baseboard that contains the pedestrian entrance, eight covered garages and the recreation and residence area. In both volumes the private areas are organized in the center with suspended white plaster ceilings (bedrooms) while the social areas are located on the front and back , with reinforced concrete slabs (living room) generating good cross ventilation in all units.
© Gonzalo Viramonte
c Gonzalo Viramonte
Second Floor and Third Floor Plan
二楼及三楼图则
© Gonzalo Viramonte
c Gonzalo Viramonte
我们设计的外观是从技术方面,而不是美学的探索。垂直阳伞具有双重功能,它们保护西方的方向,赋予正面活力。苹果的心脏被用作休闲区,这里有一个小的纵向水池,与绿色区域一起使城市停顿。
We designed the façade from a technical aspect rather than an aesthetic search. The vertical parasols fulfill a double function, they guard the west orientation and grant dynamism to the façade. The heart of apple is used as an area of recreation, this has a small longitudinal pool that together with the green area make an urban pause.
We designed the façade from a technical aspect rather than an aesthetic search. The vertical parasols fulfill a double function, they guard the west orientation and grant dynamism to the façade. The heart of apple is used as an area of recreation, this has a small longitudinal pool that together with the green area make an urban pause.
© Gonzalo Viramonte
c Gonzalo Viramonte
Architects V + Arquitectura
Location Pueyrredón, Santiago del Estero &, Villa Mercedes, San Luis, Argentina
Architects in Charge Maria Eugenia Scardino, Arch Antonella Lepore, Manuel Gonzalez Gola, Sebastian Carrasco, Guillermo Pereira
Area 1850.0 m2
Project Year 2018
Photographs Gonzalo Viramonte
Category Residential
Manufacturers Loading...
客服
消息
收藏
下载
最近

































