查看完整案例


收藏

下载
© Zhang Zheming
张哲明
架构师提供的文本描述。烟火大厦位于长沙芙蓉路中,八一大桥脚下,17层楼高,建于1992年。这是当时长沙最高的建筑。随着时间的流逝,它看起来不再像以前那么高了,周围有那么多高楼。
Text description provided by the architects. Firework Mansion Located on Middle Furong Road, Changsha, under the foot of the Bayi Bridge, the 17-storey Firework Mansion was built in 1992. It was the highest building in Changsha at that time. As time pass by, it looks no longer as high as before now with so many high buildings surrounding it.
© Zhang Zheming
张哲明
烟火曼西进出口公司。随着国有经济体制改革的推进,昔日的湖南国有鞭炮宿舍一直是光荣的建筑。
The Firework Mansi Import and Export Company. Along with the structural reform of state-owned economy, the gloryon used to be the dormitory building for staff of the former state-owned Hunan Firecrackers & Fireworks of this firework company became history. In those years, the company spared no expense to build this mansion and poured the whole building structure with cement and pebbles. That’s why it’s still so firm till now, like a fort; Nowadays, young people have successively moved out of this mansion, so those left in this mansion are mostly retired elderly people; Many departments are rented so that the once simple personnel composition of the former staff dormitory becomes complicated.
顶层的暗室里有一间60平方米的小公寓,位于烟火大厦的顶层。通常,长沙当地的诗人、作家和画家们经常聚集在这里。环顾四周,墙壁是如此坚固,曾经昂贵的完整剪力墙结构在房间之间和公寓与外部之间形成了一个轻盈的、紧密的环境。即使在白天,室内也是昏暗的,客厅根本没有灯光。吊灯整天都亮着。
Darkroom on top floor There is a small 60 m2 two-bedroom apartment on the top floor of the Firework Mansion. At ordinary times, a team of Changsha’s local poets, writers and painters often gathers here. Looking around, the walls are so firm, and the once high-expense complete shear wall structure forms a light tight environment between the rooms and between the apartment and the outside. Even in daytime, the interior is dim and the living room has no light at all. A droplight is lit all day.
诗人们曾经得到过灵感。他们想把这所简陋的房子改建成一家庭书店,并把它命名为“Reedom”。他们精心挑选书籍,以便为公众服务。一方面,他们想把好书卖给真正喜欢读书的人;另一方面,他们也希望为烟火大厦的居民提供一个好去处。
Reedom Bookstore The poets once get an inspiration. They want to transfer this humble house into a family bookstore, and name it “Reedom”. They choose books carefully in order to serve the public. On one side, they want to sell good books to people really fond of reading; on the other side, they also wish to provide a good place to go for the residents in Firework Mansion.
© Zhang Zheming
张哲明
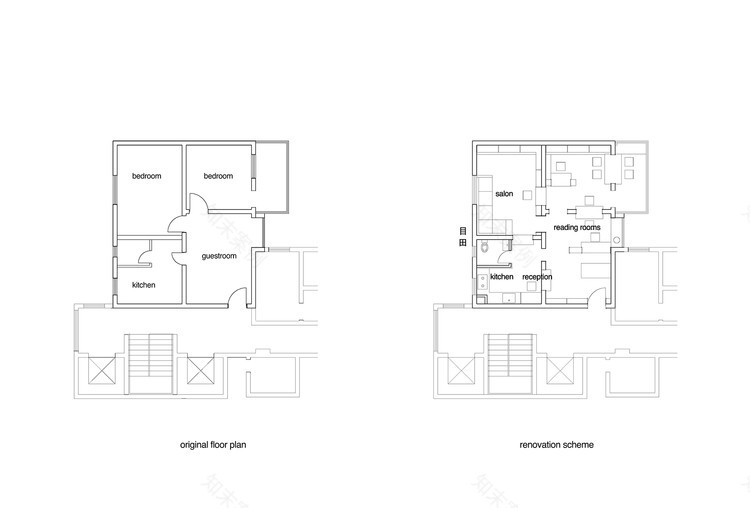
在墙上开了一个洞,为了得到一些光线,这间小两居室的公寓昏暗而封闭,就像一个水槽,所以它不适合提供阅读环境。经过与大家的讨论,书店的最初设计思路变得非常简单:尽量扩大外墙上的窗户;在房子内的每一面实心墙上开几个洞,让光线和视力消失。同时,将空间分割成单独的房间,可以成为一个完整的整体。屋内的洞也是自然通风的,这样可以避免在炎热的夏天使用太多的空调。我们甚至想在屋顶上开个舷窗。
Bore a hole on the wall in order to get some light The small two-bedroom apartment is dim and closed like a tank, so it’s not qualified to provide environment for reading. After discussion with everyone, the initial idea for design of the bookstore becomes very simple: to enlarge the window on the outer wall as much as possible; open several holes on each solid wall inside the house, to let the light and eyesight pass. Meanwhile, the space divided into separate rooms can become an integrated whole. Holes inside the house also invite in natural draught, which can avoiding using too many air conditioner in the hot summer. We even think about open a scuttle on the roof.
变小房间是小的,不能扩大,所以我们决定采取相反的方式,把它们变成小的,创造一个更真诚和集中的阅读环境。于是,我们把书架和隔间放在已经很小的起居室和卧室里。这样,项目完成后就能容纳约5000本书。像我们在墙壁上所做的那样,隔墙上也有洞。为了节省空间,我们不决定放任何桌子。相反,我们想把这些洞用作桌子。这样,我们就可以得到许多迷你阅览室,具有相互连接的光线,视力和空气,同时确保隐私。我们把所有的窗户和门都换了,包括阳台上打开的大窗户。阳台成为最独特的阅读场所,打开窗户时有良好的城市景观和柔和的微风。
Change small into tiny The rooms are small and can’t be enlarged, so we decide to go the adverse way to change them into smaller ones and create a more sincere and concentrated environment for reading. Thus, we placed bookcases and partitions in the already small living room and bedrooms. In this way, after the completion of the project will be able to accommodate about 5000 books. Holes are also opened on the partitions as we have done on walls. To save space, we don’t decide to place any desks. Instead, we’d like to use the holes as desks. In this way, we get many mini reading rooms with interlinked light, eyesight and air, while ensuring privacy. We changed all the windows and door, including the big open window on the balcony. The balcony becomes a most unique place for reading, with a good city view and soft breeze when opening the window.
© Zhang Zheming
张哲明
在顶楼的平台上,这座老建筑的屋顶总是用来烘干被子,有时还用来烘干萝卜和腌制的大白菜。一群灰鸽子经常绕着烟火大厦的屋顶盘旋,往返于岳麓山和焰火大厦之间。他们不需要像人类一样忍受交通堵塞的痛苦。他们的巢穴在烟火大厦的屋顶上。
Platform on top floor The rooftop of this old building is always used for drying quilts, sometimes for drying radishes and pickled Chinese cabbage. A group of grey doves often circles round the roof of the Firework Mansion, travelling to and fro between the Yuelu Mountain and the Firework Mansion. They don’t need to suffer the pain of traffic jam like human beings. Their nests are on the rooftop of Firework Mansion.
我们曾经想过要在屋顶上开个舷窗。然而,由于各种原因,该计划最终被取消。最后,我们扩大了客厅的一扇窗户,把它改成了一个大的法式窗户。利用屋顶平台的一个角落作为书店的延伸,面对阳台的大法国窗和窗口,形成了屋顶微型环境。
We once thought about open a scuttle on the roof. However, the plan was finally aborted due to various reasons. In the end, we enlarged a window in the living room and changed it into a large French window. Using a corner of the rooftop platform as the extension of the bookstore, to face the large French window and window of the balcony, a rooftop miniature environment is formed.
© Zhang Zheming
张哲明
月宫,烟火大厦的电梯大厅有一扇美丽的圆窗。电梯门一开就能看到。更巧合的是,在圆窗外,有两间卧室书店的外窗。于是,我们把招牌“Reedom”贴在圆窗外面,在圆窗上贴上了Reedom的标志。从一个特定的角度来看,标志在链接到招牌上的单词时会形成其他单词。我们称这扇圆窗为“无色之月”。同时,我们非常喜欢以前的焰火大厦的马赛克外墙。所以,我们选择了一个空格,并将书店的QR代码打印在上面。密码可以从房子里的某个角度扫描。
Moon for Reedom The elevator hall of the Firework Mansion has a beautiful round window. It can be seen as soon as the elevator door opens. What more coincidental is that, outside the round window, are the outer windows of the two-bedroom Bookstore. So, we placed our signboard “Reedom” outside the round window and pasted the logo of Reedom on the round window. Seeing from a specific angle, the logo forms other words when linked to the words on the signboard. We call this round window “the Moon of Reedom”. Meanwhile, we love so much the former mosaic outer wall of the Firework Mansion. So, we chose a space and printed the QR code of our bookstore onto it. The code can be scanned from some angle in the house.
© Zhang Zheming
张哲明
邻里关系这家书店的建设已经持续了一年。我们同邻国建立了非常好的睦邻关系。他们都非常喜欢屋顶书店。同时,我们正在为他们设计更好的设备,让他们在屋顶晒干衣服和腌制萝卜。我们希望最终把这个地区建设成一个适合整个社区的好地方。
Neighborly relations The construction of the bookstore has lasted for a year. We have built very good neighborly relations with the neighbors. They all love the rooftop bookstore very much. Meanwhile, we are designing better facilities for them to dry clothes and pickled radish on the rooftop. We hope to finally build the area into a good place to go for the whole community.
Architects CaoPu studio
Location Changsha, Hunan, China
Category Offices Interiors
Client-Project planning “Reedom目田” Sun Shengqi, Xiong Yong, Zhao Xuru, Zou Rong
Space designer Cao Pu
Area 60.0 sqm
Project Year 2016
Photographs Zhang Zheming
Manufacturers Loading...
客服
消息
收藏
下载
最近





























