查看完整案例


收藏

下载
© Hufton & Crow
© Hufton
架构师提供的文本描述。这个工作室是通过振兴前维多利亚时代的一个仓库而创建的,目的是为两层定制的开放式办公室提供一个生动的街道正面。该部门是一系列绿衣项目中的最新一项,在这些项目中,斯奎尔和合作伙伴与德温特·伦敦合作,对维多利亚时代的一家工业建筑进行了广泛的翻新和扩建,在20年的时间里提供定制的创意工作空间。
Text description provided by the architects. The Studio was created by revitalising a former Victorian depository to provide two floors of bespoke open plan office with an animated street frontage. The unit is the latest in a series of Greencoat projects where Squire and Partners has collaborated with Derwent London to extensively refurbish and extend a family of Victorian industrial buildings to deliver bespoke creative workspace, over a 20 year period.
© James Jones
(詹姆斯·琼斯)
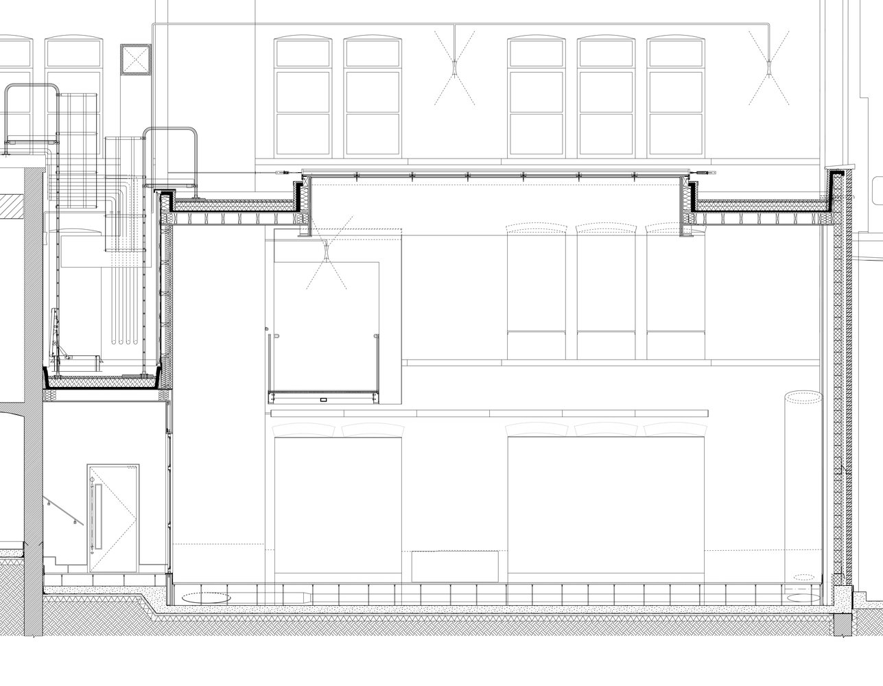
外部,一个带有网状金属筋膜的金属框架玻璃入口屏幕提供进出空间的视图,由一个3米高的带有全高度刷过的黄铜拉手的门进入。接待区有一个抛光的混凝土地板,通向两个无光泽的黑色钢楼梯,其特征是激光切割图案和暴露的青铜沉头螺钉。平台升降机被两层图案网格包裹在细黄铜和黑色铜板上。办公空间提供在较低和较高的地面,连接由一个顶部照明的中央光网横跨一个黑色的钢桥,这吸引了自然光深的计划。
Externally, a metal framed glazed entrance screen with a latticed metal fascia affords views in and out of the space, accessed by a 3m high door with a full height brushed brass pull handle. The reception area has a polished concrete floor leading to two matt black steel staircases which feature a laser cut pattern and exposed bronze countersunk screws. A platform lift is encased with two layers of patterned mesh in fine brass and black copper plate. Office spaces are provided at lower and upper ground levels, linked by a top lit central lightwell spanned by a black steel bridge, which draws natural light deep into the plan.
© Hufton & Crow
© Hufton
建筑的工业特性对设计有很大的影响,设计的目的是在现代开放式工作空间中保留坚固结构的元素。拱形混凝土天花板、砖墙和绿色起重梁等现有特征暴露在其原始状态下,并以现代照明装置突出显示,而其他工业机械,如滑动门、滑轮和窗,则进行了翻新,以参照前者的用途。
The industrial character of the building was a strong influence on the design, which sought to retain elements of the robust structure within a modern open plan workspace. Existing features such as vaulted concrete ceilings, brick walls and ochre coloured lifting beams were exposed to their raw state, and highlighted with modern light fittings, while other industrial mechanisms such as sliding doors, pulleys and window shutters were refurbished to reference the former use.
© Hufton & Crow
© Hufton
原来维多利亚时代的颜色发现在建筑物内通知了一个调色板的特征元素,如结构梁在信号黑色和铸铁柱在科尔切斯特车床绿色。灵感来自现有的模式和图案,以创造一系列的当代元素,包括定制的激光切割外壳加热/冷却装置和图案地砖在WCS。
Original Victorian colours found within the building informed a palette for feature elements such as structural beams in Signal Black and cast iron columns in Colchester Lathe Green. Inspiration was taken from existing patterns and motifs to create a series of contemporary elements including bespoke laser-cut casings for heating/cooling units and patterned floor tiles in the WCs.
© James Jones
(詹姆斯·琼斯)
Architects Squire and Partners
Location Greencoat Pl, Westminster, London SW1P, United Kingdom
Category Workshop
Area 1544.0 m2
Project Year 2017
Photographs James Jones
Manufacturers Loading...
客服
消息
收藏
下载
最近







































