查看完整案例


收藏

下载
© Sergio Gómez
(Sergio Gómez)
架构师提供的文本描述。该建筑有一个有趣的双重关系,一楼是用于音乐和舞蹈,而二楼容纳造型艺术。这两个层次(因此也是规划领域)是由一个宽敞的露天(覆盖)的大楼梯厅画廊连接起来的,它表达并同时充当了一个会议、表演和展览空间。
Text description provided by the architects. The building has an interesting dual relationship, the first floor is used for music and dance, while the second floor accommodates plastic arts. The two levels (and therefore the programmatic areas) are linked by a generous open-air (covered) grand staircase-hall-gallery which articulates and simultaneously acts as a meeting, performance and exhibition space.
Text description provided by the architects. The building has an interesting dual relationship, the first floor is used for music and dance, while the second floor accommodates plastic arts. The two levels (and therefore the programmatic areas) are linked by a generous open-air (covered) grand staircase-hall-gallery which articulates and simultaneously acts as a meeting, performance and exhibition space.
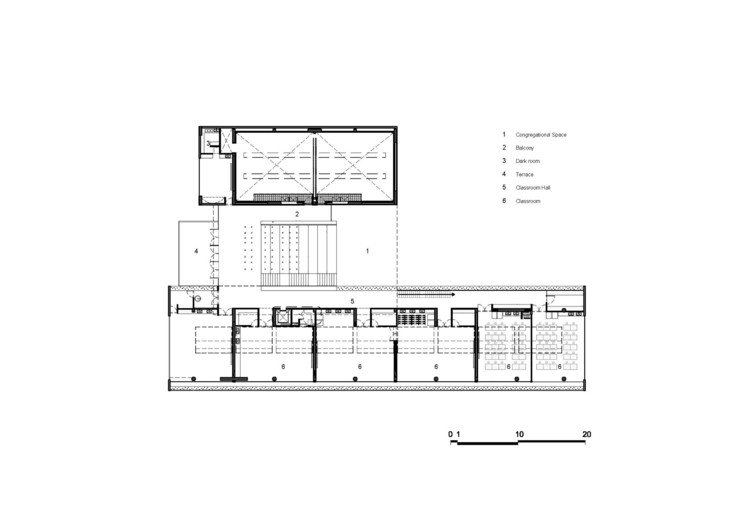
Floor Plan 1
平面图1
砖块被选为建筑的主要材料,因为艺术中心寻求与现有的教室建筑相结合。
Brick was chosen as the predominant material for the building, as the Arts Center sought to be integrated with the existing classroom buildings.
Brick was chosen as the predominant material for the building, as the Arts Center sought to be integrated with the existing classroom buildings.
© Rodrigo Dávila
罗德里戈·达维拉
© Sergio Gómez
(Sergio Gómez)
建筑的外部调色板由用于中央楼梯的Zapan木材和定义上部FA1ade的彩色管道(红色、橙色和黄色)加强。
The building’s external palette was enhanced by the Zapan wood utilized for the central staircase and the colored tubes (red, orange and yellow) defining the upper façade.
The building’s external palette was enhanced by the Zapan wood utilized for the central staircase and the colored tubes (red, orange and yellow) defining the upper façade.
Floor Plan 2
平面图2
管弦乐队教室(开放为一个单一的表演空间)需要特别的声音管理;整个空间用木材、地板、墙壁和天花板完成,其中吸声面板的百分比(也在其他音乐室中使用)。艺术教室的白色墙壁和慷慨的天窗使自然光水平最大化。
The orchestra classrooms (which open into a single performance space) required particular acoustical management; the entire space was finished with timber – floor, walls, and ceilings – with a percentage of sound absorption panels (also utilized in other music rooms). The white walls and generous skylights of the art classrooms maximize natural light levels.
The orchestra classrooms (which open into a single performance space) required particular acoustical management; the entire space was finished with timber – floor, walls, and ceilings – with a percentage of sound absorption panels (also utilized in other music rooms). The white walls and generous skylights of the art classrooms maximize natural light levels.
© Rodrigo Dávila
罗德里戈·达维拉
Architects taller de arquitectura de bogotá
Location Cl. 202 #56-50, Bogotá, Colombia
Author Architects Daniel Bonilla y Marcela Albornoz
Design Team Andrés Gutierrez, Adriana Hernández, David Kita, Rodrigo Montoya, Juliana Lozano, Mauricio Patiño, Cristian Echeverría
Area 2816.0 m2
Project Year 2009
Photographs Rodrigo Dávila, Sergio Gómez
Category Extension
Manufacturers Loading...
客服
消息
收藏
下载
最近













