查看完整案例


收藏

下载
新东方在线于2005年由新东方教育科技集团创立,是中国首批专业在线教育网站之一,同时是目前中国领先的综合在线教育平台。艾迪尔IDEAL为其位于北京的新办公室提供了整体设计施工一体化服务。
新东方在线一直致力于为广大用户提供个性化、互动化、智能化的卓越在线学习体验。在其新办公室设计中,艾迪尔以个性、年轻、沟通、团结作为主题,力图展现新东方的企业文化与创新精神。
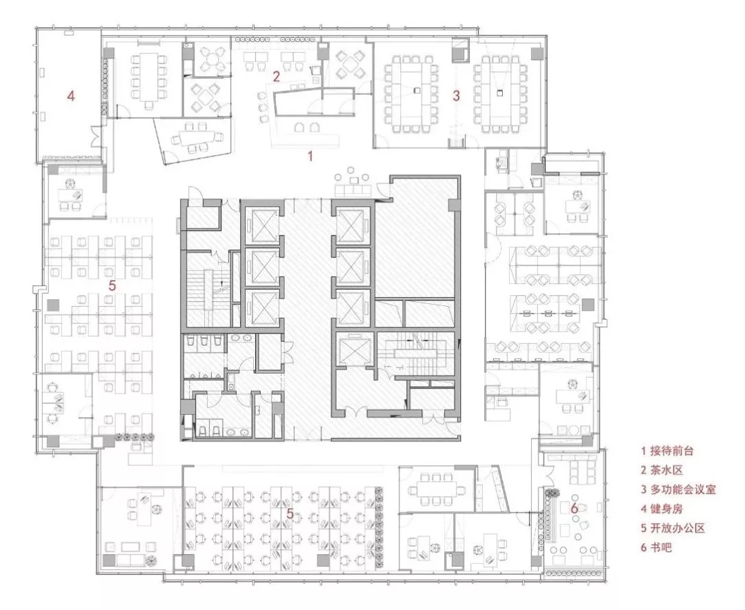
项目位于中关村新东方南楼十八层。经过现场勘查与分析,设计重新规划整理平面布局,优化功能分区与交通流线。决定通过强调色彩与打造局部亮点空间的方式来重新定义该办公场所,并实现空间品质的提升。
整体空间色彩以白、灰色为主基调,辅以企业logo中提取的橙、绿色点缀。功能分区由动至静,由外区到内区,将整个平面做了重新划分。为打破标准矩形楼层的单调布局,重点空间引入了折线的元素,不仅活跃了空间氛围,也巧妙的呼应了企业的logo图形符号。
前台采用折面造型,白色和木色搭配打造出简洁、明快、清新的风格,并突出了企业logo。前台一侧的小会议室设置成为形状不规则的玻璃盒子,增加了前厅区域的轻盈感与通透性。
茶歇区巧妙地藏身于前台之后,充分利用边缘空间并结合前台组合出一个虽面积不大但温馨舒适、光线充足的休闲放松场所。
西北角与东南角各有一处光线视野俱佳的阳光房,分别被设计为健身房与书吧使用。此区域使用了可控制开合遮阳棚,使得无论何时这里都舒适宜人。
书吧不仅可以让员工享受一刻放松的阅读时光,也可作为讨论区让工作团队进行头脑风暴,迸发灵感与创意。绿地毯、木质搁架、充足的自然光以及大量的绿植让此空间成为整个办公室最具人气的场所。精心设计的书本元素玻璃贴掩映于茂盛的绿植之后,使得空间知性而又富有文艺气息。傍晚时分,灯火初上,谁不想在此处享受片刻美好时光?
办公区以白色和灰色为主,辅以鲜亮色彩加以点缀。沿核心筒一侧布置了企业文化墙,并于局部设置了一些梯形搁架隔断,保证空间的通透性与连续性。
大会议室通过活动隔断可一分为二,作为两间小会议室使用,空间十分灵活多变。
项目名称:新东方在线办公室
项目地址:北京市海淀东三街2号新东方南楼18层
项目面积:1360平方米
竣工时间:2018年8月
设计及施工单位:艾迪尔IDEAL
设计团队:王文惠 李辉 唐哲
客服
消息
收藏
下载
最近

















