查看完整案例


收藏

下载
前途汽车是一家以新能源汽车为核心的乘用车生产制造企业,公司致力于通过前瞻性的设计、开放的智能互联平台、轻量化的材料和模块化的电驱动技术,为更多消费者打造充满驾趣的纯电动车。
与传统汽车的logo设计理念不同
前途品牌不希望以凶猛的野兽
来彰显前途品牌对于自由的渴望
蜻蜓,外表看似很柔弱,但却是自然界中的独特物种。蜻蜓的翅膀也是最优美的轻质飞行器,因为轻薄,所以迅捷;同时,虽然轻薄,却足够坚韧且有耐力,在风暴中依然能够展翅前行或跨越海洋。”
——陆群,前途汽车董事长
2016年2月前途汽车苏州生产基地破土动工,初期占地面积23万平方米。与传统汽车的生产模式不同,基地的生产模式将围绕碳纤维、铝合金等轻量化材料的使用进行全新规划。全新的办公及生产方式,意味着创新的空间设计模式的需求。艾迪尔IDEAL为其办公楼及员工餐厅提供了整体室内空间设计及局部景观设计服务。
“这是为后续产品打基础的车,这是让用户认知前途这个品牌的车。这是我们的第一步。”前途汽车董事长陆群这样看待前途K50。这对于承接了其孵化摇篮设计任务的艾迪尔来说无疑也是巨大的压力与挑战。如何为前途汽车打下这坚实的第一步,在打造人性化、场景化办公空间的同时,完美诠释前途汽车的品牌气质,将使用功能与空间美学完美融合,成为了我们的追求与坚持。
前途汽车工厂办公楼位于整个园区的西侧,正对园区主入口,楼体呈“凵”形环抱姿态,通透的整体玻璃幕墙降低了建筑巨大体量的厚重感。整体建筑群形体虚实结合,充满几何感与构成感。
园区西侧是大片城市绿化,坐拥如此一览无余的景致,除了建筑设计层面考虑的开放性之外,在室内设计时艾迪尔更希望能将美好的景观与办公情景相结合,让外部环境充分渗透进来,再结合内部空间设计中的景观设计,打造全方位的景观式办公体系。
设计初始,艾迪尔秉持着企业“轻盈、灵动”的设计理念,结合建筑玻璃幕墙的通透感,沿西侧景观展开面充分布局组团式灵活空间,将室内景观渗透至室外,打造出内与外协调、统一的形象观感。
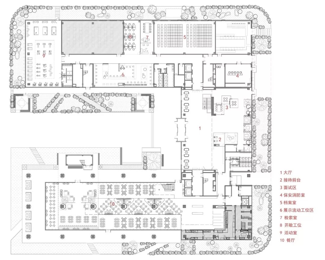
建筑主入口处的2层挑空空间是设计着力打造的“空间第一印象区”,承载着前途汽车企业自身灵动、实用、交互的特质。
此处的空间设计基调以简约、大气为主,线条洗练的大理石前台,极富雕塑感的两层折跑楼梯,二层眺台的暗色冲孔钢板遮挡,无不展示出“前途人”低调谦和的欢迎姿态,空旷的前厅在入口侧及前台后方布置了可以停驻交谈的小组座椅,柔和的灯光洒在茶几桌面上,为空间点缀几份轻巧和柔和。
为方便功能使用而设置在前台对面的几个多功能小型会议空间,提高了外部人员与内部员工交流的简单便捷性,同时一个个透明的玻璃盒子又像是一个个小的场景舞台,打破了整体大空间的严肃性,形成了趣味触媒点。
04. 虚实对比与嵌套空间
建筑首层功能设计上充分考虑了“轻盈、灵动”的理念,“凵”形平面北侧除办公功能外,特意在尽端布置了运动健身房,正对园区西侧主入口,让来访者“一目了然”的看到,通透的落地玻璃结合室内鲜艳的健身器械,几抹动感身影在其间点缀,让建筑整体跃动起来,动感由内而外延伸。
“凵”形平面南侧是最引人注目的空间。这里是员工用餐区域,也可作为多功能厅使用。其通高的两层空间内部完全开敞,四面全被玻璃幕墙包围。空间中最醒目的是悬于天花中部的矩形盒形空间,外表面覆盖折线图形纹理,富有时尚感与视觉冲击力。其内部可以分隔成小的包间,让就餐者身处全场最令人瞩目的位置,却享有充足的私密性与安全感。
员工餐厅外是经过特别提出而改建的水景观,这是为了能让就餐环境变得更好,从室内有可以去到水系平台的门,方便在就餐之余到外面走走。
餐厅内部的矩形盒子在夜晚亮起灯光的时候,宛如一个巨型的、优雅的灯箱,不仅吸引着建筑内部的人的眼球,也吸引着建筑外的人一探究竟。
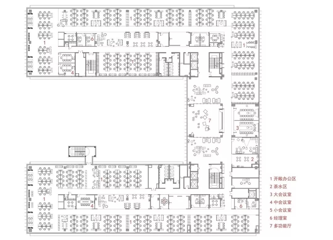
二层会议区中部利用转角空间设置了休息区,此处两间小会议室也被设计成别致的折线造型,打破了方形会议室紧密排列的严肃格局。
而尽端设置了一处大面积开敞茶水休闲区,三面通透的玻璃幕墙使该区域光线视野俱佳,色彩淡雅清新的组合家具营造出让人放松的氛围。
三层的办公空间整体设计风格以简约、时尚为主。艾迪尔在大开敞的办公区域中部设计了一条凵型多功能场景化空间动线,将办公配套功能整合在这条动线之上。不仅考虑到了采光的合理性,也减少了交通流线的交叉浪费,提高了办公效率。
苏州前途汽车办公楼室内空间的设计风格如其建筑风格一样典雅、现代、简约,着重体现不同功能空间的交互与嵌套,从而促进人与人之间的交流与共享体验。在美学上则多采用虚实结合的手法,引景入室,移步异景,让动线相对简单的条形空间富有节奏感,同时充满了变化。
项目名称:苏州前途汽车办公楼
项目地址:苏州市虎丘区吕梁山路潇湘路交叉口
项目面积:19257平方米
竣工时间:2018年7月
设计单位:艾迪尔IDEAL
设计团队:罗劲,张晓亮,唐哲,王文惠,李辉,姜云龙,刘丙
机电团队:黄桂安,郭益克,吴子荣
项目摄影:赵彬(独尊建筑摄影)
办公空间 爱迪尔 IDEAL 现代
客服
消息
收藏
下载
最近







































