查看完整案例


收藏

下载
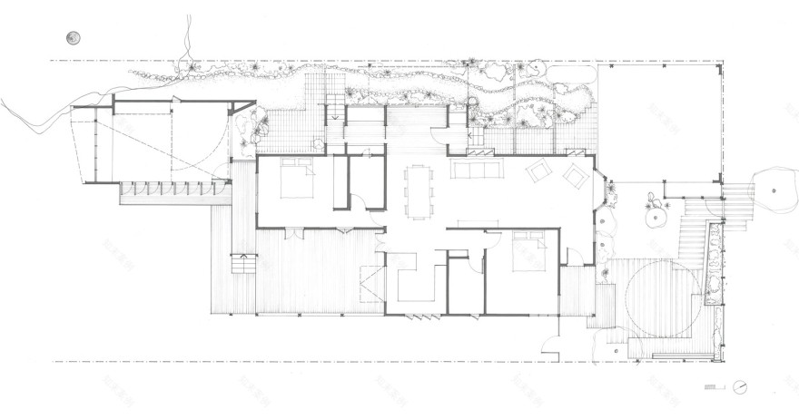
项目位于澳大利亚的昆士兰州,现有建筑低调地隐藏在布里斯班绿树成荫的‘O’型街道上。改造前,房屋在暴风雨期间有雨水倒灌的风险,后花园会变成一条小溪。一些非常奇怪的规划也破坏了房屋的流动性,导致一些空间的使用性不高,比如其中一个小房间的西侧有一面有 80 年代典型特色的45 度斜墙。
设计师的主要设计措施是在房屋后面建造一个由通往后花园的走廊和一系列的露天平台,以隔开的新的工作室——“吊舱”。为了避免影响扶手的使用,“吊舱”的水平线被提高了一些。“吊舱”背后的想法是像在有框架的山形墙两端之间挂一件衣服。这种方式提高了人通行在朝南的房间的通道和低入口门之间的戏剧性。朝南的房间面向邻居家种的一棵巨大的凤凰木。
在现有的房屋里,我们基本上创造了一个通往西侧花园的“有屋顶的通道”。通道的“后墙”是一个可以移动的铝制条板遮阳篷。它可以作为一个保护屏障垂直地悬挂,可以在冬天的时候透光或者水平地遮阴。一些有粉末涂层的铝罗浮箱被放置于西边现有的竖铰链窗。这使得房屋能够在白天通风,并且为西边遮阴。
客服
消息
收藏
下载
最近





















