查看完整案例


收藏

下载
England New Forest Forest Apartments
设计方:PAD studio
位置:英国
分类:居住建筑
内容:实景照片
图片:26张
摄影师:Nigel Rigden
森林住宅是一栋新的、与众不同的住宅。这是一栋可移动的住宅,修建这栋住宅的目的是为了应和1968年的大篷车法案,它对住宅的建造和规模都进行了限制。我们的客户在一个静态的大篷车中生活了15年,这个静态大篷车的位置坐落在新森林国家公园中的一块五英亩的、极好的土地上,在2009年的时候,他们找到了当地一流的PAD studio。他们的一个关键性的要求是创造一个新的、低能耗的住宅,住宅中还要充满光线,与周围的环境也要有强烈的连接。最重要的是,新的住宅不能类似或感觉起来像一个活动房屋。
PAD studio付出了很多时间来研究活动房屋和熟悉限制性法律要求的细微差别。PAD studio的设计深深的植根于这个场址,他们在一天的不同时间里花时间参观这个场址,以体验不同时间内的光线、视野和周围的环境。这个特殊的场址坐落在新森林中心的一个空地的边缘上,要到达这里的话得经过一条很长的砾石路,当走过这条砾石路时,原始场址上的景色也会慢慢的展现在人们的面前。
译者:蝈蝈
Forest Lodge is a new home with a difference. This is a mobile dwelling built to comply with the Caravan Act 1968 which restricted both the construction and size of the dwelling.The clients, who had been living in a static caravan for 15 years on their stunning five acre property in the New Forest National Park, approached local Award Winning practice PAD studio in 2009. A key requirement of their brief was to create a new, very low energy dwelling, flooded with light and with a strong connection to the surrounding landscape: Importantly, the new dwelling should not resemble or feel like a mobile home.
PAD studio spent considerable time researching the mobile home market and familiarising themselves with the nuances of constraining legal requirements.PAD studio’s approach to design is deeply rooted in place and they spend time visiting the site at different times of the day to experience the light, views and surroundings. This particular site, located at the edge of a clearing in the heart of the New Forest is accessed from a long gravel track that slowly revealed views of the existing property.
英国新森林地区森林住宅外部实景图
英国新森林地区森林住宅内部实景图
英国新森林地区森林
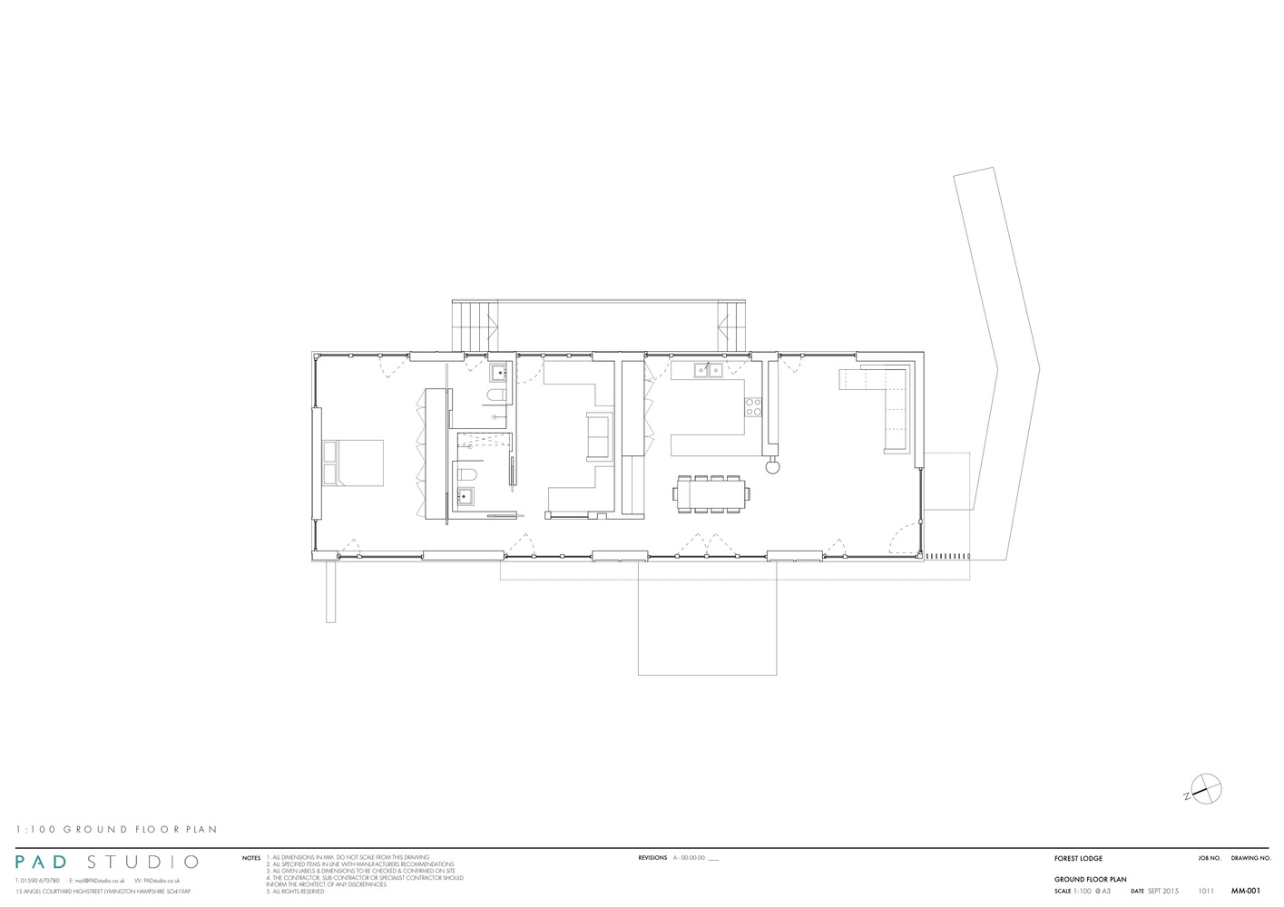
住宅平面图
英国新森林地区森林住宅平面图
英国新森林地区森林住宅剖面图
客服
消息
收藏
下载
最近




























